Soccer reality

Prodej bytu 3+1, Praha - Letňany, Křivoklátská, 68 m2

Křivoklátská, Praha, Letňany

9 450 000 Kč /za nemovitost HYPOTÉKA od 42 236 Kč /za měsíc
Prověřené firmy v Praze 9

Stěhovací služby

Výkup a prodej starého nábytku

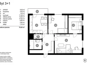
Informace k bytu

Nabízíme k prodeji prostorný byt v dispozici 3+1 o celkové ploše 67,55 m² s lodžií o výměře 3,80 m2, který se nachází v 11. patře panelového domu na Praze 9 – Letňany. Byt je orientován na jižní stranu, díky čemuž je po celý den zalitý sluncem a působí velmi světlým a vzdušným dojmem. Součástí bytu jsou tři prostorné pokoje, ložnice o výměře 8,80 m2, dětský pokoj o výměře 12,60 m2 a samostatný obývací pokoj o výměře 17,90 m2. Dále se v bytě nachází oddělená kuchyň o výměře 11,40 m² která je vybavena kvalitním, na míru dělaným kuchyňským koutem včetně spotřebičů, předsíň včetně vestavěných skříní, které zajišťují dostatek úložného prostoru, koupelna, samostatné WC a zasklená lodžie. K bytu náleží také sklepní kóje. Celý dům prošel v roce 2016 kompletní rekonstrukcí zahrnující zateplení fasády, rekonstrukci vnitřních společných prostor, vyzděné sklepní kóje, nové podhledy, výmalbu, podlahové krytiny a instalaci 2 nových výtahů. 


Bytová jednotka je vybavena plovoucími podlahami, zděnou koupelnou a zděným samostatným WC. V nedávné době prošla kuchyně kompletní a nákladnou rekonstrukcí, která ji pozvedla na moderní úroveň. Lodžie je zasklená se vstupem přímo z kuchyně, čímž poskytuje příjemný prostor k relaxaci i v chladnějších měsících. Byt je připraven k okamžitému bydlení, zároveň jej lze snadno přizpůsobit vlastním představám a vkusu nového majitele.


Byt se nachází ve výborně dostupné lokalitě s veškerou občanskou vybaveností. Přímo před domem najdete supermarket Albert a polikliniku Frýdecká, další zdravotnické zařízení, lékárny a knihovna jsou vzdáleny pouhých 350 metrů. Škola i školka jsou dostupné do 3 minut chůze. Autobusová zastávka se spojením na metro Letňany je vzdálena přibližně 5 minut pěšky. Pro milovníky nákupů a zábavy je k dispozici OC Letňany s kinem Cinema City (cca 9 minut chůze). V okolí se dále nachází Letňanský lesopark (15 minut pěšky), bazén Lagoon, jumppark či boulder hala Jungle. Před domem je k dispozici parkoviště pro letňanské rezidenty.

Parametry bytu

Cena
9 450 000 Kč /za nemovitost Spočítat hypotéku
Aktualizováno
25. 3. 2026
Adresa
Křivoklátská, Praha, Letňany
ID
533440
Stavba
Panelová
Stav objektu
Velmi dobrý
Patro
11. z 12
Vybaveno
Ano
Vlastnictví
Osobní
Užitná plocha
68 m2
Třída energetické náročnosti
G - Mimořádně nehospodárná
Balkon
Sklep
Výtah
Převod do OV

Kontaktovat makléře

Máte zájem o tento byt?

Tímto, v souladu s nařízením Evropského parlamentu a Rady (EU) 2016/679, v platném znění, prohlašuji, že mi je alespoň 16 let a uděluji tak svůj souhlas se zpracováním zadaných údajů (jméno, telefon, e-mail, ip adresa) společnosti B3 Technology, s.r.o., IČ: 07330600, se sídlem Novostavby 126/23, 435 11 Lom (správce dat), za účelem předání dotazu z tohoto formuláře Vámi vybranému inzerentovi a zpětného kontaktování mé osoby. Osobní údaje bude správce zpracovávat manuálně i automaticky přímo prostřednictvím svých zaměstnanců. Informace předané tímto formulářem budou uloženy v databázi správce maximálně po dobu 10 let. Odvolání souhlasu s uložením a zpracováním poskytnutých dat lze e-mailem na info@realitypro.eu. V případě podezření na neoprávněné použití Vámi poskytnutých údajů máte právo předat podnět k šetření Úřadu pro ochranu osobních údajů. Více informací
Chystáte se prodat nemovitost?
Pomůžeme Vám!

Inzerát si prohlédlo 1 lidí

Prodejce

Adéla Bukovská - recepce

Adéla Bukovská - recepce

Hlídací pes

Chcete dostávat emailem podobné nabídky prodeje bytů 3+1 v Praze 9?

Podobné nemovitosti