Prodej bytu 2+1, Plzeň - Východní Předměstí, Plzenecká, 56 m2 (ID: 2833516)

Plzenecká, Plzeň, Východní Předměstí

4 600 000 Kč HYPOTÉKA od 20 559 Kč /za měsíc

(včetně provize RK)

Prověřené firmy v Plzni

Stěhovací služby

Informace k bytu

Prodej slunného bytu 2+1 +B, Plzeň, Slovany, Plzenecká ulice

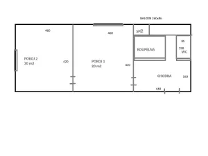
Exkluzivně nabízíme na prodej, slunný, pěkný byt 2+1 + B o výměře 56 m² v Plzni – Slovany, Plzenecká ulice. Je hezky dispozičně řešený. Je v soukromém vlastnictví a není nijak právně zatížený.
Byt je situovaný ve druhém patře cihlového bytového domu bez výtahu, který prošel v roce 2020 celkovou revitalizací, nová střecha, zateplení, výměna oken za plastová a další. Vytápěni zajišťuje plynové topení WAW. Podlahy tvoří beton a PVC. K bytu náleží sklep o výměře 5 m². Za domem je dvorek. Celkové měsíční náklady na byt činí 2.499 Kč. Dům je situovaný v klidné lokalitě mimo hlavní komunikace, s veškerou občanskou vybaveností, v blízkosti ZŠ, MŠ, nákupní středisko, včetně různých služeb, také plavecký bazén, MHD. Parkování před domem. Velmi dobrá dopravní dostupnost. Tiché, klidné bydlení v pečlivě udržovaném domě. Volný ihned. Jednoznačně doporučujeme. Další informace a sjednání prohlídky na telefonu 604 725 735.

Parametry bytu

Cena
4 600 000 Kč Spočítat hypotéku
Poznámka k ceně
včetně provize RK
Aktualizováno
17. 3. 2026
Adresa
Plzenecká, Plzeň, Východní Předměstí
ID
P001012026
Stavba
Cihlová
Stav objektu
Dobrý
Vybaveno
Ano
Lokalita objektu
Klidná část obce
Vlastnictví
Osobní
Užitná plocha
56 m2
Třída energetické náročnosti
G - Mimořádně nehospodárná

Kontaktovat makléře

Máte zájem o tento byt?

Tímto, v souladu s nařízením Evropského parlamentu a Rady (EU) 2016/679, v platném znění, prohlašuji, že mi je alespoň 16 let a uděluji tak svůj souhlas se zpracováním zadaných údajů (jméno, telefon, e-mail, ip adresa) společnosti B3 Technology, s.r.o., IČ: 07330600, se sídlem Novostavby 126/23, 435 11 Lom (správce dat), za účelem předání dotazu z tohoto formuláře Vámi vybranému inzerentovi a zpětného kontaktování mé osoby. Osobní údaje bude správce zpracovávat manuálně i automaticky přímo prostřednictvím svých zaměstnanců. Informace předané tímto formulářem budou uloženy v databázi správce maximálně po dobu 10 let. Odvolání souhlasu s uložením a zpracováním poskytnutých dat lze e-mailem na info@realitypro.eu. V případě podezření na neoprávněné použití Vámi poskytnutých údajů máte právo předat podnět k šetření Úřadu pro ochranu osobních údajů. Více informací
Chystáte se prodat nemovitost?
Pomůžeme Vám!

Inzerát si prohlédlo 5 lidí

Prodejce

REALITY TOUŠOVÁ s.r.o.

REALITY TOUŠOVÁ s.r.o.

Hlídací pes

Chcete dostávat emailem podobné nabídky prodeje bytů 2+1 v Plzni?

Podobné nemovitosti