Prodej pozemku pro bydlení, Libníč, 1004 m2

Libníč

4 969 800 Kč /za nemovitost HYPOTÉKA od 22 212 Kč /za měsíc
Prověřené firmy v Libníči

Výkup a prodej starého nábytku

Informace k pozemku

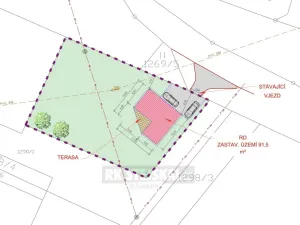
Nabízíme k prodeji stavební pozemek v klidné a vyhledávané obci Libníč, vzdálené pouhých 6 km od centra Českých Budějovic a jen 3 km od nájezdu na dálnici D3.
Pozemek má obdélníkový tvar a rovinatý terén, což výrazně snižuje náklady na terénní úpravy. Prodává se včetně stavebního povolení na rodinný dům.
Plánovaný dům je navržen o dispozici 4+kk až 5+kk s podlahovou plochou přibližně 140 m², přičemž vnitřní dispozici je možné upravit dle individuálních požadavků.
Veškeré inženýrské sítě jsou v dosahu – kanalizace vede přímo přes pozemek, elektřina a obecní vodovod se nacházejí v bezprostřední blízkosti a je možné je snadno připojit. Přístup je zajištěn z obecní komunikace.
V obci nechybí základní občanská vybavenost, například mateřská škola či potraviny. Libníč je ideálním místem pro rodinné bydlení v kontaktu s přírodou – les se nachází necelý kilometr od pozemku. Lokalita nabízí vynikající dopravní dostupnost do města a zároveň klid a soukromí venkovského prostředí.
Neváhejte nás kontaktovat pro více informací nebo si domluvte osobní prohlídku.

Parametry pozemku

Cena
4 969 800 Kč /za nemovitost Spočítat hypotéku
Aktualizováno
16. 3. 2026
Adresa
Libníč
ID
06384
Stav objektu
Velmi dobrý
Lokalita objektu
Okraj obce
Plocha pozemku
1004 m2
Elektřina
Bez přípojky
Komunikace
Asfaltová
Doprava
Silnice, Autobus
Bezbarierový přístup

Kontaktovat makléře

Realitní kancelář

Logo RK Stejskal & Šandera

RK Stejskal & Šandera

Krajinská 17, České Budějovice

Chystáte se prodat nemovitost?
Pomůžeme Vám!

Máte zájem o tento pozemek?

Tímto, v souladu s nařízením Evropského parlamentu a Rady (EU) 2016/679, v platném znění, prohlašuji, že mi je alespoň 16 let a uděluji tak svůj souhlas se zpracováním zadaných údajů (jméno, telefon, e-mail, ip adresa) společnosti B3 Technology, s.r.o., IČ: 07330600, se sídlem Novostavby 126/23, 435 11 Lom (správce dat), za účelem předání dotazu z tohoto formuláře Vámi vybranému inzerentovi a zpětného kontaktování mé osoby. Osobní údaje bude správce zpracovávat manuálně i automaticky přímo prostřednictvím svých zaměstnanců. Informace předané tímto formulářem budou uloženy v databázi správce maximálně po dobu 10 let. Odvolání souhlasu s uložením a zpracováním poskytnutých dat lze e-mailem na info@realitypro.eu. V případě podezření na neoprávněné použití Vámi poskytnutých údajů máte právo předat podnět k šetření Úřadu pro ochranu osobních údajů. Více informací
Chystáte se prodat nemovitost?
Pomůžeme Vám!

Inzerát si prohlédlo 1 lidí

Prodejce

Mgr. Dušan Karl

Mgr. Dušan Karl

Hlídací pes

Chcete dostávat emailem podobné nabídky prodeje pozemků pro bydlení v Libníči?

Podobné nemovitosti