Prodej pozemku pro bydlení, Olovnice, 925 m2

Olovnice

4 600 Kč /za metr čtvereční HYPOTÉKA od 21 Kč /za měsíc
Prověřené firmy v Olovnici

Informace k pozemku

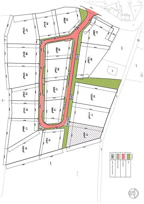
Nabízíme k prodeji stavební pozemek o výměře 925 m2 v obci Olovnice. Součástí technického vybavení pozemku je vodovodní přípojka, kanalizační přípojka, zakončené v šachtě na pozemku. Elektřina přivedena do elektroměrových pilířů postavených na hranici pozemku, součástí kupní ceny je jistič 3x25A. Koeficient zastavěnosti je 0,35, tedy 35 % z výměry pozemku. Garáž může být součástí RD nebo samostatně stojící, dům může mít 1 NP a podkroví, směr hřebene může být kolmý i rovnoběžný s komunikací. Po kolaudaci bude komunikace předána do majetku obce Olovnice, na základě uzavřené Plánovací smlouvy.
Nabízíme optimální financování s možností porovnání úrokových sazeb a bonusů jednotlivých bank.
Obec je velmi dobře dopravně dostupná, směr Praha, Slaný, Kralupy nad Vltavou, Kladno. Dopravní obslužnost je zajišťována autobusy a železnicí. V obci je mateřská škola, prodejna smíšeného zboží, restaurace, fotbalové hřiště, obecní úřad. V případě vašeho zájmu zašlu GP, územní rozhodnutí a další dokumentaci.

Parametry pozemku

Cena
4 600 Kč /za metr čtvereční Spočítat hypotéku
Aktualizováno
10. 3. 2026
Adresa
Olovnice
ID
N00024
Lokalita objektu
Okraj obce
Plocha pozemku
925 m2
Komunikace
Dlážděná
Doprava
Vlak, Silnice, Autobus

Kontaktovat makléře

Máte zájem o tento pozemek?

Tímto, v souladu s nařízením Evropského parlamentu a Rady (EU) 2016/679, v platném znění, prohlašuji, že mi je alespoň 16 let a uděluji tak svůj souhlas se zpracováním zadaných údajů (jméno, telefon, e-mail, ip adresa) společnosti B3 Technology, s.r.o., IČ: 07330600, se sídlem Novostavby 126/23, 435 11 Lom (správce dat), za účelem předání dotazu z tohoto formuláře Vámi vybranému inzerentovi a zpětného kontaktování mé osoby. Osobní údaje bude správce zpracovávat manuálně i automaticky přímo prostřednictvím svých zaměstnanců. Informace předané tímto formulářem budou uloženy v databázi správce maximálně po dobu 10 let. Odvolání souhlasu s uložením a zpracováním poskytnutých dat lze e-mailem na info@realitypro.eu. V případě podezření na neoprávněné použití Vámi poskytnutých údajů máte právo předat podnět k šetření Úřadu pro ochranu osobních údajů. Více informací
Chystáte se prodat nemovitost?
Pomůžeme Vám!

Inzerát si prohlédlo 2 lidí

Prodejce

Ing. Karolína Veinerová

Ing. Karolína Veinerová

Hlídací pes

Chcete dostávat emailem podobné nabídky prodeje pozemků pro bydlení v Olovnici?

Podobné nemovitosti