Prodej pozemku pro bydlení, Hořín, 800 m2

Hořín

6 500 Kč /za metr čtvereční HYPOTÉKA od 29 Kč /za měsíc
Prověřené firmy v Hoříně

Informace k pozemku

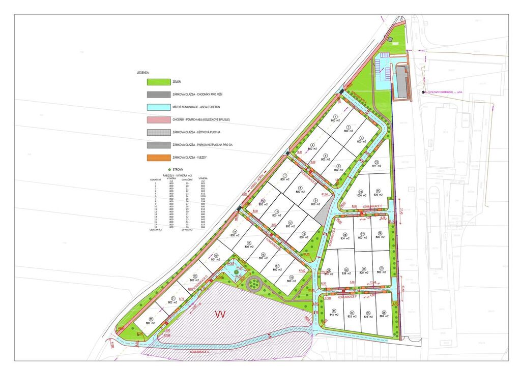
Naše společnost si Vám dovoluje nabídnout v rámci projektu Bílé břehy v obci Hořín u Mělníka k prodeji stavební parcely o výměře cca 800 m2, určené k výstavbě rodinných domů.
Každý pozemek bude připojen na kompletní inženýrské sítě elektřinu, vodovod, užitkovou vodu, splaškovou i tlakovou kanalizaci, plynovod, teplovod a sdělovací kabely.
Přístup bude zajištěn po nově vybudovaných komunikacích s veřejným osvětlením a chodníky.

V současné době se vypracovává projektová dokumentace s plánovanou výstavbou na jaře 2026. Výhodou pro budoucího majitele je zaplacení celé kupní ceny na dvě části. První část kupní ceny složí klient ve výši 40 % a zbylou část 60 % složí po dokončení zasíťování stavebního pozemku.

Součástí lokality budou nová sportoviště, dětské hřiště a prostor pro komerční využití (například obchod s potravinami). Do budoucna se počítá také s vybudováním bruslařské dráhy, která povede až k připravovanému přístavišti.

Obec Hořín disponuje mateřskou a základní školou, obchodem s potravinami a obecním úřadem. V bezprostřední blízkosti se nachází město Mělník s veškerou další občanskou vybaveností.

Okolí je ideální pro rodiny, sportovce i milovníky přírody najdete zde kontaktní zoopark Zelčín, Mělnický zámek s vinnými sklepy, cyklostezky podél Labe a Vltavy nebo romantickou krajinu CHKO Kokořínsko s hradem Kokořín a dalšími přírodními zajímavostmi.
Díky rychlému napojení na dálnici D8 je zajištěna výborná dopravní dostupnost do Prahy se dostanete za cca 40 minut, do Ústí nad Labem za hodinu. Autobusové a vlakové spojení je k dispozici v Mělníku.

Projekt Bílé břehy je ideální volbou pro ty, kteří hledají klidné a moderní bydlení s přírodou na dosah a městem kousek za rohem.
Kontaktujte nás pro více informací a rezervaci pozemku.

Parametry pozemku

Cena
6 500 Kč /za metr čtvereční Spočítat hypotéku
Aktualizováno
2. 12. 2025
Adresa
Hořín
ID
67
Plocha pozemku
800 m2
Plyn
Plynovod
Odpad
Veřejná kanalizace
Komunikace
Asfaltová, Betonová, Dlážděná
Doprava
Vlak, Dálnice, Silnice, MHD, Autobus
Voda
Místní zdroj vody, Vodovod
Bezbarierový přístup

Kontaktovat makléře

Realitní kancelář

Logo Podřipská investiční s.r.o.

Podřipská investiční s.r.o.

Husovo náměstí 42, Roudnice nad Labem

Chystáte se prodat nemovitost?
Pomůžeme Vám!

Máte zájem o tento pozemek?

Tímto, v souladu s nařízením Evropského parlamentu a Rady (EU) 2016/679, v platném znění, prohlašuji, že mi je alespoň 16 let a uděluji tak svůj souhlas se zpracováním zadaných údajů (jméno, telefon, e-mail, ip adresa) společnosti B3 Technology, s.r.o., IČ: 07330600, se sídlem Novostavby 126/23, 435 11 Lom (správce dat), za účelem předání dotazu z tohoto formuláře Vámi vybranému inzerentovi a zpětného kontaktování mé osoby. Osobní údaje bude správce zpracovávat manuálně i automaticky přímo prostřednictvím svých zaměstnanců. Informace předané tímto formulářem budou uloženy v databázi správce maximálně po dobu 10 let. Odvolání souhlasu s uložením a zpracováním poskytnutých dat lze e-mailem na info@realitypro.eu. V případě podezření na neoprávněné použití Vámi poskytnutých údajů máte právo předat podnět k šetření Úřadu pro ochranu osobních údajů. Více informací
Chystáte se prodat nemovitost?
Pomůžeme Vám!

Inzerát si prohlédlo 6 lidí

Prodejce

Jitka Abrtová

Jitka Abrtová

Hlídací pes

Chcete dostávat emailem podobné nabídky prodeje pozemků pro bydlení v Hoříně?

Podobné nemovitosti