Prodej rodinného domu, Staňkovice, 127 m2

Staňkovice u Žatce

5 950 000 Kč /za nemovitost HYPOTÉKA od 26 593 Kč /za měsíc
Prověřené firmy v Staňkovicích

Okna a dveře

Informace k domu

Nabízíme k prodeji moderní cihlovou novostavbu rodinného domu ve fázi hrubé stavby, nacházející se v klidné části obce Staňkovice, okres Louny. Dům představuje ideální příležitost dokončit si bydlení přesně podle vlastních představ, nebo využít možnost kompletní dostavby na klíč přímo od nás.

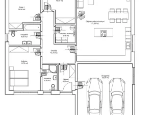
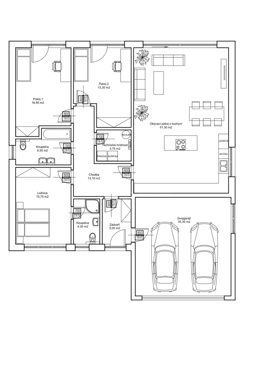
Dům je navržen s důrazem na komfort rodinného bydlení a nabízí užitnou plochu 127 m² při zastavěné ploše 193 m². Dispozice zahrnuje čtyři prostorné pokoje s dostatkem místa pro rodinu, dětské pokoje, pracovnu i společný obytný prostor.

Velkou výhodou je prostorná garáž o velikosti 35 m², která poskytuje komfortní parkování i dostatek prostoru pro uskladnění, dílnu nebo hobby zázemí.

Celková plocha pozemku činí 857 m², z čehož zahrada o velikosti 664 m² nabízí široké možnosti využití. Je ideální pro vybudování terasy, pergoly, bazénu, dětského hřiště nebo relaxační zóny. Díky své velikosti poskytuje dostatek soukromí i prostoru pro rodinné aktivity.

Dům je aktuálně nabízen ve fázi hrubé stavby, což umožňuje dokončení interiéru přesně dle vašich požadavků a standardu. Současně nabízíme možnost kompletní dostavby domu na klíč včetně všech profesí, finálních povrchů a připravenosti k okamžitému bydlení. Cena kompletně dokončeného domu na klíč činí 7 950 000 Kč.

Nemovitost se nachází v klidné a bezpečné lokalitě vhodné pro rodinné bydlení. V obci je dostupná základní občanská vybavenost včetně mateřské a základní školy. Okolí nabízí příjemné prostředí s možností procházek, cyklovýletů a aktivního trávení volného času.

Tato nemovitost představuje ideální příležitost pro ty, kteří hledají moderní rodinný dům s možností dokončení dle vlastních představ nebo bezstarostné řešení formou kompletní realizace na klíč v klidné lokalitě.

Pro více informací, cenovou nabídku dostavby nebo domluvení prohlídky nás neváhejte kontaktovat.

Parametry domu

Cena
5 950 000 Kč /za nemovitost Spočítat hypotéku
Aktualizováno
26. 2. 2026
Adresa
Staňkovice u Žatce
ID
1232
Stavba
Cihlová
Stav objektu
Novostavba
Vybaveno
Ne
Typ objektu
Přízemní
Druh objektu
Samostatný
Lokalita objektu
Klidná část obce
Užitná plocha
127 m2
Zastavěná plocha
193 m2
Podlahová plocha
162 m2
Plocha pozemku
857 m2
Plocha zahrady
663 m2
Třída energetické náročnosti
B - Velmi úsporná
Elektřina
230V
Plyn
Plynovod
Odpad
Veřejná kanalizace
Komunikace
Dlážděná, Asfaltová
Doprava
Dálnice, Silnice, MHD, Autobus
Voda
Místní zdroj vody, Vodovod, Retenční nádrž na dešt’ovou vodu
Garáž
Bezbarierový přístup
Převod do OV
Parkování

Kontaktovat makléře

Máte zájem o tento dům?

Tímto, v souladu s nařízením Evropského parlamentu a Rady (EU) 2016/679, v platném znění, prohlašuji, že mi je alespoň 16 let a uděluji tak svůj souhlas se zpracováním zadaných údajů (jméno, telefon, e-mail, ip adresa) společnosti B3 Technology, s.r.o., IČ: 07330600, se sídlem Novostavby 126/23, 435 11 Lom (správce dat), za účelem předání dotazu z tohoto formuláře Vámi vybranému inzerentovi a zpětného kontaktování mé osoby. Osobní údaje bude správce zpracovávat manuálně i automaticky přímo prostřednictvím svých zaměstnanců. Informace předané tímto formulářem budou uloženy v databázi správce maximálně po dobu 10 let. Odvolání souhlasu s uložením a zpracováním poskytnutých dat lze e-mailem na info@realitypro.eu. V případě podezření na neoprávněné použití Vámi poskytnutých údajů máte právo předat podnět k šetření Úřadu pro ochranu osobních údajů. Více informací
Chystáte se prodat nemovitost?
Pomůžeme Vám!

Inzerát si prohlédlo 5 lidí

Prodejce

Ladislav Kodl

Ladislav Kodl

Hlídací pes

Chcete dostávat emailem podobné nabídky prodeje rodinných domů v Staňkovicích (okr. Louny)?

Podobné nemovitosti