Soccer reality

Pronájem skladu, Praha - Horní Počernice, Ve žlíbku, 382 m2 (ID: 2776947)

Ve žlíbku, Praha 9, Horní Počernice

22 000 Kč /za měsíc Získejte výhodnou HYPOTÉKU

(+ služby areálu 1.910 Kč/měs)

Prověřené firmy v Praze 9

Stěhovací služby

Výkup a prodej starého nábytku

Informace k nemovitosti

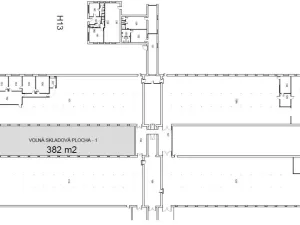
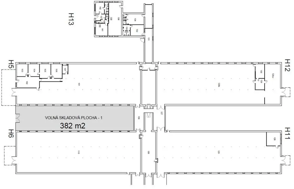
Nabízím k pronájmu venkovní skladovou plochu v komerčním areálu v Praze 9 - Horních Počernicích, ul. Ve Žlíbku. Areál se nachází na okraji Horních Počernic s výborným dopravním napojením na městský okruh a dálniční síť, zastávka MHD přímo před areálem. Přístup do areálu je 24 hod. denně, je zde nepřetržitá ostraha, kamerový systém a obchůzkový systém s GPS monitoringem. K dispozici je venkovní uzamčená plocha o ploše 382 m2 s dostatečným manipulačním prostorem a příjezdem pro kamiony. Měsíční poplatky za společné služby je 1.910 Kč. K dispozici ihned.

Parametry nemovitosti

Cena
22 000 Kč /za měsíc
Poznámka k ceně
+ služby areálu 1.910 Kč/měs
Aktualizováno
13. 1. 2026
Adresa
Ve žlíbku, Praha 9, Horní Počernice
ID
81
Stavba
Cihlová
Stav objektu
Dobrý
Typ objektu
Přízemní
Užitná plocha
382 m2
Bezbarierový přístup

Kontaktovat makléře

Máte zájem o tuto nemovistost?

Tímto, v souladu s nařízením Evropského parlamentu a Rady (EU) 2016/679, v platném znění, prohlašuji, že mi je alespoň 16 let a uděluji tak svůj souhlas se zpracováním zadaných údajů (jméno, telefon, e-mail, ip adresa) společnosti B3 Technology, s.r.o., IČ: 07330600, se sídlem Novostavby 126/23, 435 11 Lom (správce dat), za účelem předání dotazu z tohoto formuláře Vámi vybranému inzerentovi a zpětného kontaktování mé osoby. Osobní údaje bude správce zpracovávat manuálně i automaticky přímo prostřednictvím svých zaměstnanců. Informace předané tímto formulářem budou uloženy v databázi správce maximálně po dobu 10 let. Odvolání souhlasu s uložením a zpracováním poskytnutých dat lze e-mailem na info@realitypro.eu. V případě podezření na neoprávněné použití Vámi poskytnutých údajů máte právo předat podnět k šetření Úřadu pro ochranu osobních údajů. Více informací
Chystáte se prodat nemovitost?
Pomůžeme Vám!

Inzerát si prohlédlo 9 lidí

Prodejce

Vanda Vlašánková

Vanda Vlašánková

Hlídací pes

Chcete dostávat emailem podobné nabídky pronájmu skladů v Praze 9?

Podobné nemovitosti