Prodej rodinného domu, Praha, Žitavského, 207 m2

Žitavského, Praha 5

25 000 000 Kč /za nemovitost HYPOTÉKA od 111 735 Kč /za měsíc
Prověřené firmy v Praze 5

Stěhovací služby

Výkup a prodej starého nábytku

Informace k domu

Ve výhradním zastoupení majitele nabízím k prodeji kompletně zrekonstruovaný obytný dům o užitné ploše 207 m², který se nachází v atraktivní a klidné lokalitě Prahy 5 – Zbraslav, na ulici Žitavského.

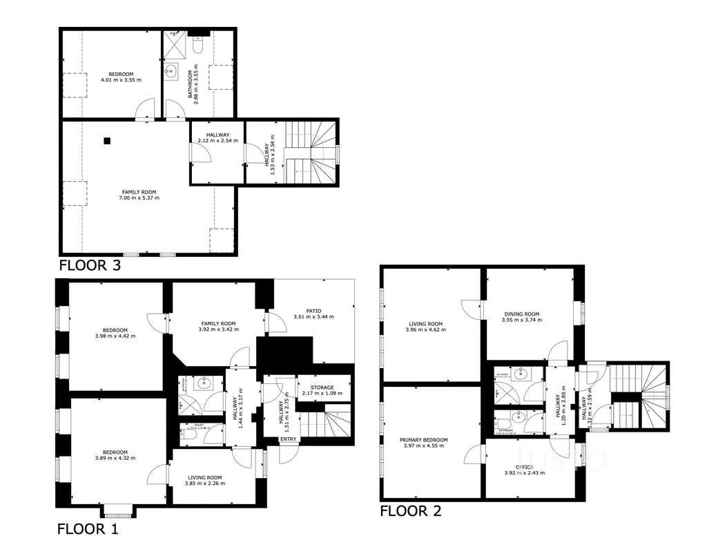
Dům je dle listu vlastnictví rozdělen na 3 bytové jednotky a může tak sloužit jako vícegeneračních rodinný dům.

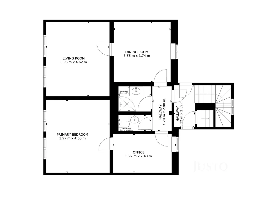
V přízemí se nachází bezbariérová bytová jednotka o dispozici 3+1. Celková plocha bytu s příslušenstvím bez podlahové plochy svislých konstrukcí je 58,9 m² a se svislými konstrukcemi je 66,4 m².
K bytu náleží terasa o výlučném užívání o ploše 12,5 m².

V prvním patře je bytová jednotka o dispozici 3+1. Celková plocha bytu s příslušenstvím bez podlahové plochy svislých konstrukcí je 65,1 m² a se svislými konstrukcemi je 77,1 m².

V druhém patře je podkrovní bytová jednotka o dispozici 2+kk. Celková plocha bytu s příslušenstvím bez podlahové plochy svislých konstrukcí je 58,3 m² a se svislými konstrukcemi je 63,6 m².

Každý z bytů disponuje kvalitně provedeným interiérem s moderním designem, který je připraven k okamžitému použití bez nutnosti dalších investic, vyjma kuchyňské linky.

Ke každému z bytů náleží jedno parkovací stání.

Objekt je napojen na centrální plynové vytápění, což zajišťuje komfortní a efektivní provoz všech bytů po celý rok.

Stupeň energetické náročnosti budovy je "B", což je zárukou nízkých provozních nákladů.

Dům je situován v žádané části Zbraslavi s výbornou občanskou vybaveností a dostupností služeb. V okolí najdete například supermarket Lidl (990 m), fitness centrum, restaurace a kavárny, či sportovní a rekreační zařízení. Nedaleko je i vlaková a autobusová doprava, což zajišťuje skvělou dostupnost do centra Prahy.

Pro více informací o této nemovitosti nebo sjednání prohlídky nás prosím kontaktujte nebo vyplňte formulář.

Parametry domu

Cena
25 000 000 Kč /za nemovitost Spočítat hypotéku
Aktualizováno
2. 1. 2026
Adresa
Žitavského, Praha 5
ID
J12174
Stavba
Cihlová
Stav objektu
Po rekonstrukci
Vybaveno
Ne
Typ objektu
Patrový
Druh objektu
Samostatný
Lokalita objektu
Klidná část obce
Vlastnictví
Osobní
Užitná plocha
207 m2
Podlahová plocha
219 m2
Plocha pozemku
331 m2
Třída energetické náročnosti
B - Velmi úsporná
Plyn
Plynovod
Odpad
Veřejná kanalizace
Topení
Ústřední plynové
Voda
Vodovod
Topné těleso
Radiátory
Zdroj topení
Plynový kotel
Zdroj teplé vody
Plynový kotel
Terasa
Výtah
Parkování

Kontaktovat makléře

Realitní kancelář

Logo JUSTO Česká republika

JUSTO Česká republika

Korunní 2569/108, Vinohrady, Praha

Chystáte se prodat nemovitost?
Pomůžeme Vám!

Máte zájem o tento dům?

Tímto, v souladu s nařízením Evropského parlamentu a Rady (EU) 2016/679, v platném znění, prohlašuji, že mi je alespoň 16 let a uděluji tak svůj souhlas se zpracováním zadaných údajů (jméno, telefon, e-mail, ip adresa) společnosti B3 Technology, s.r.o., IČ: 07330600, se sídlem Novostavby 126/23, 435 11 Lom (správce dat), za účelem předání dotazu z tohoto formuláře Vámi vybranému inzerentovi a zpětného kontaktování mé osoby. Osobní údaje bude správce zpracovávat manuálně i automaticky přímo prostřednictvím svých zaměstnanců. Informace předané tímto formulářem budou uloženy v databázi správce maximálně po dobu 10 let. Odvolání souhlasu s uložením a zpracováním poskytnutých dat lze e-mailem na info@realitypro.eu. V případě podezření na neoprávněné použití Vámi poskytnutých údajů máte právo předat podnět k šetření Úřadu pro ochranu osobních údajů. Více informací
Chystáte se prodat nemovitost?
Pomůžeme Vám!

Inzerát si prohlédlo 7 lidí

Prodejce

Ing. Milan Šámal

Ing. Milan Šámal

Hlídací pes

Chcete dostávat emailem podobné nabídky prodeje rodinných domů v Praze 5?

Podobné nemovitosti