Prodej rodinného domu, Ústí nad Labem - Klíše, Cestička, 224 m2 (ID: 2757371)

Cestička, Ústí nad Labem, Klíše

5 490 000 Kč /za nemovitost HYPOTÉKA od 24 537 Kč /za měsíc
Prověřené firmy v Ústí nad Labem

Okna a dveře

Rekonstrukce

Zámečnické práce

Informace k domu

!!SLEVA!! z 6.490.000 Kč na 5.490.000 Kč
Prodej prvorepublikového domu (polovina dvojdomku) ve vilové čtvrti Klíše. Dům je před rekonstrukcí, se zpracovaným projektem. Stavební povolení je těsně před vydáním. Dům stojí v klidné ulici Cestička.
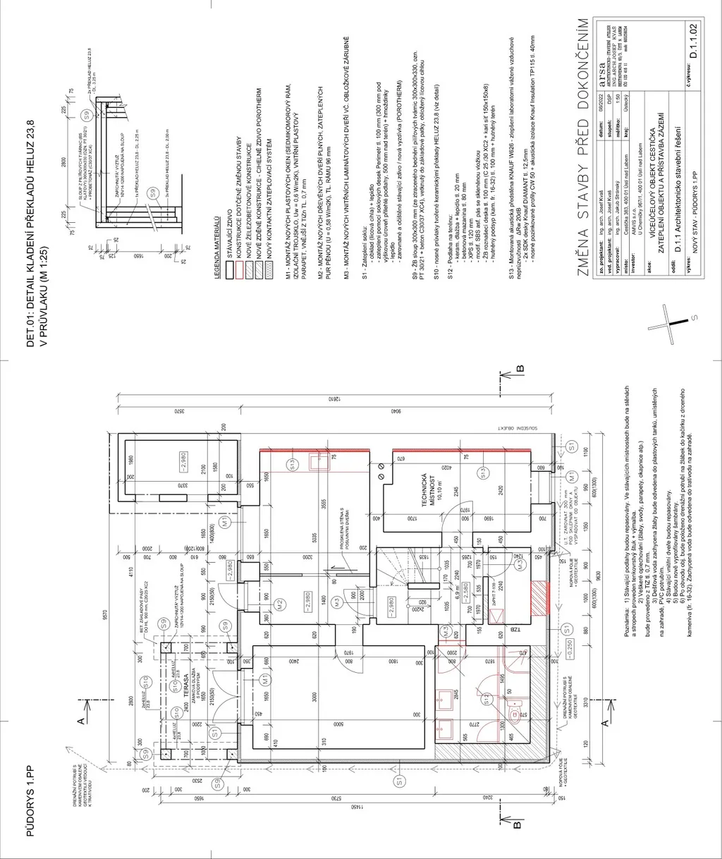
Dům má celkem tři nadzemní podlaží a půdu, přičemž dvě podlaží jsou přístupná vchodem z ulice a jedno podlaží je přístupné samostatným vchodem ze zahrady, které lze využít jako technické zázemí domu nebo po úpravách jako samostatný byt. V projektu se počítá s vybudováním dvou vlastních stání pro vozidla na pozemku, případně lze vytvořit další přímo před domem.

Stávající podlahová plocha 1. NP je cca 58 m2, 2. NP je cca 64 m2, 3. NP je cca 51 m2 a půdy cca 51 m2. Jednotlivá patra jsou přístupná z centrálního schodiště. Kuchyň a koupelna v obou patrech mají okna na severní stranu do ulice, obývací pokoj a ložnice mají okna situovaná na jihovýchodní, slunnou stranu.
V novém projektu se počítá s podlahovou plochou 1. NP (v úrovni zahrady pozemku) o cca 58 m2. Skládá se z centrální chodby, předsíně, koupelny, která zároveň slouží jako technická místnost, šatny, kuchyně s jídelnou a obývacího pokoje. Jídelna a obývací pokoj mají okna do zahrady ve vnitrobloku. Projekt počítá s vybudováním terasy o cca 6,5 m2, orientovanou do zahrady, na kterou se vchází z obývacího pokoje v 1. NP.
Podlahová plocha 2. NP je cca 64 m2, skládá se ze vstupní předsíně, chodby, samostatné toalety, a dvou pokojů, přičemž z jednoho je vstup o podlahové ploše cca 7,4 m2.
Podlahová plocha 3. patra je cca 51,6 m2, skládá se z hlavní bytové koupelny, samostatné toalety, průchozího pokoje s podlahovou plochou cca 13,6 m2, ze kterého se vstupuje do neprůchozího pokoje o podlahové ploše cca 19,3 m2. Nabízí se možnost vytvořit výstup z tohoto pokoje a na střeše relaxačního prostoru si vytvořit terasu o velikosti cca 15 m2, ze které by byl výhled do vnitrobloku a na pohoří obklopující Ústí nad Labem. Celková plocha je cca 224 m2 včetně 51 m2 půdy.
Je možné alternativně vybudovat v 1. NP a 2. NP mezonetový byt se zahradou a v 3.NP a půdě samostatný menší byt s vlastním vchodem.
Plocha zahrady je cca 281 m2, její velkou výhodou je umístění za domem, které díky převýšení kryje před pohledy z ulice a orientace na jihovýchodní stranu, díky tomu je prakticky celý den oslněná slunečními paprsky.
Rekonstrukce zateplení, opláštění, otvorových výplní, mezipatrových izolací a zdroje vytápění je vhodná pro čerpání podpory z programu Nová zelená úsporám.
Dům prozatím nemá vyhotovený průkaz energetické náročnosti, proto je uváděna třída G.

Parametry domu

Cena
5 490 000 Kč /za nemovitost Spočítat hypotéku
Aktualizováno
15. 12. 2025
Adresa
Cestička, Ústí nad Labem, Klíše
ID
25043
Stavba
Cihlová
Stav objektu
Před rekonstrukcí
Typ objektu
Patrový
Druh objektu
Řadový
Lokalita objektu
Klidná část obce
Užitná plocha
224 m2
Podlahová plocha
224 m2
Plocha pozemku
281 m2
Plocha zahrady
281 m2
Třída energetické náročnosti
G - Mimořádně nehospodárná
Elektřina
230V
Odpad
Veřejná kanalizace
Komunikace
Asfaltová
Doprava
Vlak, Dálnice, MHD
Voda
Vodovod
Lodžie
Výtah
Bezbarierový přístup

Kontaktovat makléře

Máte zájem o tento dům?

Tímto, v souladu s nařízením Evropského parlamentu a Rady (EU) 2016/679, v platném znění, prohlašuji, že mi je alespoň 16 let a uděluji tak svůj souhlas se zpracováním zadaných údajů (jméno, telefon, e-mail, ip adresa) společnosti B3 Technology, s.r.o., IČ: 07330600, se sídlem Novostavby 126/23, 435 11 Lom (správce dat), za účelem předání dotazu z tohoto formuláře Vámi vybranému inzerentovi a zpětného kontaktování mé osoby. Osobní údaje bude správce zpracovávat manuálně i automaticky přímo prostřednictvím svých zaměstnanců. Informace předané tímto formulářem budou uloženy v databázi správce maximálně po dobu 10 let. Odvolání souhlasu s uložením a zpracováním poskytnutých dat lze e-mailem na info@realitypro.eu. V případě podezření na neoprávněné použití Vámi poskytnutých údajů máte právo předat podnět k šetření Úřadu pro ochranu osobních údajů. Více informací
Chystáte se prodat nemovitost?
Pomůžeme Vám!

Inzerát si prohlédlo 0 lidí

Prodejce

Petr Krejčí

Petr Krejčí

Hlídací pes

Chcete dostávat emailem podobné nabídky prodeje rodinných domů v Ústí nad Labem?

Podobné nemovitosti