Prodej rodinného domu, Nečtiny - Březín, 115 m2

Nečtiny, Březín

1 870 000 Kč /za nemovitost HYPOTÉKA od 8 358 Kč /za měsíc
Prověřené firmy v Nečtinách

Stěhovací služby

Informace k domu

Hledáte klidné a cenově dostupné bydlení? Pak je tohle příležitost pro vás.
Ve vesnici Březín u Nečtin je na prodej řadový rodinný dům. Zahradu ve vzdálenosti 50m od domu k němu dostanete zdarma.

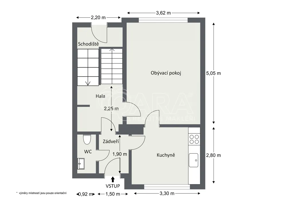
Dům je dispozičně řešený jako 3+1. Na každém patře jsou 2 obytné místnosti, dole je WC s umyvadlem, v patře koupelna s vanou a WC. Součástí domu je balkon a nadstandardně velké a praktické sklepní prostory. Dům má přední i zadní vchod a má vlastní biologickou čističku odpadních vod zprovozněnou před 3 lety. Do domu je zavedený obecní vodovod. Dům potřebuje celkovou modernizaci včetně všech sítí a rozvodů.

Přes dvůr najdete zahradu o rozloze asi 250 m2, která byla původně pronajata od obecního úřadu. Nájemní smlouvu můžete opět obnovit. Pokud budete chtít zahradu do vlastnictví, nebude vás to stát ani korunu navíc. Dostanete ji zdarma jako bonus, stávající majitelé ji pro vás od obecního úřadu odkoupí.

Dům najdete v Březíně v okrese Plzeň-sever, která spadá pod obec Nečtiny (2,5 km). Nečtiny nabízí dobrou občanskou vybavenost - obecní úřad, základní a mateřskou školu, zdravotní středisko, prodejnu potravin a restauraci. Nejbližší města jsou Manětín (9 km) a Plasy (26 km), krajské město Plzeň je vzdáleno 40 km.

Okolí je charakteristické krásnou přírodou, která přitahuje mnoho výletníků a turistů.
Pokud milujete venkov a hledáte klidné a cenově dostupné bydlení, je tohle příležitost pro vás. Zavolejte mi a zajedeme se spolu do Březína podívat.

Parametry domu

Cena
1 870 000 Kč /za nemovitost Spočítat hypotéku
Aktualizováno
28. 3. 2026
Adresa
Nečtiny, Březín
ID
18155
Stavba
Smíšená
Stav objektu
Před rekonstrukcí
Vybaveno
Ne
Typ objektu
Patrový
Druh objektu
Řadový
Lokalita objektu
Klidná část obce
Užitná plocha
115 m2
Plocha pozemku
63 m2
Třída energetické náročnosti
G - Mimořádně nehospodárná
Elektřina
230V
Odpad
ČOV pro celý objekt
Voda
Vodovod
Sklep
Převod do OV

Kontaktovat makléře

Máte zájem o tento dům?

Tímto, v souladu s nařízením Evropského parlamentu a Rady (EU) 2016/679, v platném znění, prohlašuji, že mi je alespoň 16 let a uděluji tak svůj souhlas se zpracováním zadaných údajů (jméno, telefon, e-mail, ip adresa) společnosti B3 Technology, s.r.o., IČ: 07330600, se sídlem Novostavby 126/23, 435 11 Lom (správce dat), za účelem předání dotazu z tohoto formuláře Vámi vybranému inzerentovi a zpětného kontaktování mé osoby. Osobní údaje bude správce zpracovávat manuálně i automaticky přímo prostřednictvím svých zaměstnanců. Informace předané tímto formulářem budou uloženy v databázi správce maximálně po dobu 10 let. Odvolání souhlasu s uložením a zpracováním poskytnutých dat lze e-mailem na info@realitypro.eu. V případě podezření na neoprávněné použití Vámi poskytnutých údajů máte právo předat podnět k šetření Úřadu pro ochranu osobních údajů. Více informací
Chystáte se prodat nemovitost?
Pomůžeme Vám!

Inzerát si prohlédlo 14 lidí

Prodejce

Mgr. Romana Trešlová

Mgr. Romana Trešlová

Hlídací pes

Chcete dostávat emailem podobné nabídky prodeje rodinných domů v Nečtinách?

Top nabídky

Podobné nemovitosti