Pronájem skladu, Praha - Stodůlky, Hábova, 248 m2

Hábova, Praha, Stodůlky

50 000 Kč /za měsíc Získejte výhodnou HYPOTÉKU

(ceny bez DPH)

Prověřené firmy v Praze 5

Stěhovací služby

Výkup a prodej starého nábytku

Informace k nemovitosti

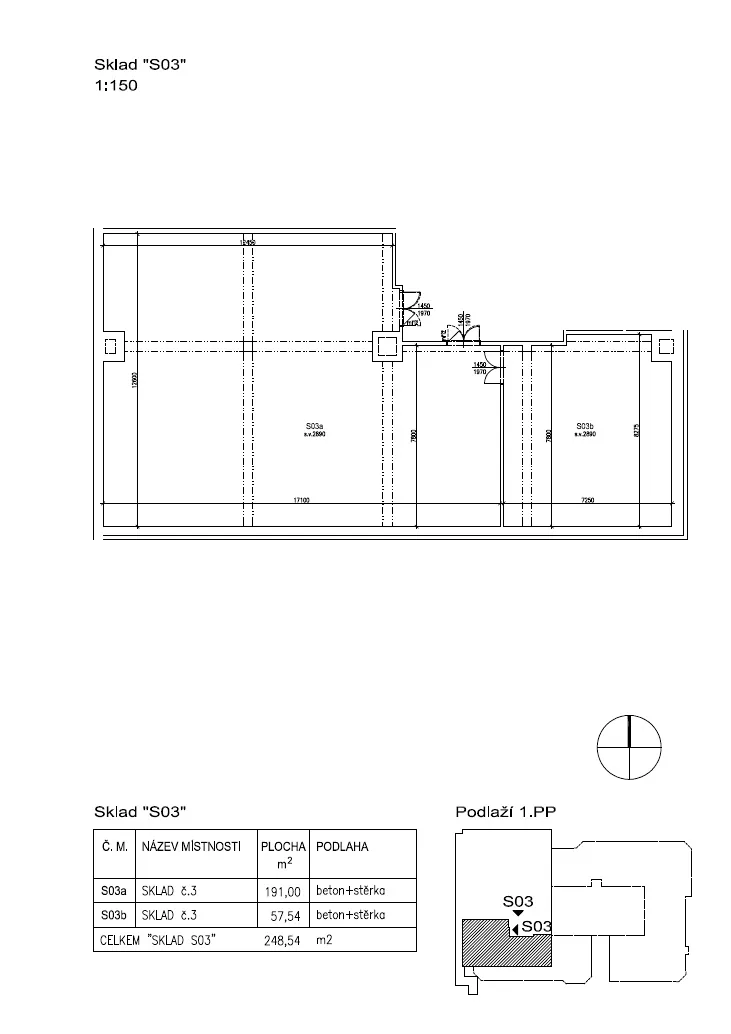
Sklad má plocha 248 m2 a skládá se ze dvou místností.

Zásobování je možné zásobovacím dvorem s nakládací rampou, kde je možno parkovat.

Toalety a úklidová místnost jsou společné na chodbě.

Sklad je v suchém suterénu (není nutné vytápění) s nákladním výtahem 1000 kg, kde se vejde paleta i s vozíkem.


Nabízíme k pronájmu nebytový prostor v obchodním centru Paprsek, kde se nachází celkem 15 provozoven - MAGAKNIHY.CZ, Vietnamská restaurace ZOPRAHA.CZ, CENTRUMAUTOSEDACEK.CZ, FAJNZOO.CZ, GENERALI ČESKÁ POJIŠŤOVNA, IMPERIAL SUSHI, Čínské restaurace Wan Fu Lou, REAL BARBERSHOP, samoobslužná prádelna QuickWash, atd.

Naproti pronajímaného nebytového prostoru je nový projekt od společnosti TRIGEMA s cca 250 byty a prodejnou Albert.

Obchodní centrum je 100 metrů od metra B - Stodůlky. Paprsek se nachází v těsné blízkosti Šostakovičova náměstí mezi bytovou zástavbou sídliště Stodůlky. Je velmi dobře dostupný MHD - stanice metra Stodůlky cca 3 minuty chůze (160 m). Výborná dostupnost s přímou návazností na Pražský okruh a silnice D1, D5, R4, R6 a R7. V docházkové vzdálenosti od objektu se nachází nejrychleji rostoucí administrativní centrum v Praze - CITY WEST se sídlem Komerční banky, Siemens, Hyundai a Vodafone nyní zde pracuje přibližně 6500 lidí, což zaručuje potenciální zákazníky. Současně je zde nová bytová zástavba.

Zásobování je možné zásobovacím dvorem, kde je možno i parkovat.

Možnost stálého parkovacího místa ve dvoře za 2.000 Kč měsíčně (k dispozici je více parkovacích stání).

K dispozici od 1.5.2026 (po dohodě možná dříve)

Parametry nemovitosti

Cena
50 000 Kč /za měsíc
Poznámka k ceně
ceny bez DPH
Náklady na bydlení
měsíční zálohy - společné prostory 600 Kč, výtah 500, voda 700 Kč, elektřina 2.000 Kč, odpad 700 Kč
Aktualizováno
17. 11. 2025
Adresa
Hábova, Praha, Stodůlky
ID
Paprsek skla 248
Stavba
Skeletová
Stav objektu
Dobrý
Užitná plocha
248 m2
Třída energetické náročnosti
F - Velmi nehospodárná
Výtah
Parkování

Kontaktovat makléře

Realitní kancelář

PRAETOR FINANCE, s.r.o.

Opletalova 1417/25, Praha, Nové Město

Chystáte se prodat nemovitost?
Pomůžeme Vám!

Máte zájem o tuto nemovistost?

Tímto, v souladu s nařízením Evropského parlamentu a Rady (EU) 2016/679, v platném znění, prohlašuji, že mi je alespoň 16 let a uděluji tak svůj souhlas se zpracováním zadaných údajů (jméno, telefon, e-mail, ip adresa) společnosti B3 Technology, s.r.o., IČ: 07330600, se sídlem Novostavby 126/23, 435 11 Lom (správce dat), za účelem předání dotazu z tohoto formuláře Vámi vybranému inzerentovi a zpětného kontaktování mé osoby. Osobní údaje bude správce zpracovávat manuálně i automaticky přímo prostřednictvím svých zaměstnanců. Informace předané tímto formulářem budou uloženy v databázi správce maximálně po dobu 10 let. Odvolání souhlasu s uložením a zpracováním poskytnutých dat lze e-mailem na info@realitypro.eu. V případě podezření na neoprávněné použití Vámi poskytnutých údajů máte právo předat podnět k šetření Úřadu pro ochranu osobních údajů. Více informací
Chystáte se prodat nemovitost?
Pomůžeme Vám!

Inzerát si prohlédlo 10 lidí

Prodejce

Tomáš Stehlík

Tomáš Stehlík

Hlídací pes

Chcete dostávat emailem podobné nabídky pronájmu skladů v Praze 5?

Podobné nemovitosti