Prodej rodinného domu, Tlučná, Hlavní, 290 m2

Hlavní, Tlučná

5 500 000 Kč /za nemovitost HYPOTÉKA od 24 582 Kč /za měsíc
Prověřené firmy v Tlučné

Podlahy

Stěhovací služby

Informace k domu

Představuji vám k prodeji rodinný dům na adrese Hlavní 109, Tlučná, jen několik minut
západně od Plzně.

O obci Tlučná:
Tlučná je klidná a oblíbená obec s vynikající dostupností do Plzně – autem se na její okraj dostanete za pouhých 10 minut. Do Tlučné jezdí také MHD z Plzně, což zajišťuje pohodlné spojení i bez auta. Obec nabízí kompletní občanskou vybavenost: školu, školku, lékařský dům, obchody, restaurace, sportovní areál i koupaliště. Okolní příroda je ideální pro procházky, cyklovýlety a klidný rodinný život.

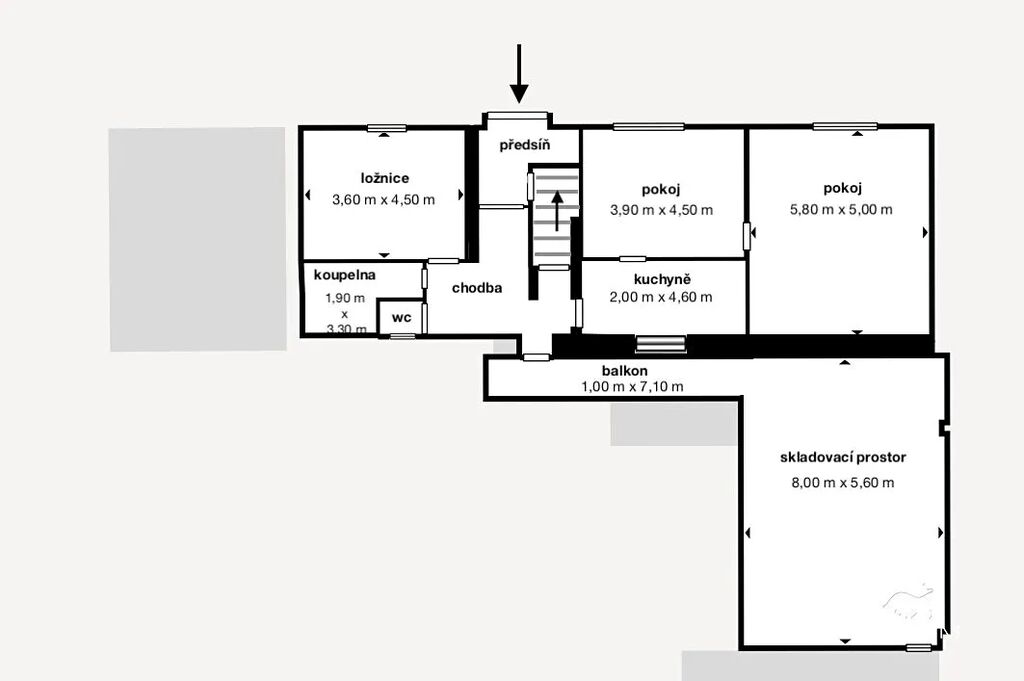
Dispozice domu:
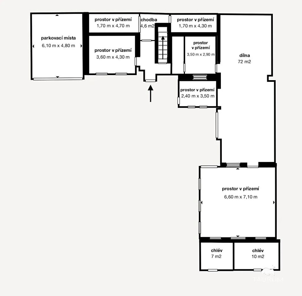
Dům je řešen ve dvou úrovních – vstupní část a obytné prostory se nacházejí v horní úrovni
od silnice, zatímco v nižší části směrem do zahrady jsou situovány technické místnosti, sklepy
a bývalá prádelna s přímým vstupem na pozemek. Součástí domu je dílna a k ní později přistavěná druhá dílna. Na pozemku se nachází také bývalé zemědělské stavby – například chlévy a menší stodola, které lze přetvořit na sklad, garáž nebo prostor pro hobby či drobné podnikání. V obytné části se nachází kuchyně, obývací pokoj a dva pokoje – tedy dispozice 3+1. Dále je zde koupelna a WC. Nad obytnou částí se nachází půdní prostor, vhodný pro uskladnění věcí.

Plochy:
• Obytná plocha: 93,2 m²
• Balkon: 7 m²
• Půdní prostor: 121 m²
• Technické místnosti / dílenské prostory: 200 m²
• Zahrada: 900 m²


Technické informace:
• Elektřina: 230 / 400 V
• Plyn: zaveden do domu
• Kanalizace: obecní
• Voda: ze studny, vodárna v domě
• Ohřev vody: elektrický bojler
• Vytápění: plynový kondenzační kotel Vaillant s radiátory Kermi a měděnými rozvody; k dispozici je také odpojený kotel Atmos na tuhá paliva, který lze znovu připojit
• Střešní krytina: betonová taška Bramac
• Okna: plastová s dvojskly a elektricky ovládanými venkovními žaluziemi
• Fasáda: zateplená na severní a západní straně 5 cm polystyrenem
• Energetický štítek budovy prozatím není k dispozici, ale aktuálně se zpracovává. V souladu se zákonem uvádíme nejnižší možnou třídu – G.



V domě se stále nachází osobní věci majitelů, které si odvezou před předáním novému majiteli.



Pro prodej domu zajišťuji kompletní realitní a právní servis a případně i financování hypotečním úvěrem.

Kontaktujte mě prosím pro domluvení prohlídky:
Miroslav Hlaváč
TAURUM reality s.r.o.


Uvedené výměry jsou orientační.

Parametry domu

Cena
5 500 000 Kč /za nemovitost Spočítat hypotéku
Aktualizováno
13. 11. 2025
Adresa
Hlavní, Tlučná
ID
250042
Stavba
Cihlová
Stav objektu
Dobrý
Vybaveno
Ne
Druh objektu
Samostatný
Užitná plocha
290 m2
Zastavěná plocha
354 m2
Podlahová plocha
93 m2
Plocha pozemku
1 m2
Plocha zahrady
900 m2
Třída energetické náročnosti
G - Mimořádně nehospodárná
Elektřina
230V, 400V
Plyn
Plynovod
Odpad
Veřejná kanalizace
Komunikace
Asfaltová
Doprava
Vlak, Dálnice, Silnice, MHD, Autobus
Voda
Studna
Topné těleso
Radiátory
Zdroj topení
Plynový kotel
Parkování

Kontaktovat makléře

Realitní kancelář

TAURUM reality s.r.o.

Americká 1139/1, Plzeň, Jižní Předměstí

Chystáte se prodat nemovitost?
Pomůžeme Vám!

Máte zájem o tento dům?

Tímto, v souladu s nařízením Evropského parlamentu a Rady (EU) 2016/679, v platném znění, prohlašuji, že mi je alespoň 16 let a uděluji tak svůj souhlas se zpracováním zadaných údajů (jméno, telefon, e-mail, ip adresa) společnosti B3 Technology, s.r.o., IČ: 07330600, se sídlem Novostavby 126/23, 435 11 Lom (správce dat), za účelem předání dotazu z tohoto formuláře Vámi vybranému inzerentovi a zpětného kontaktování mé osoby. Osobní údaje bude správce zpracovávat manuálně i automaticky přímo prostřednictvím svých zaměstnanců. Informace předané tímto formulářem budou uloženy v databázi správce maximálně po dobu 10 let. Odvolání souhlasu s uložením a zpracováním poskytnutých dat lze e-mailem na info@realitypro.eu. V případě podezření na neoprávněné použití Vámi poskytnutých údajů máte právo předat podnět k šetření Úřadu pro ochranu osobních údajů. Více informací
Chystáte se prodat nemovitost?
Pomůžeme Vám!

Inzerát si prohlédlo 1 lidí

Prodejce

Miroslav Hlaváč

Miroslav Hlaváč

Hlídací pes

Chcete dostávat emailem podobné nabídky prodeje rodinných domů v Tlučné?

Podobné nemovitosti