Prodej bytu 3+1, Praha - Krč, Budějovická, 77 m2

Budějovická, Praha 4

10 385 000 Kč /za nemovitost HYPOTÉKA od 46 415 Kč /za měsíc
Prověřené firmy v Praze 4

Stěhovací služby

Výkup a prodej starého nábytku

Informace k bytu

Nabízíme ke koupi světlý a pečlivě udržovaný byt o dispozici 3+1 (77 m²), umístěný v 5. nadzemním podlaží cihlového domu s výtahem ve vyhledávané lokalitě Prahy 4, jen několik minut chůze od stanice metra Budějovická.
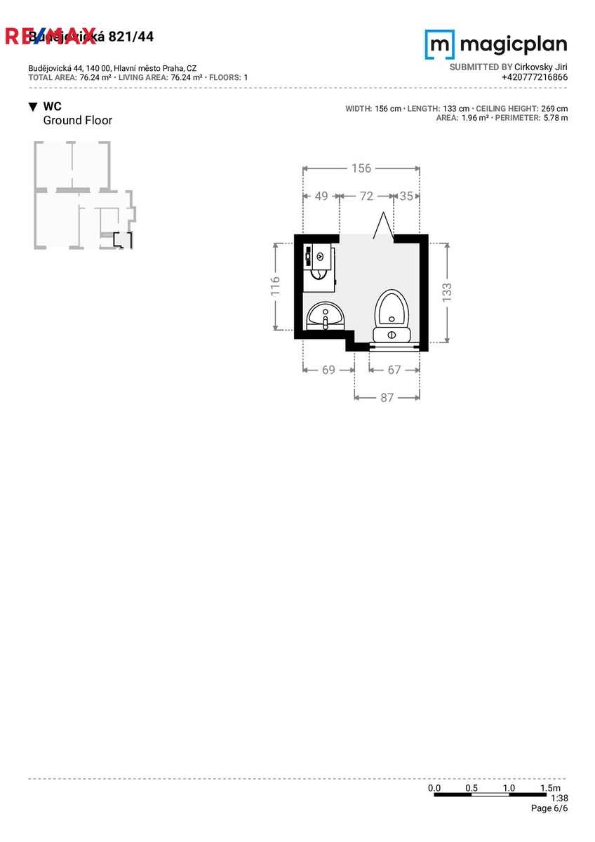
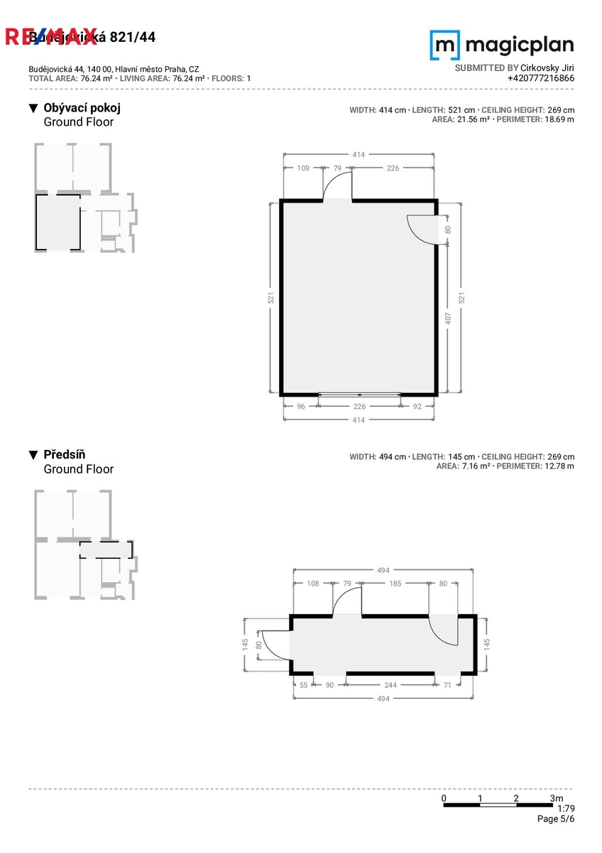
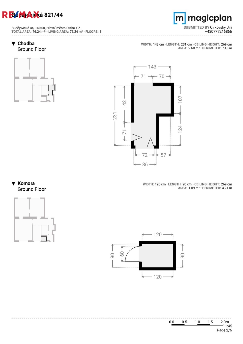
Dispozici tvoří prostorný obývací pokoj (22 m2), kuchyně se spíží, dvě ložnice (15,5 a 15,7 m2), koupelna se sprchovým koutem, samostatná toaleta a předsíň. Dále je k dispozici opravdu velká sklepní kóje s právem výhradního užívání. Byt má dobrou orientaci vůči světovým stranám – obývací pokoj s kuchyní jsou situovány na jihozápad, což zajišťuje příjemné světlo, ložnice jsou pak orientované na severovýchod. Plastová okna jsou opatřena venkovními elektrickými žaluziemi, dřevěné parkety v obytných místnostech, v kuchyni marmoleum, dlažba v koupelně, na toaleta a v předsíni. Udržovaný byt prošel částečnou rekonstrukcí: podhledy, částečně elektřina, renovace parket a aktuálně nová dosud nepoužívaná kuchyňská linka. Vytápění zajišťuje plynový kotel Vaillant.
Dům po revitalizaci – zateplení, střecha, společné prostory, stoupačky, výtah. Těsně za domem se nachází zelené prostranství s dětským hřištěm.
Lokalita nabízí vynikající občanskou vybavenost i dopravní dostupnost. V docházkové vzdálenosti se nachází mateřská a základní škola, gymnázium, dětská hřiště, restaurace, kavárny, poliklinika i obchodní centrum. Pro aktivní odpočinek je ideálním místem blízký park Kavčí hory, vhodný pro procházky, sport i relaxaci nebo to není daleko do Krčského a Michelského lesa. Na metro Budějovická dojdete do pěti minut, zastávka autobusu rovněž pár kroků a automobilem se snadno napojíte na magistrálu a na Jižní spojku.
Pokud tedy hledáte byt v žádané lokalitě a ve skvěle dostupné části Prahy, přijďte se přesvědčit osobně, zda se tato nemovitost stane Vaším novým domovem, kam se budete rádi vracet….

Parametry bytu

Cena
10 385 000 Kč /za nemovitost Spočítat hypotéku
Aktualizováno
30. 10. 2025
Adresa
Budějovická, Praha 4
ID
257-NP01363
Stavba
Cihlová
Stav objektu
Velmi dobrý
Patro
5. z 6
Vlastnictví
Osobní
Užitná plocha
77 m2
Podlahová plocha
77 m2
Třída energetické náročnosti
C - Úsporná
Elektřina
230V
Plyn
Plynovod
Odpad
Veřejná kanalizace
Doprava
MHD
Voda
Vodovod
Sklep
Výtah

Kontaktovat makléře

Realitní kancelář

Logo RE/MAX Cool

RE/MAX Cool

Roztylské náměstí 393/35, Praha 4

Chystáte se prodat nemovitost?
Pomůžeme Vám!

Máte zájem o tento byt?

Tímto, v souladu s nařízením Evropského parlamentu a Rady (EU) 2016/679, v platném znění, prohlašuji, že mi je alespoň 16 let a uděluji tak svůj souhlas se zpracováním zadaných údajů (jméno, telefon, e-mail, ip adresa) společnosti B3 Technology, s.r.o., IČ: 07330600, se sídlem Novostavby 126/23, 435 11 Lom (správce dat), za účelem předání dotazu z tohoto formuláře Vámi vybranému inzerentovi a zpětného kontaktování mé osoby. Osobní údaje bude správce zpracovávat manuálně i automaticky přímo prostřednictvím svých zaměstnanců. Informace předané tímto formulářem budou uloženy v databázi správce maximálně po dobu 10 let. Odvolání souhlasu s uložením a zpracováním poskytnutých dat lze e-mailem na info@realitypro.eu. V případě podezření na neoprávněné použití Vámi poskytnutých údajů máte právo předat podnět k šetření Úřadu pro ochranu osobních údajů. Více informací
Chystáte se prodat nemovitost?
Pomůžeme Vám!

Inzerát si prohlédlo 1 lidí

Prodejce

Soňa Coufalová

Soňa Coufalová

Hlídací pes

Chcete dostávat emailem podobné nabídky prodeje bytů 3+1 v Praze 4?

Podobné nemovitosti