Prodej rodinného domu, Chlumy, 90 m2

Chlumy

1 850 000 Kč /za nemovitost HYPOTÉKA od 8 268 Kč /za měsíc

(včetně právního servisu)

Prověřené firmy v Chlumech

Podlahy

Stěhovací služby

Informace k domu

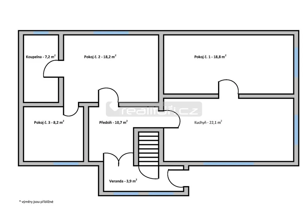
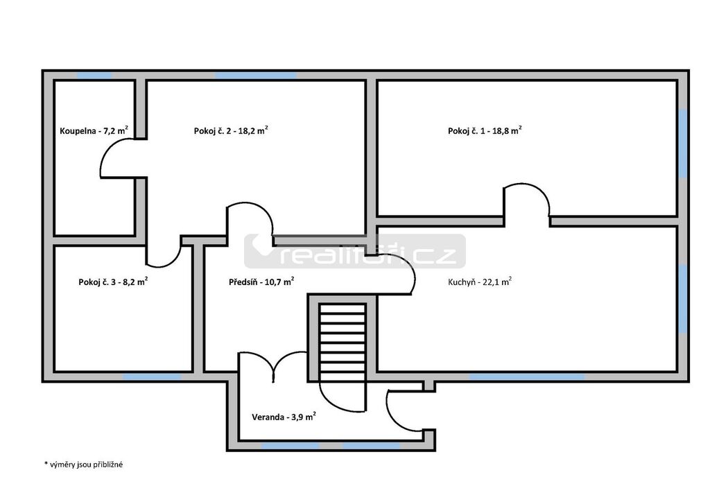
Hledáte místo, kde si odpočinete od shonu města, užijete si klid venkovského života a přitom budete mít vše potřebné na dosah? Pak je tahle chalupa v obci Chlumy ideálním řešením právě pro Vás! Domek, situovaný na mírném návrší s orientací na jih a jihozápad, Vám nabídne nejen krásný výhled do okolí, ale i dostatek světla po celý den. Svoji atmosféru si zachoval díky původním prvkům, jako jsou kachlová kamna v kuchyni i v jednom z pokojů, dřevěné podlahy či prostorná půda s možností rozšíření obytné plochy. Domek je z větší části v původním stavu, nutno počítat s rekonstrukcí.
Co Vám chalupa nabídne?
✔ Velká kuchyně s tradičními kachlovými kamny a plotnou na vaření – ideální pro milovníky venkovské atmosféry.
✔ Tři prostorné pokoje, z nichž jeden má také kachlová kamna s plotnou.
✔ Vybavenost sítí – Elektřina 220/380 V (ve větší části již předělána), voda z vlastní studny a odpady napojené na obecní kanalizaci.
✔ Příprava na koupelnu a WC – instalace je hotová, chybí jen obklady a sanitární vybavení (WC již k dispozici).
✔ Tradiční podlahy – kombinace dřeva a dlažby dodává domu rustikální ráz.
✔ Menší sklípek – ideální pro uchování potravin, vína či domácích produktů.
✔ Prostorná půda – s možností přestavby na útulné podkrovní bydlení.
✔ Hospodářské zázemí – Velká stodola s chlívky poskytuje dostatek prostoru pro dílnu, skladování nebo drobné chovatelské či pěstitelské aktivity.
✔ Pozemek o výměře 872 m2 – část pozemku je zastavěný a před domem je zatravněný dvorek a za domem další travnatá část s velkým ořešákem .

Místo, které si zamilujete
Chalupa se nachází v klidné části vesnice Chlumy, kde na Vás dýchne pohoda venkovského života. Okolí nabízí nádhernou přírodu ideální pro procházky, cykloturistiku či houbaření. Přitom se však nemusíte vzdát pohodlí – město Nepomuk s veškerou občanskou vybaveností je jen 10 minut jízdy autem.

Parametry domu

Cena
1 850 000 Kč /za nemovitost Spočítat hypotéku
Poznámka k ceně
včetně právního servisu
Aktualizováno
22. 10. 2025
Adresa
Chlumy
ID
986
Stavba
Smíšená
Stav objektu
Před rekonstrukcí
Typ objektu
Přízemní
Druh objektu
Samostatný
Lokalita objektu
Klidná část obce
Užitná plocha
90 m2
Zastavěná plocha
280 m2
Podlahová plocha
872 m2
Plocha pozemku
592 m2
Třída energetické náročnosti
G - Mimořádně nehospodárná
Elektřina
230V, 400V
Odpad
Veřejná kanalizace
Topení
Lokální tuhá paliva
Doprava
Autobus
Voda
Místní zdroj vody
Sklep

Kontaktovat makléře

Realitní kancelář

Logo Realitáři Plzeň SE

Realitáři Plzeň SE

Náměstí Republiky 28, Plzeň

Chystáte se prodat nemovitost?
Pomůžeme Vám!

Máte zájem o tento dům?

Tímto, v souladu s nařízením Evropského parlamentu a Rady (EU) 2016/679, v platném znění, prohlašuji, že mi je alespoň 16 let a uděluji tak svůj souhlas se zpracováním zadaných údajů (jméno, telefon, e-mail, ip adresa) společnosti B3 Technology, s.r.o., IČ: 07330600, se sídlem Novostavby 126/23, 435 11 Lom (správce dat), za účelem předání dotazu z tohoto formuláře Vámi vybranému inzerentovi a zpětného kontaktování mé osoby. Osobní údaje bude správce zpracovávat manuálně i automaticky přímo prostřednictvím svých zaměstnanců. Informace předané tímto formulářem budou uloženy v databázi správce maximálně po dobu 10 let. Odvolání souhlasu s uložením a zpracováním poskytnutých dat lze e-mailem na info@realitypro.eu. V případě podezření na neoprávněné použití Vámi poskytnutých údajů máte právo předat podnět k šetření Úřadu pro ochranu osobních údajů. Více informací
Chystáte se prodat nemovitost?
Pomůžeme Vám!

Inzerát si prohlédlo 19 lidí

Prodejce

Martina Dlouhá

Martina Dlouhá

Hlídací pes

Chcete dostávat emailem podobné nabídky prodeje rodinných domů v Chlumech?

Top nabídky

Podobné nemovitosti