Prodej bytu 3+1, Nýrsko, Rybářská, 91 m2 (ID: 2699443)

Rybářská, Nýrsko

5 500 000 Kč /za nemovitost HYPOTÉKA od 24 582 Kč /za měsíc
Prověřené firmy v Nýrsku

Podlahy

Stěhovací služby

Informace k bytu

Prodej bytu 3+1, 91 m², Nýrsko, ul. Náměstí

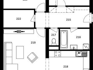
Nabízíme k prodeji byt 3+1 o ploše 91 m² ve 2. patře novostavby v centru Nýrska, pár kroků od náměstí. Byt je ve výstavbě, což umožňuje budoucímu majiteli dokončit interiér dle vlastních představ. V ceně jsou podlahy, dveře, obklady a sanita (bez kuchyňské linky). Nadstandardní vybavení je možné za příplatek. K bytu lze dokoupit garáž. Práce na bytě se začne provádět okamžitě po složení zálohy. Vytápění a ohřev vody zajišťuje moderní plynový kotel. Budova splňuje energetickou třídu B díky trojsklům, zateplení a venkovním žaluziím. Výhodou je bezbariérový vstup, výtah a čipové otevírání. Praktická je i šatna a komora. Nýrsko se nachází 17 km od Klatov a nabízí kompletní občanskou vybavenost, sportovní vyžití i výborné dopravní spojení. Vizualizace jsou pouze informativní dle půdorysu bytu. Pokud Vás naše nabídka zaujala, konktaktujte našeho makléře.

Parametry bytu

Cena
5 500 000 Kč /za nemovitost Spočítat hypotéku
Aktualizováno
18. 11. 2025
Adresa
Rybářská, Nýrsko
ID
911660
Stavba
Cihlová
Stav objektu
Ve výstavbě
Vybaveno
Ne
Lokalita objektu
Centrum obce
Vlastnictví
Osobní
Užitná plocha
91 m2
Lodžie

Kontaktovat makléře

Realitní kancelář

Logo M&M reality

M&M reality

ulice Krakovská 583/9, Praha

Chystáte se prodat nemovitost?
Pomůžeme Vám!

Máte zájem o tento byt?

Tímto, v souladu s nařízením Evropského parlamentu a Rady (EU) 2016/679, v platném znění, prohlašuji, že mi je alespoň 16 let a uděluji tak svůj souhlas se zpracováním zadaných údajů (jméno, telefon, e-mail, ip adresa) společnosti B3 Technology, s.r.o., IČ: 07330600, se sídlem Novostavby 126/23, 435 11 Lom (správce dat), za účelem předání dotazu z tohoto formuláře Vámi vybranému inzerentovi a zpětného kontaktování mé osoby. Osobní údaje bude správce zpracovávat manuálně i automaticky přímo prostřednictvím svých zaměstnanců. Informace předané tímto formulářem budou uloženy v databázi správce maximálně po dobu 10 let. Odvolání souhlasu s uložením a zpracováním poskytnutých dat lze e-mailem na info@realitypro.eu. V případě podezření na neoprávněné použití Vámi poskytnutých údajů máte právo předat podnět k šetření Úřadu pro ochranu osobních údajů. Více informací
Chystáte se prodat nemovitost?
Pomůžeme Vám!

Inzerát si prohlédlo 3 lidí

Prodejce

Vítězslav Melichar

Vítězslav Melichar

Hlídací pes

Chcete dostávat emailem podobné nabídky prodeje bytů 3+1 v Nýrsku?

Podobné nemovitosti