Prodej skladu, Věžky, 2322 m2

Věžky

18 500 000 Kč /za nemovitost HYPOTÉKA od 82 684 Kč /za měsíc
Prověřené firmy v Věžkách

Informace k nemovitosti

Hledáte místo pro své podnikání nebo zajímavou investici?

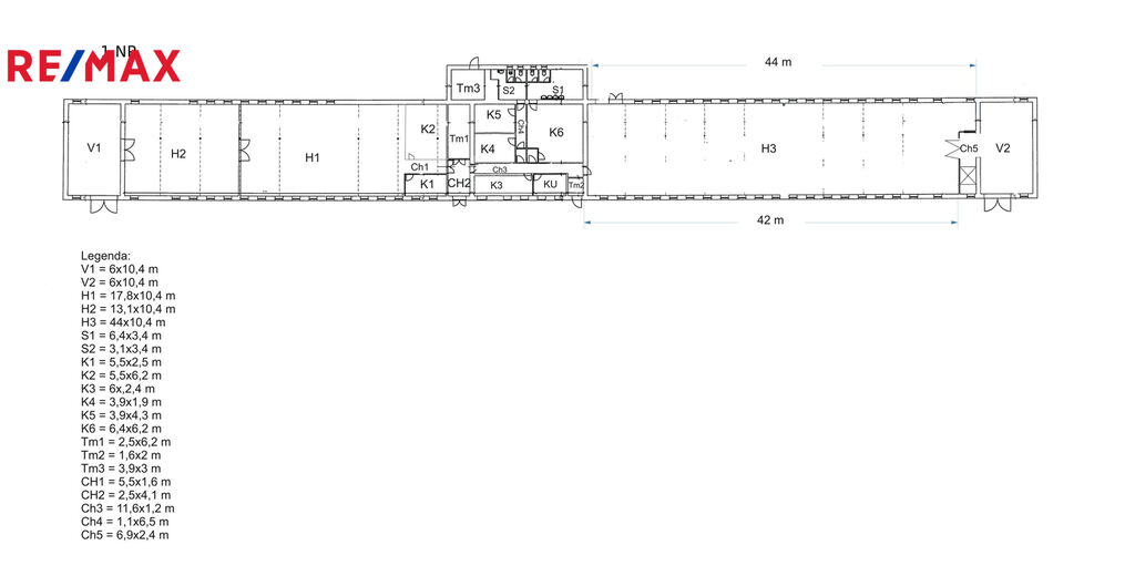
Tato samostatně stojící komerční budova ve Věžkách nabízí široké možnosti využití – ať už pro lehkou výrobu, skladování, logistiku, dílnu, sídlo firmy nebo jako investiční příležitost k pronájmu. Nachází se v okrajové části obce s dobrou dostupností do Kroměříže, Hulína i na dálnici D1 (cca 10 minut jízdy), což z ní dělá strategické místo pro podnikatelskou činnost. Hlavní budova nabízí v 1.NP rozlohu přibližně 1152 m² a je po po rekonstrukci převážné části rozvodů elektřiny, podlah, oken a zateplení stropu. V podkroví se nachází skladové prostory bez vytápění o celkové rozloze cca 1168 m². Do podkroví vede funkční průmyslový výtah, který usnadňuje manipulaci s materiálem i zbožím. Součástí objektu jsou na obou krajních stranách stropní otvory, skrz které lze materiál/zboží snadno dodat do podkroví vysokozdvižným vozíkem. Součástí projede je i přes cestu sousedící budova, která slouží ke skladovým účelům a je celkově v původním stavu se zastavěnou plochou 95 m².

Klíčové vlastnosti nemovitosti:
- Robustní zděná konstrukce v dobrém technickém stavu
- Přímý přístup z obecní komunikace, pohodlné parkování i pro větší vozy
- Zavedena elektřina (včetně 400 V), voda, kanalizace, plyn
- Možnost rozšíření nebo rekonstrukce dle potřeb nového vlastníka
- Vlastní pozemek – vhodný i pro skladování, garáže nebo další výstavbu
- Již zavedená nabíječka pro elektromobily

Potenciál využití:
● Výrobní prostory
● Sklad/dílny/logistika
● E-shop s výdejnou
● Investiční objekt pro pronájem podnikatelům
● Kombinace komerce a kanceláří

Lokalita s potenciálem:
Obec Věžky leží v dojezdové vzdálenosti od Kroměříže a Zlína, s napojením na důležité dopravní tahy. Budova se nachází v klidném prostředí, ale s výbornou dostupností – ideální kombinace pro podnikání bez zbytečných kompromisů.

📞 V případě zájmu mě neváhejte kontaktovat pro více informací či prohlídku nemovitosti.
Tato nemovitost čeká na nové využití – bude to právě váš projekt?

Parametry nemovitosti

Cena
18 500 000 Kč /za nemovitost Spočítat hypotéku
Aktualizováno
24. 9. 2025
Adresa
Věžky
ID
160-NP02794
Stavba
Cihlová
Stav objektu
Dobrý
Typ objektu
Přízemní
Lokalita objektu
Okraj obce
Užitná plocha
2322 m2
Zastavěná plocha
1342 m2
Třída energetické náročnosti
G - Mimořádně nehospodárná
Elektřina
230V, 400V
Plyn
Plynovod
Odpad
Veřejná kanalizace
Komunikace
Asfaltová
Telekomunikace
Telefon, Internet
Doprava
Dálnice, Silnice, Autobus
Voda
Vodovod
Výtah
Převod do OV
Parkování

Kontaktovat makléře

Realitní kancelář

Logo RE/MAX MONARCHA

RE/MAX MONARCHA

Masarykova třída 105/29, Olomouc

Chystáte se prodat nemovitost?
Pomůžeme Vám!

Máte zájem o tuto nemovistost?

Tímto, v souladu s nařízením Evropského parlamentu a Rady (EU) 2016/679, v platném znění, prohlašuji, že mi je alespoň 16 let a uděluji tak svůj souhlas se zpracováním zadaných údajů (jméno, telefon, e-mail, ip adresa) společnosti B3 Technology, s.r.o., IČ: 07330600, se sídlem Novostavby 126/23, 435 11 Lom (správce dat), za účelem předání dotazu z tohoto formuláře Vámi vybranému inzerentovi a zpětného kontaktování mé osoby. Osobní údaje bude správce zpracovávat manuálně i automaticky přímo prostřednictvím svých zaměstnanců. Informace předané tímto formulářem budou uloženy v databázi správce maximálně po dobu 10 let. Odvolání souhlasu s uložením a zpracováním poskytnutých dat lze e-mailem na info@realitypro.eu. V případě podezření na neoprávněné použití Vámi poskytnutých údajů máte právo předat podnět k šetření Úřadu pro ochranu osobních údajů. Více informací
Chystáte se prodat nemovitost?
Pomůžeme Vám!

Inzerát si prohlédlo 6 lidí

Prodejce

Karel Pazdera

Karel Pazdera

Hlídací pes

Chcete dostávat emailem podobné nabídky prodeje skladů v Věžkách (okr. Kroměříž)?

Top nabídky

Podobné nemovitosti