Prodej bytu 1+kk, Jablonec nad Nisou, Krkonošská, 39 m2

Krkonošská, Jablonec nad Nisou, Kokonín

4 074 000 Kč /za nemovitost HYPOTÉKA od 18 208 Kč /za měsíc
Prověřené firmy v Jablonci nad Nisou

Rekonstrukce

Úklidové služby

Informace k bytu

Byt připravený k nastěhování – kolaudace dokončena!

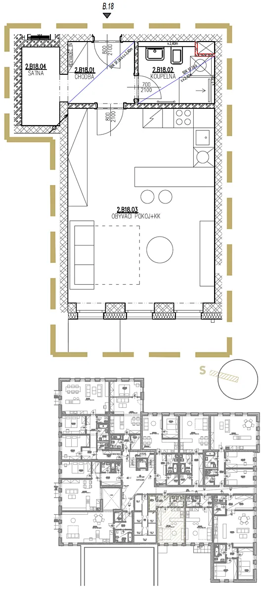
Nabízíme k prodeji prostorný byt B18 o dispozici 1+kk a celkové výměře 40,5 m² dle NOZ (čistá užitná plocha 38,7 m²). Byt se nachází 2. podlaží a je orientován převážně na západ. Jedná se o prostorné 1kk se samostatnou šatnou a samozřejmě i vč sklepní kóje o velikosti 2,7 m². Cena zahrnuje i parkovací stání – vše je uvedeno včetně DPH.

Byt je součástí rezidenčního projektu Bytový dům Sklárna, který vzniká v klidné části Jablonce nad Nisou – Kokoníně, v areálu bývalé sklárny obklopeném zelení. Projekt nabízí celkem 39 bytových jednotek – v novostavbě i zrekonstruované části bývalé huti. Uzavřený areál bude sloužit výhradně rezidentům a jejich návštěvám, součástí je i dětské hřiště a společné zelené plochy.

Všechny byty v projektu mají vysoký standard vybavení: kvalitní vinylové podlahy s akustickou podložkou, teplovodní podlahové vytápění, francouzská okna s izolačním trojsklem, moderní sanita značky Grohe, velkoformátové obklady v koupelnách atd.

Lokalita spojuje výhody klidného bydlení v přírodě s plnou občanskou vybaveností města Jablonce nad Nisou. V blízkosti se nachází Černostudniční hřeben, Bártlův vrch i Jizerské hory – ideální pro bydlení, sport a relaxaci po celý rok.

Více informací a kompletní nabídku bytů najdete na webových stránkách projektu – odkaz naleznete níže v sekci Kontakt. Byt prodává přímo developer – neplatíte žádnou provizi!

Parametry bytu

Cena
4 074 000 Kč /za nemovitost Spočítat hypotéku
Aktualizováno
20. 9. 2025
Adresa
Krkonošská, Jablonec nad Nisou, Kokonín
ID
353/19 (B18)
Stavba
Cihlová
Stav objektu
Novostavba
Patro
2.
Vlastnictví
Osobní
Užitná plocha
39 m2
Třída energetické náročnosti
B - Velmi úsporná
Sklep
Parkování

Kontaktovat makléře

Realitní kancelář

FLATS JBC s.r.o.

Palackého 3145/41, Jablonec nad Nisou

Chystáte se prodat nemovitost?
Pomůžeme Vám!

Máte zájem o tento byt?

Tímto, v souladu s nařízením Evropského parlamentu a Rady (EU) 2016/679, v platném znění, prohlašuji, že mi je alespoň 16 let a uděluji tak svůj souhlas se zpracováním zadaných údajů (jméno, telefon, e-mail, ip adresa) společnosti B3 Technology, s.r.o., IČ: 07330600, se sídlem Novostavby 126/23, 435 11 Lom (správce dat), za účelem předání dotazu z tohoto formuláře Vámi vybranému inzerentovi a zpětného kontaktování mé osoby. Osobní údaje bude správce zpracovávat manuálně i automaticky přímo prostřednictvím svých zaměstnanců. Informace předané tímto formulářem budou uloženy v databázi správce maximálně po dobu 10 let. Odvolání souhlasu s uložením a zpracováním poskytnutých dat lze e-mailem na info@realitypro.eu. V případě podezření na neoprávněné použití Vámi poskytnutých údajů máte právo předat podnět k šetření Úřadu pro ochranu osobních údajů. Více informací
Chystáte se prodat nemovitost?
Pomůžeme Vám!

Inzerát si prohlédlo 17 lidí

Prodejce

Filip Štěpán

Filip Štěpán

Hlídací pes

Chcete dostávat emailem podobné nabídky prodeje bytů 1+kk v Jablonci nad Nisou?

Podobné nemovitosti