Prodej komerčního pozemku, Praha, Pod novým lesem, 447 m2

Pod novým lesem, Praha 6

Cena na vyžádání /za nemovitost Získejte výhodnou HYPOTÉKU
Prověřené firmy v Praze 6

Stěhovací služby

Výkup a prodej starého nábytku

Pojištění a finance

Informace k pozemku

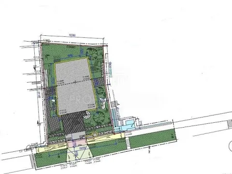
Praha 6 - Veleslavín - prodej stavebního pozemku o ploše 447 m2, který je určen pro rezidenční výstavbu. Zpracována studie a dokumentace na rodinný dům s vnitřní podlahovou plochou 276 m2. Požádáno o vydání stavebního povolení. Momentálně jediný samostatně prodávaný pozemek v této lokalitě. Podrobnosti na dotaz.

Parametry pozemku

Cena
Cena na vyžádání Spočítat hypotéku
Aktualizováno
4. 5. 2026
Adresa
Pod novým lesem, Praha 6
ID
320610
Plocha pozemku
447 m2

Kontaktovat makléře

Máte zájem o tento pozemek?

Tímto, v souladu s nařízením Evropského parlamentu a Rady (EU) 2016/679, v platném znění, prohlašuji, že mi je alespoň 16 let a uděluji tak svůj souhlas se zpracováním zadaných údajů (jméno, telefon, e-mail, ip adresa) společnosti B3 Technology, s.r.o., IČ: 07330600, se sídlem Novostavby 126/23, 435 11 Lom (správce dat), za účelem předání dotazu z tohoto formuláře Vámi vybranému inzerentovi a zpětného kontaktování mé osoby. Osobní údaje bude správce zpracovávat manuálně i automaticky přímo prostřednictvím svých zaměstnanců. Informace předané tímto formulářem budou uloženy v databázi správce maximálně po dobu 10 let. Odvolání souhlasu s uložením a zpracováním poskytnutých dat lze e-mailem na info@realitypro.eu. V případě podezření na neoprávněné použití Vámi poskytnutých údajů máte právo předat podnět k šetření Úřadu pro ochranu osobních údajů. Více informací
Chystáte se prodat nemovitost?
Pomůžeme Vám!
Theleadway banner

Inzerát si prohlédlo 17 lidí

Prodejce

Ing. Petr Mrázek

Ing. Petr Mrázek

Hlídací pes

Chcete dostávat emailem podobné nabídky prodeje komerčních pozemků v Praze 6?

Podobné nemovitosti