Prodej rodinného domu, Rynholec, nám. 1. máje, 561 m2

nám. 1. máje, Rynholec

Cena na vyžádání /za nemovitost Získejte výhodnou HYPOTÉKU

(volejte makléři, včetně provize)

Prověřené firmy v Rynholci

Informace k domu

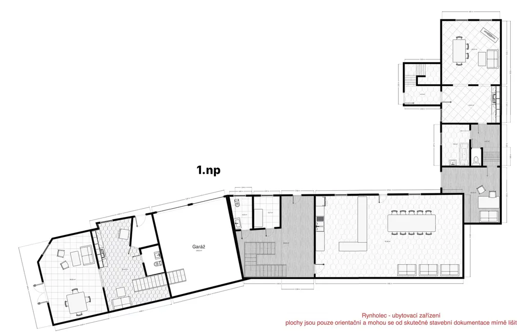
Nabízíme Vám jedinečnou nemovitost v obci Rynholec, okres Rakovník. Jedná se o hospodářskou usedlost, která byla upravena a nyní lze využít jako tří rodinných domů s velkou zahradou.

Obec Rynholec se nachází ve Středočeském kraji, v okrese Rakovník. Jedinečná poloha obce, při sjezdu na 25 km z dálnice D6 (Praha - Karlovy Vary) a hranici s CHKO a biosférickou rezervací UNESCO Křivoklátsko, vytváří skvělou kombinaci možnosti pracovat v Praze a zároveň bydlet na venkově s přístupem k úžasné přírodě.

Usedlost se skládá ze tří budov, které na sebe stavebně navazují. Jednotlivé budovy, jsou samostatně provozuschopné, a lze je užívat odděleně.

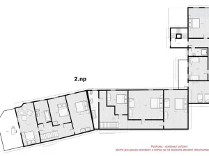
První dům má dvě podlaží a malý sklep. V přízemí se nachází plně vybavená kuchyně, jídelna, obývací pokoj s plochou TV, koupelna s vanou, automatickou pračkou a WC. V prvním patře jsou tři pokoje, balkon s výhledem do zahrady, koupelna s rohovou vanou a WC.

V Druhém domě se nachází plně vybavená kuchyně s barem, která je volně spojena s prostornou jídelnou (76 m2), gaučem a francouzskými dveřmi do zahrady, WC a koupelna se sprchovým koutem a infrasaunou. V prvním patře jsou tři pokoje, koupelna s rohovou vanou a WC.

Ve třetím, nejmenším domě je v přízemí plně vybavená kuchyně, WC a obývací pokoj s francouzskými dveřmi do zahrady. V prvním patře jsou tři pokoje, velká terasa s výhledem do zahrady, koupelna a WC.

Mezi prvním a druhým domem se nachází garáž s dvěmi vjezdy o celkové výměře cca 40 m2.

Celý jedinečný komplex je oplocený s dobovým vjezdem přes dvoukřídlé dřevěné vrata. Na pozemcích o celkové výměře 3.168 m2 se dále nachází malý rybník a sad. Tato kombinace vytváří dojem malého zámeckého parku.

I když nemovitosti nyní slouží k pronájmu, tak je možné je využít i pro bydlení s jedinečnou atmosférou a soukromím.

Parametry domu

Cena
Cena na vyžádání Spočítat hypotéku
Poznámka k ceně
volejte makléři, včetně provize
Aktualizováno
30. 4. 2026
Adresa
nám. 1. máje, Rynholec
ID
IETP838706
Stavba
Cihlová
Stav objektu
Dobrý
Typ objektu
Patrový
Druh objektu
Samostatný
Užitná plocha
561 m2
Podlahová plocha
585 m2
Plocha pozemku
3168 m2
Třída energetické náročnosti
G - Mimořádně nehospodárná
Elektřina
230V
Plyn
Plynovod
Voda
Vodovod

Kontaktovat makléře

Máte zájem o tento dům?

Tímto, v souladu s nařízením Evropského parlamentu a Rady (EU) 2016/679, v platném znění, prohlašuji, že mi je alespoň 16 let a uděluji tak svůj souhlas se zpracováním zadaných údajů (jméno, telefon, e-mail, ip adresa) společnosti B3 Technology, s.r.o., IČ: 07330600, se sídlem Novostavby 126/23, 435 11 Lom (správce dat), za účelem předání dotazu z tohoto formuláře Vámi vybranému inzerentovi a zpětného kontaktování mé osoby. Osobní údaje bude správce zpracovávat manuálně i automaticky přímo prostřednictvím svých zaměstnanců. Informace předané tímto formulářem budou uloženy v databázi správce maximálně po dobu 10 let. Odvolání souhlasu s uložením a zpracováním poskytnutých dat lze e-mailem na info@realitypro.eu. V případě podezření na neoprávněné použití Vámi poskytnutých údajů máte právo předat podnět k šetření Úřadu pro ochranu osobních údajů. Více informací
Chystáte se prodat nemovitost?
Pomůžeme Vám!

Inzerát si prohlédlo 0 lidí

Prodejce

Bc. Tomáš Indrák

Bc. Tomáš Indrák

Hlídací pes

Chcete dostávat emailem podobné nabídky prodeje rodinných domů v Rynholci?

Podobné nemovitosti