Pronájem bytu 1+1, Brno - Řečkovice, Renčova, 45 m2 (ID: 2876440)

Renčova, Řečkovice - Brno-Řečkovice a Mokrá Hora

15 000 Kč /za měsíc Získejte výhodnou HYPOTÉKU

(vratná jistota, náklady na bydlení 3 400 Kč, poplatek za podnájem)

Prověřené firmy v Brně

Informace k bytu

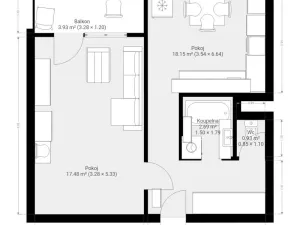
K dlouhodobému podnájmu nabízíme krásný a prostorný byt o dispozici 1+1 v klidné lokalitě Brno-Řečkovice. Byt o celkové výměře 45 m2 se nachází ve čtvrtém patře panelového domu. K bytu patří balkón a sklep.

Lokalita nabízí veškerou občanskou vybavenost – obchody, restaurace, sportovní areály a další. Zastávka MHD je vzdálena do 5 minut chůze, což vám zaručuje pohodlný přístup k veřejné dopravě.

Byt je plně vybavený dle fotografií. Kuchyň je zařízena kuchyňskou linkou včetně spotřebičů, jako jsou trouba, lednice, varná deska a digestoř. K dispozici je také stůl a jídelní židle. Hlavní místnost je vybavena sedačkou a skříňkami. Koupelna disponuje vanou, pračkou, umyvadlem se skříňkou a zrcadlem. Toaleta je oddělena.

Byt k nastěhování od 1. 5. 2026.

Byt se nachází v příjemné a tiché oblasti, ideální pro ty, kteří hledají klidné bydlení s výbornou dostupností do městského života.

Parametry bytu

Cena
15 000 Kč /za měsíc
Poznámka k ceně
vratná jistota, náklady na bydlení 3 400 Kč, poplatek za podnájem
Aktualizováno
27. 4. 2026
Adresa
Renčova, Řečkovice - Brno-Řečkovice a Mokrá Hora
ID
N7640
Stavba
Cihlová
Stav objektu
Velmi dobrý
Patro
4. z 8
Vybaveno
Částečně
Typ objektu
Patrový
Lokalita objektu
Klidná část obce
Vlastnictví
Osobní
Užitná plocha
45 m2
Podlahová plocha
45 m2
Elektřina
230V
Topení
Ústřední dálkové
Balkon
Sklep
Terasa
Výtah
Bezbarierový přístup

Kontaktovat makléře

Máte zájem o tento byt?

Tímto, v souladu s nařízením Evropského parlamentu a Rady (EU) 2016/679, v platném znění, prohlašuji, že mi je alespoň 16 let a uděluji tak svůj souhlas se zpracováním zadaných údajů (jméno, telefon, e-mail, ip adresa) společnosti B3 Technology, s.r.o., IČ: 07330600, se sídlem Novostavby 126/23, 435 11 Lom (správce dat), za účelem předání dotazu z tohoto formuláře Vámi vybranému inzerentovi a zpětného kontaktování mé osoby. Osobní údaje bude správce zpracovávat manuálně i automaticky přímo prostřednictvím svých zaměstnanců. Informace předané tímto formulářem budou uloženy v databázi správce maximálně po dobu 10 let. Odvolání souhlasu s uložením a zpracováním poskytnutých dat lze e-mailem na info@realitypro.eu. V případě podezření na neoprávněné použití Vámi poskytnutých údajů máte právo předat podnět k šetření Úřadu pro ochranu osobních údajů. Více informací
Chystáte se prodat nemovitost?
Pomůžeme Vám!

Inzerát si prohlédlo 1 lidí

Prodejce

Miloslava Kačerová

Miloslava Kačerová

Hlídací pes

Chcete dostávat emailem podobné nabídky pronájmu bytů 1+1 v Brně?

Podobné nemovitosti