Prodej bytu 3+1, Ostrava, Vdovská, 72 m2

Vdovská, Slezská Ostrava

6 290 000 Kč /za nemovitost HYPOTÉKA od 28 112 Kč /za měsíc
Prověřené firmy v Ostravě

Informace k bytu

BO!reality Vám exkluzivně nabízí k prodeji krásný bezbariérový byt 3+1 v osobním vlastnictví o výměře 72 m² v žádané lokalitě Ostrava – Muglinov na ul. Vdovská.

Byt se nachází ve 4. podlaží ze 7 revitalizovaného bytového domu s bezbariérovým přístupem a výtahem, což zajišťuje pohodlné bydlení pro všechny věkové kategorie. Dům je navíc vybaven kamerovým systémem se záznamem, který zvyšuje bezpečnost a komfort obyvatel.

Nemovitost prošla kompletní rekonstrukcí, díky které nabízí moderní a komfortní bydlení bez nutnosti dalších investic. V bytě byla provedena nová elektroinstalace, rozvody vody v plastu, nové podlahy, interiérové úpravy a instalována nová moderní kuchyňská linka. Velkým benefitem jsou také vestavěné skříně, které zajišťují dostatek úložného prostoru.

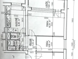
Dispozice bytu je velmi praktická – nabízí prostorný obývací pokoj, dva samostatné neprůchozí pokoje, samostatnou kuchyni, koupelnu a oddělené WC.
V koupelně naleznete nový obklad a moderní sprchový kout, toaleta je samostatná.

Velkou předností bytu je prostorná zasklená lodžie s příjemným výhledem do zeleně, která nabízí ideální místo pro ranní kávu či večerní odpočinek.

Lokalita Ostrava – Muglinov nabízí výbornou občanskou vybavenost a dostupnost – v blízkosti se nachází škola, školka, obchody, MHD i dostatek zeleně pro volnočasové aktivity.

Pokud hledáte moderní bydlení bez dalších investic, neváhejte mě kontaktovat pro více informací nebo si domluvit nezávaznou prohlídku. Rád Vás bytem osobně provedu.

Parametry bytu

Cena
6 290 000 Kč /za nemovitost Spočítat hypotéku
Aktualizováno
26. 4. 2026
Adresa
Vdovská, Slezská Ostrava
ID
8459
Stavba
Panelová
Stav objektu
Velmi dobrý
Patro
4. z 6
Vybaveno
Částečně
Lokalita objektu
Klidná část obce
Vlastnictví
Osobní
Užitná plocha
72 m2
Zastavěná plocha
382 m2
Podlahová plocha
76 m2
Třída energetické náročnosti
C - Úsporná
Elektřina
230V
Odpad
Veřejná kanalizace
Komunikace
Asfaltová
Telekomunikace
Internet
Doprava
Vlak, Dálnice, Silnice, MHD, Autobus
Voda
Vodovod
Sklep
Lodžie
Výtah
Bezbarierový přístup
Parkování
Nízkoenergetický

Kontaktovat makléře

Máte zájem o tento byt?

Tímto, v souladu s nařízením Evropského parlamentu a Rady (EU) 2016/679, v platném znění, prohlašuji, že mi je alespoň 16 let a uděluji tak svůj souhlas se zpracováním zadaných údajů (jméno, telefon, e-mail, ip adresa) společnosti B3 Technology, s.r.o., IČ: 07330600, se sídlem Novostavby 126/23, 435 11 Lom (správce dat), za účelem předání dotazu z tohoto formuláře Vámi vybranému inzerentovi a zpětného kontaktování mé osoby. Osobní údaje bude správce zpracovávat manuálně i automaticky přímo prostřednictvím svých zaměstnanců. Informace předané tímto formulářem budou uloženy v databázi správce maximálně po dobu 10 let. Odvolání souhlasu s uložením a zpracováním poskytnutých dat lze e-mailem na info@realitypro.eu. V případě podezření na neoprávněné použití Vámi poskytnutých údajů máte právo předat podnět k šetření Úřadu pro ochranu osobních údajů. Více informací
Chystáte se prodat nemovitost?
Pomůžeme Vám!

Inzerát si prohlédlo 0 lidí

Prodejce

Bc. Mathias Mikulík

Bc. Mathias Mikulík

Hlídací pes

Chcete dostávat emailem podobné nabídky prodeje bytů 3+1 v Ostravě?

Podobné nemovitosti