Prodej rodinného domu, Velké Březno, Pod Vartou, 148 m2 (ID: 2869223)

Pod Vartou, Velké Březno

11 400 000 Kč /za nemovitost HYPOTÉKA od 50 951 Kč /za měsíc
Prověřené firmy v Velkém Březnu

Okna a dveře

Rekonstrukce

Informace k domu

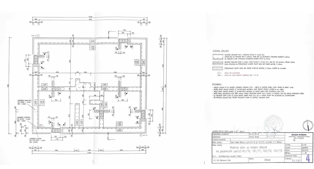
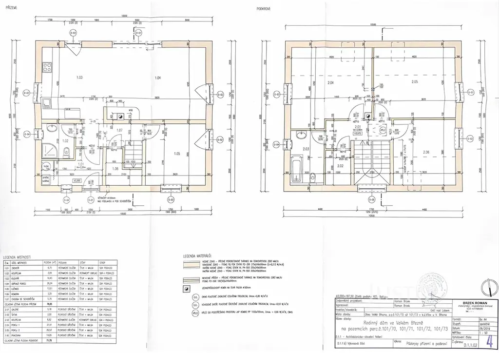
Prodej rodinného domu 5+kk, 148 m², pozemek 1 008 m², Velké Březno – Vítov.

Hledáte moderní rodinné bydlení v klidném prostředí obklopeném přírodou, a přesto s dobrou dostupností do města?

V zastoupení majitele Vám nabízíme samostatně stojící rodinný dům o dispozici 5+kk a obytné ploše 148 m², situovaný na prostorném pozemku o výměře 1 008 m² v klidné části obce Velké Březno – Vítov.

Základní informace
• typ nemovitosti: samostatně stojící patrový rodinný dům
• dispozice: 5+kk
• obytná plocha: 148 m²
• pozemek: cca 1 008 m²
• rok kolaudace: 2021
• počet podlaží: 2
• střecha: sedlová (Bramac)
• garáž

Dispozice domu je navržena s důrazem na funkčnost, dostatek prostoru a soukromí pro každého člena rodiny.

Dispozice domu
1. přízemí
• vstupní chodba s úložným prostorem
• koupelna se sprchovým koutem a WC
• ložnice / pokoj
• kuchyňský kout plynule navazující na velký obývací pokoj se vstupem na zahradu
• komora pod schodištěm
• schodiště do patra
• lepená vinylová voděodolná podlaha

2. podkroví
• chodba
• tři samostatné neprůchozí pokoje
• koupelna s vanou a toaletou
• technická místnost / pračka, sušička
• lepená vinylová voděodolná podlaha
• vstup do půdního prostoru po výsuvných schodech je vhodný k uskladnění věcí. Strop mezi obytným patrem a půdou je opatřen izolací.

Lokalita
Vítov je klidná část obce Velké Březno, vyhledávaná pro své tiché prostředí, minimální provoz a blízkost přírody. Lokalita je ideální pro rodinné bydlení i pro ty, kdo hledají únik od městského ruchu, aniž by se museli vzdát dobré dostupnosti občanské vybavenosti v okolních obcích.

Shrnutí
• dům se nachází ve slepé ulici, která zajišťuje vysoký komfort klidu a bezpečí
• moderní novostavba
• ideální dispozice pro rodinu
• klidná lokalita s dostatkem soukromí
• parkování: prostorná garáž (230 V a 380 V) s vybudovaným patrem, aktuálně ve stavu před dokončením, dosud nezkolaudovaná + několik míst před domem
• pozemek je z větší části oplocen
• o příjemné rodinné teplo se stará podlahové vytápění (každá místnost má termostat), které lze doplnit krbovými kamny na dřevo. Ohřev vody je zajištěn bojlerem na 250 l.
• na pozemku se nachází v zemi uložená nádrž 10 m³ na dešťovou vodu
• energetická třída B – nízké provozní náklady

Veškerá projektová a stavební dokumentace Vám bude k dispozici k nahlédnutí.

Pokud Vás tato nabídka zaujala, neváhejte mě kontaktovat pro více informací nebo sjednání osobní prohlídky. Rád Vás nemovitostí osobně provedu.

Parametry domu

Cena
11 400 000 Kč /za nemovitost Spočítat hypotéku
Aktualizováno
18. 4. 2026
Adresa
Pod Vartou, Velké Březno
ID
J12504
Stavba
Smíšená
Stav objektu
Velmi dobrý
Druh objektu
Samostatný
Lokalita objektu
Klidná část obce
Užitná plocha
148 m2
Zastavěná plocha
95 m2
Podlahová plocha
148 m2
Plocha pozemku
1008 m2
Třída energetické náročnosti
B - Velmi úsporná
Ukazatel energetické náročnosti
15.4 kWh/m2 za rok
Elektřina
230V, 400V
Odpad
Veřejná kanalizace
Komunikace
Asfaltová
Doprava
Vlak, Autobus
Voda
Vodovod
Topné těleso
Podlahové vytápění
Zdroj teplé vody
Bojler - elektro
Garáž
Parkování
Bazén

Kontaktovat makléře

Máte zájem o tento dům?

Tímto, v souladu s nařízením Evropského parlamentu a Rady (EU) 2016/679, v platném znění, prohlašuji, že mi je alespoň 16 let a uděluji tak svůj souhlas se zpracováním zadaných údajů (jméno, telefon, e-mail, ip adresa) společnosti B3 Technology, s.r.o., IČ: 07330600, se sídlem Novostavby 126/23, 435 11 Lom (správce dat), za účelem předání dotazu z tohoto formuláře Vámi vybranému inzerentovi a zpětného kontaktování mé osoby. Osobní údaje bude správce zpracovávat manuálně i automaticky přímo prostřednictvím svých zaměstnanců. Informace předané tímto formulářem budou uloženy v databázi správce maximálně po dobu 10 let. Odvolání souhlasu s uložením a zpracováním poskytnutých dat lze e-mailem na info@realitypro.eu. V případě podezření na neoprávněné použití Vámi poskytnutých údajů máte právo předat podnět k šetření Úřadu pro ochranu osobních údajů. Více informací
Chystáte se prodat nemovitost?
Pomůžeme Vám!

Inzerát si prohlédlo 0 lidí

Prodejce

Pavel Hoferica

Pavel Hoferica

Hlídací pes

Chcete dostávat emailem podobné nabídky prodeje rodinných domů v Velkém Březnu?

Podobné nemovitosti