Prodej bytu 3+1, Jihlava, Kosovská, 93 m2

Kosovská, Jihlava

Cena na vyžádání /za nemovitost Získejte výhodnou HYPOTÉKU

(volejte makléři)

Prověřené firmy v Jihlavě

Informace k bytu

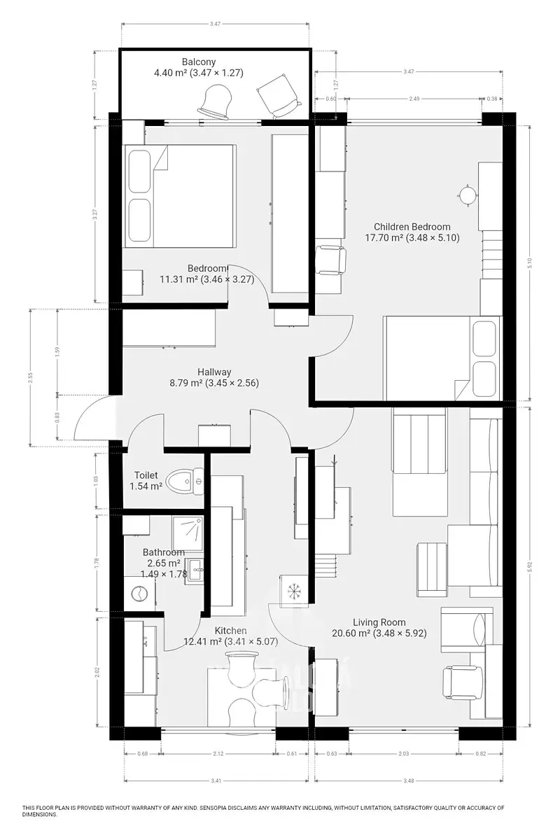
Nabízím k prodeji byt o dispozici 3+1, který se nachází v klidné a vyhledávané lokalitě na ulici Kosovská v Jihlavě.

Byt je situován v 1. nadzemním podlaží bytového domu bez výtahu. Dispozice nabízí praktické uspořádání a dostatek prostoru jak pro rodinné bydlení, tak i jako investici.
Nemovitost je v dobrém, udržovaném stavu. Bytové jádro prošlo rekonstrukcí, samozřejmostí jsou plastová okna. V rámci domu proběhla revitalizace – zateplení, nová střecha, výměna stoupaček a odpadů. Velkým benefitem jsou zvětšené balkony, které poskytují příjemný prostor pro relaxaci. Celkový plocha bytu se sklepem činní 93,7 m2, byt je orientovaný na jihozápad.

K bytu náleží dva zděné sklepy. Jeden z nich o velikosti 15 m² je aktuálně využíván jako dílna, což ocení každý, kdo potřebuje zázemí pro práci nebo koníčky.

Parkování je možné přímo před domem a je bez modrých zón jelikož se jedná o soukromý pozemek, což je v dnešní době velká výhoda.
Byt je připraven k okamžitému užívání, případně k úpravám dle vlastních představ.
Měsíční náklady do fondu oprav činí: 2.100 Kč.

Doporučuji osobní prohlídku – byt má příjemnou atmosféru a skvělý potenciál.

Parametry bytu

Cena
Cena na vyžádání Spočítat hypotéku
Poznámka k ceně
volejte makléři
Aktualizováno
19. 4. 2026
Adresa
Kosovská, Jihlava
ID
00866
Stavba
Panelová
Stav objektu
Velmi dobrý
Patro
1.
Vlastnictví
Osobní
Užitná plocha
93 m2
Třída energetické náročnosti
D - Méně úsporná
Ukazatel energetické náročnosti
211 kWh/m2 za rok
Elektřina
230V
Plyn
Plynovod
Odpad
Veřejná kanalizace
Komunikace
Asfaltová
Telekomunikace
Internet
Doprava
Vlak, Dálnice, Silnice, MHD, Autobus
Topné těleso
Radiátory
Zdroj topení
Ústřední dálkové
Zdroj teplé vody
Centrální dálkový ohřev
Balkon
Sklep
Parkování

Kontaktovat makléře

Máte zájem o tento byt?

Tímto, v souladu s nařízením Evropského parlamentu a Rady (EU) 2016/679, v platném znění, prohlašuji, že mi je alespoň 16 let a uděluji tak svůj souhlas se zpracováním zadaných údajů (jméno, telefon, e-mail, ip adresa) společnosti B3 Technology, s.r.o., IČ: 07330600, se sídlem Novostavby 126/23, 435 11 Lom (správce dat), za účelem předání dotazu z tohoto formuláře Vámi vybranému inzerentovi a zpětného kontaktování mé osoby. Osobní údaje bude správce zpracovávat manuálně i automaticky přímo prostřednictvím svých zaměstnanců. Informace předané tímto formulářem budou uloženy v databázi správce maximálně po dobu 10 let. Odvolání souhlasu s uložením a zpracováním poskytnutých dat lze e-mailem na info@realitypro.eu. V případě podezření na neoprávněné použití Vámi poskytnutých údajů máte právo předat podnět k šetření Úřadu pro ochranu osobních údajů. Více informací
Chystáte se prodat nemovitost?
Pomůžeme Vám!

Inzerát si prohlédlo 1 lidí

Prodejce

Ing. Pavla Anna Doležalová, MSc.

Ing. Pavla Anna Doležalová, MSc.

Hlídací pes

Chcete dostávat emailem podobné nabídky prodeje bytů 3+1 v Jihlavě?

Podobné nemovitosti