Prodej atypického bytu, Brno, Bayerova, 122 m2 (ID: 2864810)

Bayerova, Brno, Veveří

9 350 000 Kč /za nemovitost HYPOTÉKA od 41 789 Kč /za měsíc

(včetně provize)

Prověřené firmy v Brně

Informace k bytu

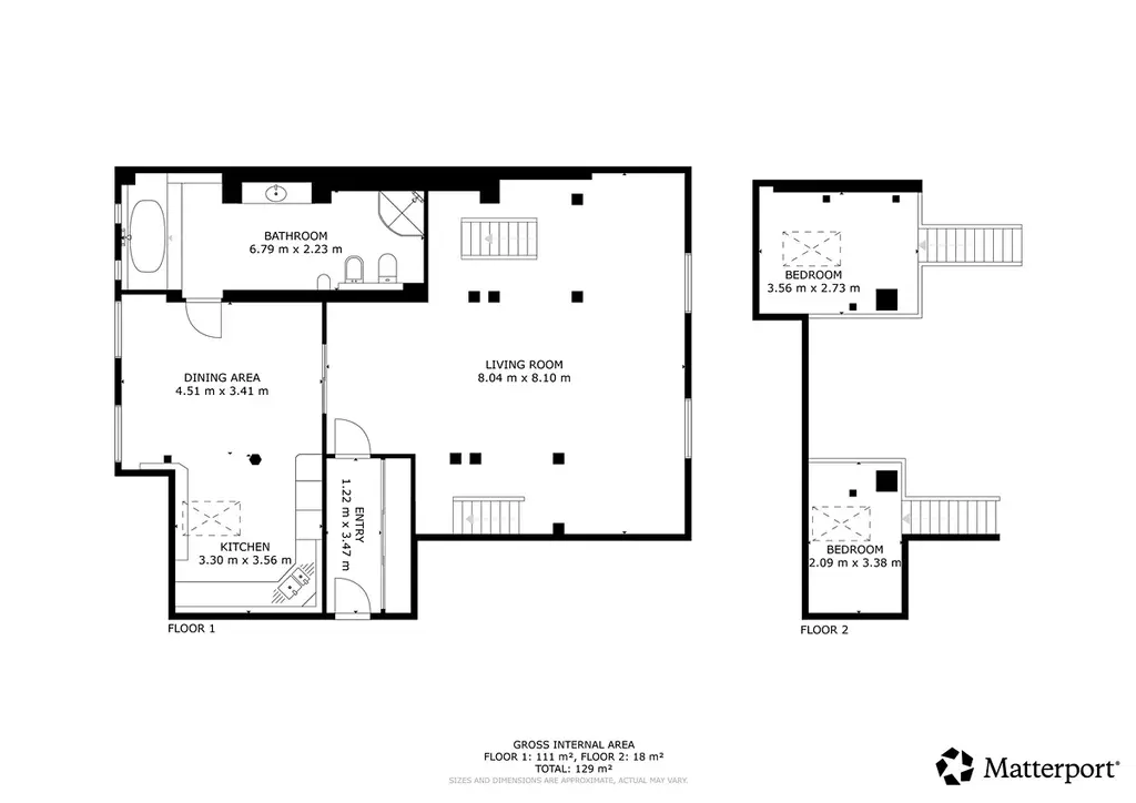
Velkorysý podkrovní byt 2+1 (122 m²) v srdci vyhledávané čtvrti Veveří
Nabízíme k prodeji unikátní, prostornou bytovou jednotku o dispozici 2+1, situovanou v klidné, a přesto centrální části Brna na ulici Bayerova. Tento byt je ideální volbou pro ty, kteří hledají kombinaci bydlení v historické cihlové zástavbě s moderním komfortem podkrovního prostoru a nadstandardní metráží.

Dispozice a interiér
Byt o celkové užitné ploše 122,23 m² se nachází v 7. nadzemním podlaží (půdní vestavba z roku 2004) a nabízí neobvykle vzdušné prostory:

Dominantní obývací pokoj (53,90 m²): Skutečné srdce bytu, které díky své rozloze nabízí nepřeberné možnosti uspořádání.

Prostorná kuchyně s jídelnou (26,95 m²): Místnost s dostatkem prostoru pro velký jídelní stůl i moderní kuchyňskou linku.

Nadstandardní koupelna (18,41 m²): Velkoryse řešená koupelna vybavená vanou, sprchovým koutem, umyvadlem, toaletou i bidetem.

Dvě spací galerie (12,36 m²): Praktické nástavby přístupné po dřevěném schodišti, které efektivně využívají vysoké stropy a mohou sloužit jako ložnice nebo úložné prostory.

Vybavení: Byt je vybaven klimatizací, vestavěnými skříněmi a bezpečnostními vstupními dveřmi. Ohřev vody a vytápění zajišťuje vlastní plynový kotel přímo v bytě.

O domě
Cihlový bytový dům prošel v posledních letech rozsáhlou revitalizací, která zaručuje nízké náklady na údržbu a vysoký komfort bydlení:

Nová zateplená fasáda (2022).

Moderní výtah a nové rozvody elektroinstalace (2012).

Výměna stoupaček, rozvodů vody a odpadů (2009).

Okna jsou kombinací dřevěných EURO oken a střešních oken, která zajišťují dostatek denního světla. K bytu náleží sklepní kóje v 1. PP.

Lokalita – bydlení na dobré adrese
Ulice Bayerova v k.ú. Veveří patří k nejžádanějším brněnským adresám.

Relaxace: Jen pár minut chůze od vyhlášeného parku Lužánky.

Dostupnost: Výborné spojení MHD a docházková vzdálenost do samotného centra města (náměstí Svobody, Moravské náměstí).

Občanská vybavenost: V bezprostředním okolí najdete kavárny, drobné provozovny, restaurace i školy.

Tato nemovitost kombinuje kouzlo širšího centra Brna s klidem a soukromím nejvyššího patra. Je vhodná jak pro náročné vlastní bydlení, tak jako prestižní investiční příležitost.

Klíčové parametry v kostce:
Užitná plocha: 122,23 m²

Dispozice: 2+1 se dvěma spacími galeriemi

Konstrukce: Cihla (půdní vestavba r. 2004)

Patro: 7. NP s výtahem

Vytápění: Vlastní plynový kotel

Bonusy: Klimatizace, v blízkosti parku Lužánky

Máte zájem o prohlídku tohoto jedinečného bytu? Neváhejte nás kontaktovat.

Parametry bytu

Cena
9 350 000 Kč /za nemovitost Spočítat hypotéku
Poznámka k ceně
včetně provize
Aktualizováno
14. 4. 2026
Adresa
Bayerova, Brno, Veveří
ID
26DR000207-1
Stavba
Cihlová
Stav objektu
Velmi dobrý
Patro
7.
Vlastnictví
Osobní
Užitná plocha
122 m2
Třída energetické náročnosti
G - Mimořádně nehospodárná
Ukazatel energetické náročnosti
1 kWh/m2 za rok
Balkon
Sklep

Kontaktovat makléře

Máte zájem o tento byt?

Tímto, v souladu s nařízením Evropského parlamentu a Rady (EU) 2016/679, v platném znění, prohlašuji, že mi je alespoň 16 let a uděluji tak svůj souhlas se zpracováním zadaných údajů (jméno, telefon, e-mail, ip adresa) společnosti B3 Technology, s.r.o., IČ: 07330600, se sídlem Novostavby 126/23, 435 11 Lom (správce dat), za účelem předání dotazu z tohoto formuláře Vámi vybranému inzerentovi a zpětného kontaktování mé osoby. Osobní údaje bude správce zpracovávat manuálně i automaticky přímo prostřednictvím svých zaměstnanců. Informace předané tímto formulářem budou uloženy v databázi správce maximálně po dobu 10 let. Odvolání souhlasu s uložením a zpracováním poskytnutých dat lze e-mailem na info@realitypro.eu. V případě podezření na neoprávněné použití Vámi poskytnutých údajů máte právo předat podnět k šetření Úřadu pro ochranu osobních údajů. Více informací
Chystáte se prodat nemovitost?
Pomůžeme Vám!

Inzerát si prohlédlo 0 lidí

Prodejce

Tomáš Zvěřina

Tomáš Zvěřina

Hlídací pes

Chcete dostávat emailem podobné nabídky prodeje atypických bytů v Brně?

Podobné nemovitosti