Prodej rodinného domu, Studnice, 146 m2 (ID: 2863787)

Studnice, Řešetova Lhota

3 490 000 Kč /za nemovitost HYPOTÉKA od 15 598 Kč /za měsíc

(včetně právních služeb, úschovy a provize RK, včetně právního servisu)

Prověřené firmy v Studnicích

Informace k domu

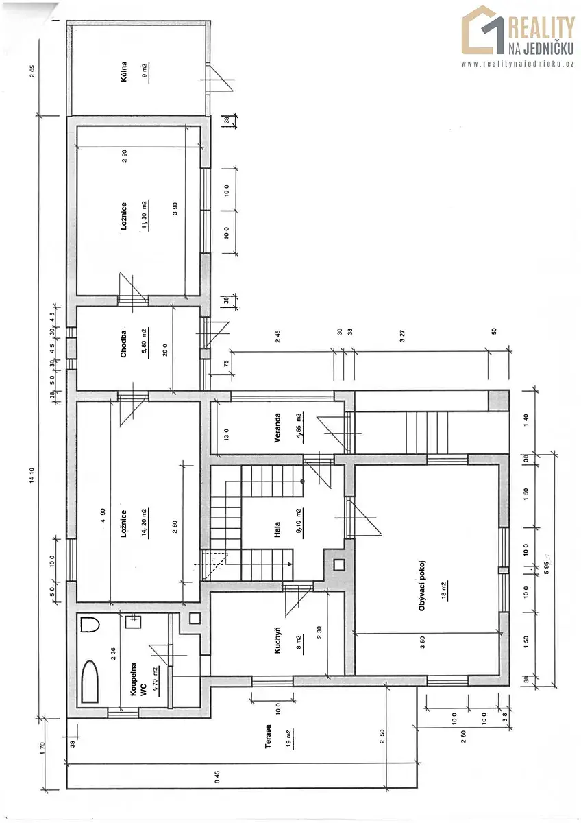
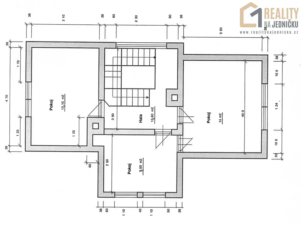
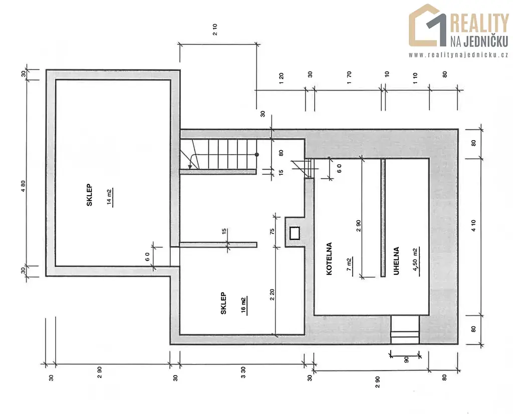
S.N.Í.Ž.E.N.Á. C.E.N.A. Ve výhradním zastoupení pro Vás máme exkluzivní nabídku dvojpodlažní podsklepené srubové stavby určené k rekonstrukci, která se nachází pouhé čtyři kilometry od Náchoda v dosahu přehrady Rozkoš, Dvora Králové se svou Safari Zoologickou zahradou a rekreačních sředisek Orlických hor, Krkonoš a Adrššpašsko-teplických skal ! V obci Řešetova Lhota se nachází na klidném místě velmi zvláštní malebný dřevěný rodinný dům s užitnou plochou 146 m² a prostornou terasou, ideální pro relaxaci a grilování v letních dnech. Dům je vhodný i pro početnější rodinu. Tento dům se nachází na pozemku o rozloze 2.187 m², který poskytuje dostatek prostoru pro zahradní party , zahrádkářské aktivity a nabízí i tři samostatně stojící kolny. Sklep domu je vystavěn ze smíšeného zdiva (kámen,cihla,beton) s železobetonovým stropem. Přízemí a patro domu tvoří srubový základ s venkovním obložením (dřevo, izolační panely z hobry a polystyrenu) a dřeveným trámovým stropem. Střecha domu je ze dřeva, pokrytá eternitovými šablonami. V přízemí domu se nachází vstupní veranda s halou, dále kuchyň, obývací pokoj, dvě ložnice, chodba a koupelna s toaletou. V patře pak dětský pokoj, pracovna a ložnice. Součástí domu je také sklep s kotelnou a uhelnou o rozloze 37 m², který nabízí dostatek úložného prostoru. Tato nemovitost je ideální pro rodinné bydlení nebo jako rekreační objekt v krásném a klidném venkovském prostředí. Nezmeškejte tuto jedinečnou nabídku! Na Vaše dotazy odpoví a prohlídky domu Vám velmi rád zprostředkuje realitní makléř Mgr. Radek Procházka

Parametry domu

Cena
3 490 000 Kč /za nemovitost Spočítat hypotéku
Poznámka k ceně
včetně právních služeb, úschovy a provize RK, včetně právního servisu
Aktualizováno
13. 4. 2026
Adresa
Studnice, Řešetova Lhota
ID
00142
Stavba
Dřevěná
Stav objektu
Dobrý
Vybaveno
Částečně
Druh objektu
Samostatný
Lokalita objektu
Polosamota
Užitná plocha
146 m2
Zastavěná plocha
829 m2
Plocha pozemku
2187 m2
Plocha zahrady
1358 m2
Třída energetické náročnosti
G - Mimořádně nehospodárná
Elektřina
230V, 400V
Odpad
Septik
Doprava
Silnice, Autobus
Voda
Vodovod, Studna
Topné těleso
Kamna
Zdroj topení
Kamna
Zdroj teplé vody
Bojler - elektro
Sklep
Výtah

Kontaktovat makléře

Máte zájem o tento dům?

Tímto, v souladu s nařízením Evropského parlamentu a Rady (EU) 2016/679, v platném znění, prohlašuji, že mi je alespoň 16 let a uděluji tak svůj souhlas se zpracováním zadaných údajů (jméno, telefon, e-mail, ip adresa) společnosti B3 Technology, s.r.o., IČ: 07330600, se sídlem Novostavby 126/23, 435 11 Lom (správce dat), za účelem předání dotazu z tohoto formuláře Vámi vybranému inzerentovi a zpětného kontaktování mé osoby. Osobní údaje bude správce zpracovávat manuálně i automaticky přímo prostřednictvím svých zaměstnanců. Informace předané tímto formulářem budou uloženy v databázi správce maximálně po dobu 10 let. Odvolání souhlasu s uložením a zpracováním poskytnutých dat lze e-mailem na info@realitypro.eu. V případě podezření na neoprávněné použití Vámi poskytnutých údajů máte právo předat podnět k šetření Úřadu pro ochranu osobních údajů. Více informací
Chystáte se prodat nemovitost?
Pomůžeme Vám!

Inzerát si prohlédlo 0 lidí

Prodejce

Mgr. Radek Procházka

Mgr. Radek Procházka

Hlídací pes

Chcete dostávat emailem podobné nabídky prodeje rodinných domů v Studnicích (okr. Náchod)?

Podobné nemovitosti