Prodej pozemku pro bydlení, Slavče, 1269 m2

Slavče

2 999 000 Kč /za nemovitost HYPOTÉKA od 13 404 Kč /za měsíc
Prověřené firmy v Slavči

Výkup a prodej starého nábytku

Informace k pozemku

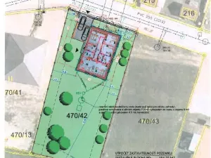
Nabízíme k prodeji pěkný rovinatý pozemek v obci Slavče nedaleko Trhových Svinů. Pozemek se nachází v lokalitě s výstavbou nových rodinných domů v klidné části na okraji obce. Vydáno platné stavební povolení, projekt a veškerá dokumentace součástí ceny. Na pozemku možnost připojení na inženýrské sítě. V obci Slavče se nachází základní občanská vybavenost. Veškerou vybavenost najdete v nedaleko vzdáleném městě Trhové Sviny (cca. 6 km). České Budějovice 25 km. Lokalita je vhodná pro rodiny hledající klidné bydlení a zároveň aktivní styl života - okolí Slavče tvoří kopcovitá zalesněná krajina s téměř nedotčenou přírodou. Oblast láká jak k pěší turistice, tak k cyklistickým vyjížďkám, možnost krásného koupání nabízí malá přehradní nádrž v Dobrkovské Lhotce.
Více info při osobní prohlídce. DOPORUČUJEME.

Parametry pozemku

Cena
2 999 000 Kč /za nemovitost Spočítat hypotéku
Aktualizováno
8. 4. 2026
Adresa
Slavče
ID
001904
Stav objektu
Velmi dobrý
Lokalita objektu
Klidná část obce
Užitná plocha
1269 m2
Plocha pozemku
1269 m2
Komunikace
Asfaltová
Doprava
Silnice, Autobus
Bezbarierový přístup

Kontaktovat makléře

Realitní kancelář

Logo Aktuální reality

Aktuální reality

Čechova 59, České Budějovice

Chystáte se prodat nemovitost?
Pomůžeme Vám!

Máte zájem o tento pozemek?

Tímto, v souladu s nařízením Evropského parlamentu a Rady (EU) 2016/679, v platném znění, prohlašuji, že mi je alespoň 16 let a uděluji tak svůj souhlas se zpracováním zadaných údajů (jméno, telefon, e-mail, ip adresa) společnosti B3 Technology, s.r.o., IČ: 07330600, se sídlem Novostavby 126/23, 435 11 Lom (správce dat), za účelem předání dotazu z tohoto formuláře Vámi vybranému inzerentovi a zpětného kontaktování mé osoby. Osobní údaje bude správce zpracovávat manuálně i automaticky přímo prostřednictvím svých zaměstnanců. Informace předané tímto formulářem budou uloženy v databázi správce maximálně po dobu 10 let. Odvolání souhlasu s uložením a zpracováním poskytnutých dat lze e-mailem na info@realitypro.eu. V případě podezření na neoprávněné použití Vámi poskytnutých údajů máte právo předat podnět k šetření Úřadu pro ochranu osobních údajů. Více informací
Chystáte se prodat nemovitost?
Pomůžeme Vám!

Inzerát si prohlédlo 0 lidí

Prodejce

Miroslav Koura

Miroslav Koura

Hlídací pes

Chcete dostávat emailem podobné nabídky prodeje pozemků pro bydlení v Slavči?

Podobné nemovitosti