Pronájem bytu 1+1, České Budějovice, Fráni Šrámka, 40 m2 (ID: 2852280)

Fráni Šrámka, České Budějovice 3

14 300 Kč /za měsíc Získejte výhodnou HYPOTÉKU
Prověřené firmy v Českých Budějovicích

Výkup a prodej starého nábytku

Informace k bytu

Ve výhradním zastoupení majitele / jako správce bytu nabízíme k pronájmu kompletně zrekonstruovaný zděný byt velikosti 1+1 o celkové výměře 47m2. Bytové jednotka je umístěná ve zděném a nově zrekonstruovaném bytovém domě v širším centru Českých Budějovic, Tento dům prošel celkovou a nadstandardní rekonstrukcí (dokončeno 2025). Objekt se nachází v těsné blízkosti IGY centra, hotelu Clarion, Polikliniky Pražská a obchodního domu Družba s veřejným parkovištěm. Bytová jednotka k pronájmu je k dispozici včetně základního vybavení.

Naším klientům tímto nabízíme:
► umístění objektu / bytu v těsné blízkosti obchodního centra IGY, hotelu Clarion
► příjemná docházková vzdálenost do historického centra (10 minut/650 m)
► v minimální vzdálenosti se nacházejí zastávky MHD a dalších linkových autobusových spojů
► nadstandartní kvalita provedení bytů i celého domu
► nabídka dlouhodobého stabilního nájmu
► možnost parkování v těsné blízkosti domu i v okolí
► možnost pronájmu sklepní kóje / sklepních kojí ve vnitrobloku
► byt s prostorným balkonem situovaným do vnitrobloku
► výtah
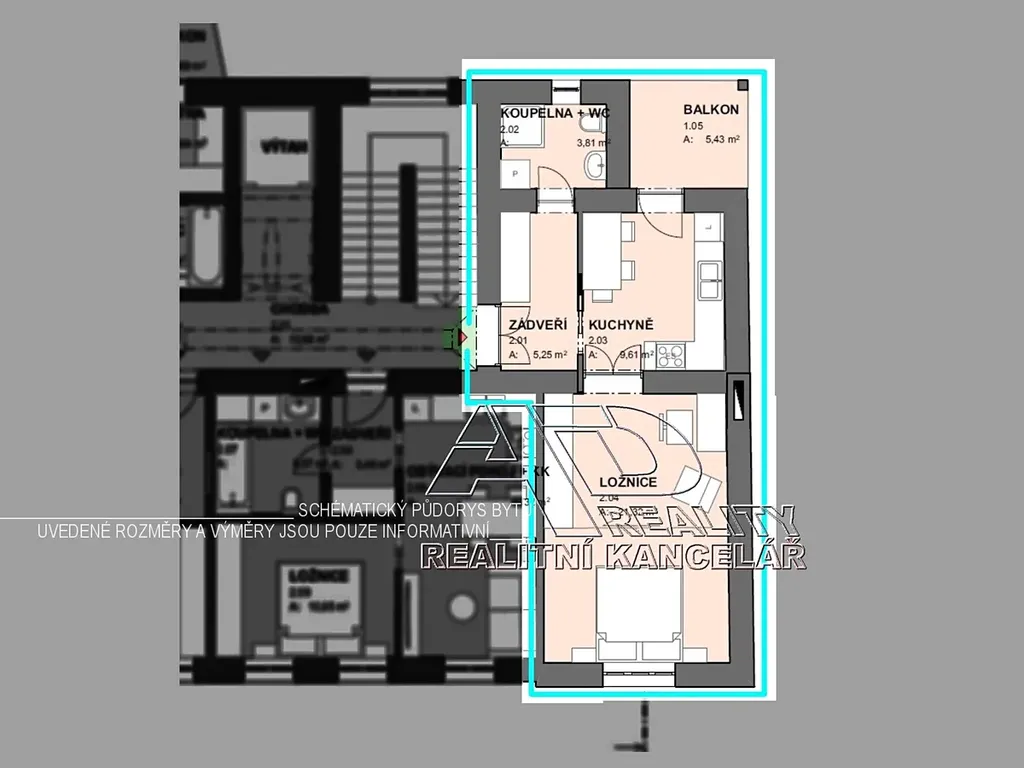
► [byt_04]►► zděný byt velikosti 1+1 s balkonem, celková plocha bytu [47m2], podlahová plocha [40m2] + balkon [5m2] + sklep [2m2].
Dispozice bytové jednotky: předsíň [5m2], kuchyně [9,5m2], balkon [5,0m2], koupelna [4,5m2], pokoj [20m2]. K dispozici je sklepní kóje ve vnitrobloku o výměře [2m2].
Orientace bytu na sever (francouzské okno z kuchyně na balkon) a na jih je orientováno okno obytné místnosti. Byt je umístěný ve 2.NP polyfunkčního bytového domu s výtahem.
Rekonstrukce celého domu a bytu byla dokončena v roce 2025, byt je pouze minimálně bydlenou novostavbou. Vše provedeno v nadstandartní kvalitě: V bytě je osazena kuchyňská linka včetně zabudovaných spotřebičů (elektrická varná deska, vestavěná horkovzdušná trouba), podlahy plovoucí laminátové / vinylové a keramická dlažba, v koupelně sprchový kout, závěsné WC. Přípojka pračky je připravená v koupelně. V domě je pro pohodlí nájemníků instalován osobní výtah. V bytě jsou osazena nová plastová okna s izolačními trojskly a žaluziemi, fasáda domu je kvalitně zateplená, veškeré rozvody všech sítí a dalších médií jsou v celém domě a bytě nově vybudovány (voda, kanalizace, elektrické rozvody slabo a silnoproudu, topení a jiné)
Topení ústřední (radiátory s termoventily / termostat a samostatným měřením spotřeby), samostatné měření spotřeby teplé a studené vody (vodoměry) a elektřiny (elektroměr) a podružné měření spotřeby topení (pro byt).
V bytě je možno připojit internet (Starnet). Energetická náročnost budovy [D].
Občanská vybavenost a Parkování: Veškerá občanská vybavenost včetně MHD je v těsné blízkosti. V IGY centru, které je vzdálené 50metrů najdete kompletní nabídku obchodů a služeb, včetně multikina. Naproti IGY centra se nachází lékařský dům a další obchodní dům Družba.
Parkovací místa jsou dostupná v rámci parkovací zóny v okolí domu.
Požadavky / preference majitele bytu: majitel nabízí dlouhodobý (stabilní) pronájem bytu do 2 osob, malý domácí mazlíček po dohodě, (preferován je nájemce bez zvířat). Byt není vhodný pro spolubydlení či sdílení. V celém objektu budou společné prostory provozovány jako prostory nekuřácké. Majitel bytu si vždy vyhrazuje právo výběru nájemce na základě jím zvolených kritérií, preferováni jsou nájemci bez domácích zvířat a nekuřáci!
Byt je k dispozici po dohodě (květen_2026) – byt je určen ke dlouhodobému pronájmu.
Nájemné: 14.300,-Kč/MĚS + ENergie a služby (záloha na byt včetně elektriky cca 3.000,-Kč/měs – podle počtu osob).
Bytová Jistina / Kauce: 29.000,-Kč (vratná při ukončení nájmu).
Provize RK: za zprostředkování pronájmu a sepsání nájemní smlouvy: 15.000,-Kč.
Pro bližší informace a termíny prohlídky volejte makléře | správce objektu | (Jindřich DVOŘÁK, Dipl.Tech).
Zakázka výhradně v nabídce realitní kanceláře AD-reality CB České Budějovice.

Parametry bytu

Cena
14 300 Kč /za měsíc
Aktualizováno
4. 4. 2026
Adresa
Fráni Šrámka, České Budějovice 3
ID
AD-2770-2026
Stavba
Cihlová
Stav objektu
Novostavba
Patro
2. z 4
Vybaveno
Částečně
Lokalita objektu
Centrum obce
Vlastnictví
Osobní
Užitná plocha
40 m2
Podlahová plocha
47 m2
Třída energetické náročnosti
D - Méně úsporná
Elektřina
230V
Odpad
Veřejná kanalizace
Komunikace
Dlážděná
Telekomunikace
Internet
Doprava
Vlak, Dálnice, Silnice, MHD, Autobus
Voda
Vodovod
Topné těleso
Radiátory
Zdroj topení
Centrální dálkové
Zdroj teplé vody
Centrální dálkový ohřev
Balkon
Sklep
Výtah

Kontaktovat makléře

Realitní kancelář

AD reality CB

Dr. Stejskala 108/7, České Budějovice

Chystáte se prodat nemovitost?
Pomůžeme Vám!

Máte zájem o tento byt?

Tímto, v souladu s nařízením Evropského parlamentu a Rady (EU) 2016/679, v platném znění, prohlašuji, že mi je alespoň 16 let a uděluji tak svůj souhlas se zpracováním zadaných údajů (jméno, telefon, e-mail, ip adresa) společnosti B3 Technology, s.r.o., IČ: 07330600, se sídlem Novostavby 126/23, 435 11 Lom (správce dat), za účelem předání dotazu z tohoto formuláře Vámi vybranému inzerentovi a zpětného kontaktování mé osoby. Osobní údaje bude správce zpracovávat manuálně i automaticky přímo prostřednictvím svých zaměstnanců. Informace předané tímto formulářem budou uloženy v databázi správce maximálně po dobu 10 let. Odvolání souhlasu s uložením a zpracováním poskytnutých dat lze e-mailem na info@realitypro.eu. V případě podezření na neoprávněné použití Vámi poskytnutých údajů máte právo předat podnět k šetření Úřadu pro ochranu osobních údajů. Více informací
Chystáte se prodat nemovitost?
Pomůžeme Vám!

Inzerát si prohlédlo 1 lidí

Prodejce

Jindřich DVOŘÁK, Dipl.Tech.

Jindřich DVOŘÁK, Dipl.Tech.

Hlídací pes

Chcete dostávat emailem podobné nabídky pronájmu bytů 1+1 v Českých Budějovicích?

Podobné nemovitosti