Soccer reality

Prodej rodinného domu, Škvorec, 142 m2 (ID: 2851091)

Škvorec

12 399 000 Kč /za nemovitost HYPOTÉKA od 55 416 Kč /za měsíc

(včetně DPH, pozemku a inženýrských sítí)

Prověřené firmy v Škvorci

Informace k domu

Nabízíme k prodeji nízkoenergetický moderní rodinný dům IDEAL II v nově zahájené nabídce z exkluzivního projektu společnosti CANABA.

V tomto projektu bude nabízeno pouze 25 rodinných domů, jedná se tedy o individuální řešení celé lokality, které Vám zaručí dostatek soukromí při zachování plné občanské vybavenosti a zároveň s výbornou dostupností Prahy.

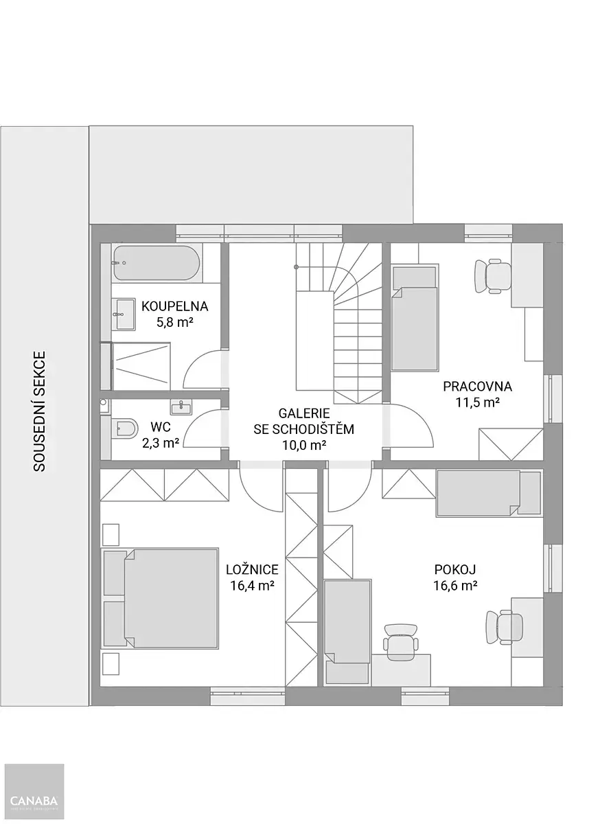
Jedná se o architektonicky promyšlený a velmi zajímavě řešený patrový dům, který se pyšní podlahovou plochou 142 m² a který svým majitelům nabízí celkem 5 obytných místností při současném využití nadstandardních ploch pro technické a skladovací účely (k dispozici je zejména zádveří, šatna, technická místnost atd.). Samozřejmostí je velkorysá zahrada 425 m².

Srdcem tohoto domu je prosluněný obývací pokoj s výměrou téměř 34 m², terasovými dveřmi s výstupem na zahradu a účelně oddělenou kuchyní. Kromě toho je v přízemí praktická koupelna se sprchovým koutem a toaletou, technická místnost připravená pro umístění pračky se sušičkou, komora pod schody a nesmí chybět ani šatna. V patře je hlavní ložnice, 2 samostatné dětské pokoje a další koupelna s vanou, sprchovým koutem a toaletou zvlášť. Jednotlivé místnosti propojuje prostorná hala.

Součástí příslušenství domu je parkovací stání pro 3 automobily a přístupový chodník.

Dům je navržen ve vysokém nadstandardu s ohledem na funkčnost a pohodlí a poskytuje moderní technologie a úsporná řešení. Nízké provozní náklady jsou zaručeny díky tepelnému čerpadlu.

Výběr vnitřních dveří, podlahových krytin, obkladů, dlažby, sanitární keramiky přizpůsobíme vašim individuálním požadavkům. Dům bude dle Vašich požadavků kompletně dokončen a připraven k nastěhování.

Celková cena nezahrnuje poplatek obci na rozvoj infrastruktury ve výši 150.000 Kč.

Cena je konečná včetně pozemku, vybudování inženýrských sítí a DPH. Výstavba lokality byla zahájena a je realizována ve vzdálenosti do 4 km od Úval.

Naše domy se těší dlouholeté oblibě. Jejich přednosti ocenilo za téměř 35 let více než 8500 spokojených majitelů v celé ČR. Díky unikátní masivní technologii poskytujeme zárukou 50 let na konstrukční systém.

Rádi a zdarma Vám zajistíme výhodný hypoteční úvěr s nejnižší úrokovou sazbou na trhu.
V případě zájmu nás neváhejte kontaktovat a my dáme vašemu životu místo.

Parametry domu

Cena
12 399 000 Kč /za nemovitost Spočítat hypotéku
Poznámka k ceně
včetně DPH, pozemku a inženýrských sítí
Aktualizováno
2. 4. 2026
Adresa
Škvorec
ID
01450
Stavba
Cihlová
Stav objektu
Ve výstavbě
Druh objektu
Samostatný
Užitná plocha
142 m2
Plocha pozemku
425 m2
Třída energetické náročnosti
B - Velmi úsporná
Ukazatel energetické náročnosti
56 kWh/m2 za rok
Zdroj teplé vody
Tepelné čerpadlo
Parkování

Kontaktovat makléře

Máte zájem o tento dům?

Tímto, v souladu s nařízením Evropského parlamentu a Rady (EU) 2016/679, v platném znění, prohlašuji, že mi je alespoň 16 let a uděluji tak svůj souhlas se zpracováním zadaných údajů (jméno, telefon, e-mail, ip adresa) společnosti B3 Technology, s.r.o., IČ: 07330600, se sídlem Novostavby 126/23, 435 11 Lom (správce dat), za účelem předání dotazu z tohoto formuláře Vámi vybranému inzerentovi a zpětného kontaktování mé osoby. Osobní údaje bude správce zpracovávat manuálně i automaticky přímo prostřednictvím svých zaměstnanců. Informace předané tímto formulářem budou uloženy v databázi správce maximálně po dobu 10 let. Odvolání souhlasu s uložením a zpracováním poskytnutých dat lze e-mailem na info@realitypro.eu. V případě podezření na neoprávněné použití Vámi poskytnutých údajů máte právo předat podnět k šetření Úřadu pro ochranu osobních údajů. Více informací
Chystáte se prodat nemovitost?
Pomůžeme Vám!

Inzerát si prohlédlo 0 lidí

Prodejce

Gabriela Sousedíková

Gabriela Sousedíková

Hlídací pes

Chcete dostávat emailem podobné nabídky prodeje rodinných domů v Škvorci?

Podobné nemovitosti