Prodej pozemku pro bydlení, Vícov, 2088 m2

Vícov, okres prostějov

1 875 Kč /za metr čtvereční HYPOTÉKA od 8 Kč /za měsíc
Prověřené firmy v Vícově

Informace k pozemku

Vyjímečné stavební místo na okraji obce Vícov, které se skládá ze čtyř na sebe navazujících pozemků o celkové výměře více, jak dva tisíce metrů čtverečních.

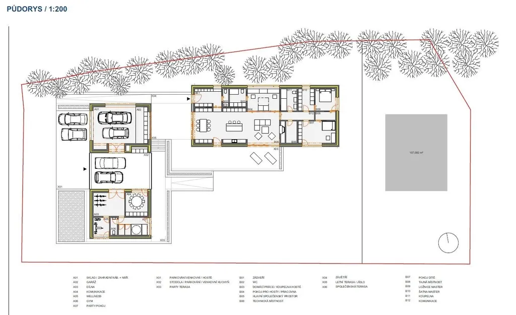
K pozemku je zpracována vizualizace na stavbu rodinného domu se zázemím.

Sítě jsou ihned na hranici pozemku.

Dostupnost do Prostějova je asi patnáct minut jízdy autem. Do obce je autobusové spojení pravidelných linek .

Právě zde může stát váš nový domov.

Parametry pozemku

Cena
1 875 Kč /za metr čtvereční Spočítat hypotéku
Aktualizováno
30. 3. 2026
Adresa
Vícov, okres prostějov
ID
976268
Vlastnictví
Osobní
Plocha pozemku
2088 m2
Elektřina
230V
Plyn
Plynovod
Odpad
Veřejná kanalizace
Doprava
Silnice
Voda
Vodovod

Kontaktovat makléře

Realitní kancelář

Logo ERA RealPatria

ERA RealPatria

Fanderlíkova 381/10, Prostějov

Chystáte se prodat nemovitost?
Pomůžeme Vám!

Máte zájem o tento pozemek?

Tímto, v souladu s nařízením Evropského parlamentu a Rady (EU) 2016/679, v platném znění, prohlašuji, že mi je alespoň 16 let a uděluji tak svůj souhlas se zpracováním zadaných údajů (jméno, telefon, e-mail, ip adresa) společnosti B3 Technology, s.r.o., IČ: 07330600, se sídlem Novostavby 126/23, 435 11 Lom (správce dat), za účelem předání dotazu z tohoto formuláře Vámi vybranému inzerentovi a zpětného kontaktování mé osoby. Osobní údaje bude správce zpracovávat manuálně i automaticky přímo prostřednictvím svých zaměstnanců. Informace předané tímto formulářem budou uloženy v databázi správce maximálně po dobu 10 let. Odvolání souhlasu s uložením a zpracováním poskytnutých dat lze e-mailem na info@realitypro.eu. V případě podezření na neoprávněné použití Vámi poskytnutých údajů máte právo předat podnět k šetření Úřadu pro ochranu osobních údajů. Více informací
Chystáte se prodat nemovitost?
Pomůžeme Vám!

Inzerát si prohlédlo 0 lidí

Prodejce

Bc. Pavel Beregsázi

Bc. Pavel Beregsázi

Hlídací pes

Chcete dostávat emailem podobné nabídky prodeje pozemků pro bydlení v Vícově?

Podobné nemovitosti