Prodej rodinného domu, Předměřice nad Jizerou, 160 m2 (ID: 2844229)

Předměřice nad Jizerou

5 999 000 Kč /za nemovitost HYPOTÉKA od 26 812 Kč /za měsíc
Prověřené firmy v Předměřicích nad Jizerou

Informace k domu

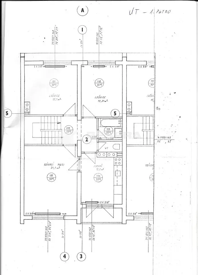
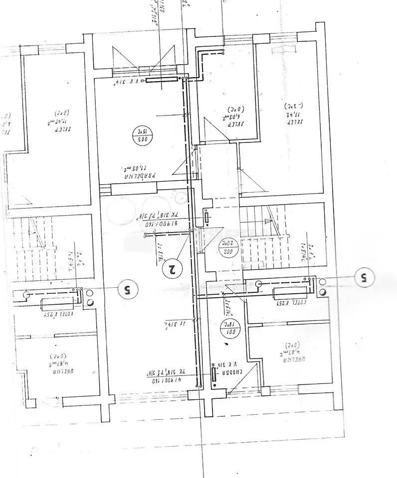
ŘRD je určen k rekonstrukci, což umožnuje úpravu dle představ, v obytné části obce s výbornou dopravní dostupností (Praha-Černý Most 15min, Mladá Boleslav 15min, Mělník a Nymburk do 20min.) Jedná se o samostatný patrový řadový dům s půdou, na rovinatém pozemku o výměře 234 m2, zastav. plocha 100m2, zahradou 100m2, s vjezdem a parkováním před domem 34m2. Užitná plocha domu cca 160m2, v původní podobě 3+1 - 1.patro (80m2), v přízemí 3 tech. místnosti, kotelna, uhelna, garáž (80m2). Rekonstrukce dovoluje různou volitelnost pozic a rozmístění pokojů a obytného přízemí až na pozici 5+1. 2x balkón se vstupem na zahradu. Železobetonová masivní stavba tehdejší společnosti DRUPOS-PRAHA, řadové rodinné domy. Připojení na IS (kanalizace, ele.), voda – společná studna. Zahrada orientovaná na JZ s celodenním slunečním svitem, travnatým osevem. Výborná dostupnost do PH a MB, cca 15 min po dálnici D10, okolní města Benátky nad Jizerou, Lysá nad Labem, Brandýs nad Labem, vše do 10 km. Veškerá občanská vybavenost v místě /OÚ, ZŠ a MŠ, lékař, pošta, dětské sportovní hřiště, fotbalové hřiště a tenis. kurt, v blízkosti protéká řeka Jizera, která nabízí spousty vyžití, síť cyklostezek. Dopravu zajištuje autobusová doprava, pražské příměstské linky, cca po 20 min (hlavní tah PH a MB). Ihned dispozici, možnost vyřízení financování hypotéky. Pro více informací volejte.

Parametry domu

Cena
5 999 000 Kč /za nemovitost Spočítat hypotéku
Aktualizováno
27. 3. 2026
Adresa
Předměřice nad Jizerou
ID
544
Stavba
Panelová
Stav objektu
Před rekonstrukcí
Druh objektu
Řadový
Lokalita objektu
Centrum obce
Užitná plocha
160 m2
Zastavěná plocha
100 m2
Podlahová plocha
160 m2
Plocha pozemku
234 m2
Plocha zahrady
100 m2
Třída energetické náročnosti
G - Mimořádně nehospodárná
Elektřina
230V
Odpad
Veřejná kanalizace
Topení
Ústřední tuhá paliva
Telekomunikace
Telefon, Internet
Doprava
Dálnice, MHD, Autobus
Garáž
Parkování

Kontaktovat makléře

Realitní kancelář

RESPRA.CZ, s.r.o.

Vlkova 811/33, Praha, Žižkov

Chystáte se prodat nemovitost?
Pomůžeme Vám!

Máte zájem o tento dům?

Tímto, v souladu s nařízením Evropského parlamentu a Rady (EU) 2016/679, v platném znění, prohlašuji, že mi je alespoň 16 let a uděluji tak svůj souhlas se zpracováním zadaných údajů (jméno, telefon, e-mail, ip adresa) společnosti B3 Technology, s.r.o., IČ: 07330600, se sídlem Novostavby 126/23, 435 11 Lom (správce dat), za účelem předání dotazu z tohoto formuláře Vámi vybranému inzerentovi a zpětného kontaktování mé osoby. Osobní údaje bude správce zpracovávat manuálně i automaticky přímo prostřednictvím svých zaměstnanců. Informace předané tímto formulářem budou uloženy v databázi správce maximálně po dobu 10 let. Odvolání souhlasu s uložením a zpracováním poskytnutých dat lze e-mailem na info@realitypro.eu. V případě podezření na neoprávněné použití Vámi poskytnutých údajů máte právo předat podnět k šetření Úřadu pro ochranu osobních údajů. Více informací
Chystáte se prodat nemovitost?
Pomůžeme Vám!

Inzerát si prohlédlo 0 lidí

Prodejce

Lukáš  Novotný

Lukáš Novotný

Hlídací pes

Chcete dostávat emailem podobné nabídky prodeje rodinných domů v Předměřicích nad Jizerou?

Podobné nemovitosti