Prodej pozemku pro bydlení, Strakonice, Na Dubovci, 3000 m2 (ID: 2843792)

Na Dubovci, Strakonice II

29 000 000 Kč /za nemovitost HYPOTÉKA od 129 612 Kč /za měsíc
Prověřené firmy v Strakonicích

Výkup a prodej starého nábytku

Informace k pozemku

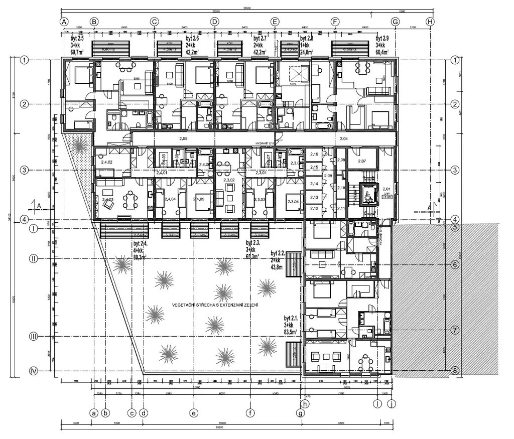
Pozemek s vydaným pravomocným ÚR a těsně před vydáním stavebního povolení na cca 40 bytů o celkové bytové podlahové ploše cca 3.000 m2.

Prodej SPV, cena zahrnuje i vydání stavebního povolení. Parkování zajištěno kompletně na povrchu (v 1.NP nemovitosti).

Více informací na kontaktech u inzerátu.

Parametry pozemku

Cena
29 000 000 Kč /za nemovitost Spočítat hypotéku
Aktualizováno
26. 3. 2026
Adresa
Na Dubovci, Strakonice II
ID
Strakonice - development
Plocha pozemku
3000 m2

Kontaktovat makléře

Realitní kancelář

7S Business

Na Maninách 1590/29, Praha

Chystáte se prodat nemovitost?
Pomůžeme Vám!

Máte zájem o tento pozemek?

Tímto, v souladu s nařízením Evropského parlamentu a Rady (EU) 2016/679, v platném znění, prohlašuji, že mi je alespoň 16 let a uděluji tak svůj souhlas se zpracováním zadaných údajů (jméno, telefon, e-mail, ip adresa) společnosti B3 Technology, s.r.o., IČ: 07330600, se sídlem Novostavby 126/23, 435 11 Lom (správce dat), za účelem předání dotazu z tohoto formuláře Vámi vybranému inzerentovi a zpětného kontaktování mé osoby. Osobní údaje bude správce zpracovávat manuálně i automaticky přímo prostřednictvím svých zaměstnanců. Informace předané tímto formulářem budou uloženy v databázi správce maximálně po dobu 10 let. Odvolání souhlasu s uložením a zpracováním poskytnutých dat lze e-mailem na info@realitypro.eu. V případě podezření na neoprávněné použití Vámi poskytnutých údajů máte právo předat podnět k šetření Úřadu pro ochranu osobních údajů. Více informací
Chystáte se prodat nemovitost?
Pomůžeme Vám!

Inzerát si prohlédlo 0 lidí

Prodejce

Tomáš Křížek

Tomáš Křížek

Hlídací pes

Chcete dostávat emailem podobné nabídky prodeje pozemků pro bydlení v Strakonicích?

Podobné nemovitosti