Prodej pozemku pro bydlení, Praha, Jeřická, 2200 m2

Jeřická, Praha 20

19 800 000 Kč /za nemovitost HYPOTÉKA od 88 494 Kč /za měsíc

(Cena je konečná bez dalších poplatků.)

Prověřené firmy v Praze

Stěhovací služby

Výkup a prodej starého nábytku

Informace k pozemku

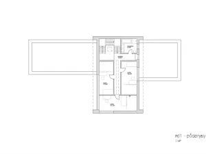
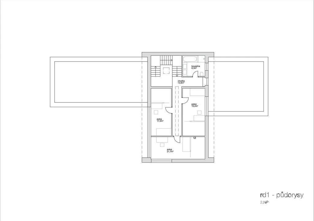
Exkluzivně nabízíme stavební pozemek o výměře 2200 m² s platným stavebním povolením na moderní vilu o užitné ploše 377 m², situovaný v klidné a příjemné části Horních Počernic.

Hlavní výhodou této nabídky je možnost okamžité realizace výstavby bez nutnosti zdlouhavého povolovacího procesu. Projekt vily počítá s vysokým standardem bydlení, včetně terasy s bazénem, rozlehlé zahrady, dvou garážových stání a venkovního parkování. Dispoziční řešení je orientační a lze jej upravit dle individuálních požadavků budoucího majitele.

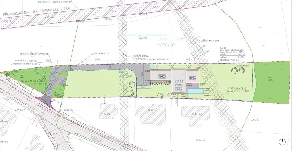
Součástí prodeje je také spoluvlastnický podíl na pozemku po kterém bude zajištěna příjezdová cesta (328 m²), který je již zahrnut v celkové ceně.

Další přidanou hodnotou je možnost rozšíření o sousední pozemek o výměře 780 m², na který je rovněž vydáno stavební povolení na vilu. V případě koupě obou pozemků a souvisejícího podílu vznikne ucelený komplex (znázorněno na posledním obrázku) o celkové ploše 3 309 m², vhodný například pro multigenerační bydlení nebo kombinaci vlastního bydlení a investice více informací žádejte u makléře.

Horní Počernice patří mezi vyhledávané lokality díky výborné dostupnosti do centra Prahy a zároveň blízkosti přírody. V místě je kompletní občanská vybavenost včetně škol a školek, v krátké dojezdové vzdálenosti se nachází nákupní centra na Černém Mostě. Okolí nabízí také široké možnosti sportovního a volnočasového využití.

Pro více informací nebo domluvení prohlídky kontaktujte makléře.

Parametry pozemku

Cena
19 800 000 Kč /za nemovitost Spočítat hypotéku
Poznámka k ceně
Cena je konečná bez dalších poplatků.
Aktualizováno
18. 3. 2026
Adresa
Jeřická, Praha 20
ID
976413
Vlastnictví
Osobní
Plocha pozemku
2200 m2
Plyn
Plynovod
Odpad
Veřejná kanalizace
Doprava
Silnice, MHD, Autobus
Bazén

Kontaktovat makléře

Realitní kancelář

Logo EVROPA realitní kancelář

EVROPA realitní kancelář

Václavské náměstí 806/62, Praha

Chystáte se prodat nemovitost?
Pomůžeme Vám!

Máte zájem o tento pozemek?

Tímto, v souladu s nařízením Evropského parlamentu a Rady (EU) 2016/679, v platném znění, prohlašuji, že mi je alespoň 16 let a uděluji tak svůj souhlas se zpracováním zadaných údajů (jméno, telefon, e-mail, ip adresa) společnosti B3 Technology, s.r.o., IČ: 07330600, se sídlem Novostavby 126/23, 435 11 Lom (správce dat), za účelem předání dotazu z tohoto formuláře Vámi vybranému inzerentovi a zpětného kontaktování mé osoby. Osobní údaje bude správce zpracovávat manuálně i automaticky přímo prostřednictvím svých zaměstnanců. Informace předané tímto formulářem budou uloženy v databázi správce maximálně po dobu 10 let. Odvolání souhlasu s uložením a zpracováním poskytnutých dat lze e-mailem na info@realitypro.eu. V případě podezření na neoprávněné použití Vámi poskytnutých údajů máte právo předat podnět k šetření Úřadu pro ochranu osobních údajů. Více informací
Chystáte se prodat nemovitost?
Pomůžeme Vám!

Inzerát si prohlédlo 0 lidí

Prodejce

William Seifert

William Seifert

Hlídací pes

Chcete dostávat emailem podobné nabídky prodeje pozemků pro bydlení v Praze?

Top nabídky

Podobné nemovitosti