Prodej bytu 2+1, Žďár nad Sázavou, Brodská, 55 m2 (ID: 2833339)

Brodská, Žďár nad Sázavou 3

3 220 000 Kč /za nemovitost HYPOTÉKA od 14 391 Kč /za měsíc
Prověřené firmy v Žďáře nad Sázavou

Informace k bytu

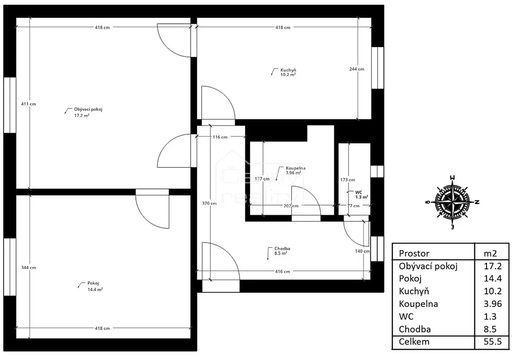
Prodej družstevního bytu 2+1 (55m2) ve Žďáru nad Sázavou, ve 3.NP, dva sklepy. Na adrese Brodská 2005/75, Žďár nad Sázavou. Byt se nachází v kompletně revitalizovaném domě, tzn. dům je zateplen, v bytě jsou osazena plastová okna s izolačním dvojsklem. Jinak je bytová jednotka v původnějším stavu. Dispozice: vstupní chodba s oknem na sever, o ploše 8,7 m2, koupelna s vanou 3,6 m2, toaleta s oknem 1,4 m2, kuchyň je otočena na severní stranu 10,3 m2, obývací pokoj na jih 17,2 m2, další pokoj na jižní stranu 14,4 m2. V přízemí domu náleží k bytové jednotce dva sklepy, o plochách 5,2 m2 a 4,3 m2. Užitná plocha bytu je 55,5 m2. Celková plocha bytu vč.sklepů je 65 m2. Parkování je možné před objektem. V obci je veškerá občanská vybavenost. Náklady na bydlení jsou 5186,-Kc. (z toho fond 1.105,-Kč) + elektřina 760,-Kč. ID 7525.

Parametry bytu

Cena
3 220 000 Kč /za nemovitost Spočítat hypotéku
Náklady na bydlení
5186,- (z toho fond 1.105,-Kč) + elektřina 760,-Kč
Aktualizováno
1. 5. 2026
Adresa
Brodská, Žďár nad Sázavou 3
ID
707
Stavba
Cihlová
Stav objektu
Velmi dobrý
Patro
3. z 4
Lokalita objektu
Sídliště
Vlastnictví
Družstevní
Užitná plocha
55 m2
Podlahová plocha
65 m2
Třída energetické náročnosti
B - Velmi úsporná
Ukazatel energetické náročnosti
88 kWh/m2 za rok
Elektřina
230V
Odpad
Veřejná kanalizace
Topení
Ústřední dálkové
Telekomunikace
Internet
Doprava
Vlak, MHD, Autobus
Voda
Vodovod
Sklep
Převod do OV

Kontaktovat makléře

Máte zájem o tento byt?

Tímto, v souladu s nařízením Evropského parlamentu a Rady (EU) 2016/679, v platném znění, prohlašuji, že mi je alespoň 16 let a uděluji tak svůj souhlas se zpracováním zadaných údajů (jméno, telefon, e-mail, ip adresa) společnosti B3 Technology, s.r.o., IČ: 07330600, se sídlem Novostavby 126/23, 435 11 Lom (správce dat), za účelem předání dotazu z tohoto formuláře Vámi vybranému inzerentovi a zpětného kontaktování mé osoby. Osobní údaje bude správce zpracovávat manuálně i automaticky přímo prostřednictvím svých zaměstnanců. Informace předané tímto formulářem budou uloženy v databázi správce maximálně po dobu 10 let. Odvolání souhlasu s uložením a zpracováním poskytnutých dat lze e-mailem na info@realitypro.eu. V případě podezření na neoprávněné použití Vámi poskytnutých údajů máte právo předat podnět k šetření Úřadu pro ochranu osobních údajů. Více informací
Chystáte se prodat nemovitost?
Pomůžeme Vám!

Inzerát si prohlédlo 279 lidí

Prodejce

Bc. Josef Černý

Bc. Josef Černý

Hlídací pes

Chcete dostávat emailem podobné nabídky prodeje bytů 2+1 v Žďáře nad Sázavou?

Podobné nemovitosti