Prodej pozemku pro bydlení, Lipová-lázně, 3795 m2

Lipová-lázně

4 500 000 Kč /za nemovitost HYPOTÉKA od 20 112 Kč /za měsíc
Prověřené firmy v Lipové-lázních

Informace k pozemku

Nabízíme na prodej pěkně umístěné pozemky pod lesem a poli ze schváleného územního plánu obce Lipová -lázně , určené pro občanskou a rekreační výstavbu o výměře 3795 m2, na pozemek je přiveden vodovod.
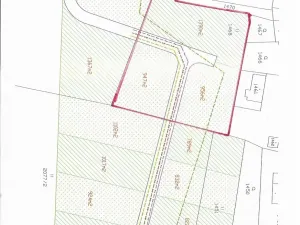
Přiložené možné situace rozdělení parcel pro výstavbu RD nebo rekreačních pozemků a umístění pozemků v katastr.mapě.
Druh pozemku -trvalý travní pozemek.
Pozemek je nabízen jako celek a je možné se dohodnout i na prodeji dalších navazajujících parcel jako výhodná větší investice pro investiční záměr větší výstavby RD , chat a podobně..... Prodávající si vyhrazuje právo vybrat kupujícího na základě jím zvolených kritérií.

Parametry pozemku

Cena
4 500 000 Kč /za nemovitost Spočítat hypotéku
Aktualizováno
11. 3. 2026
Adresa
Lipová-lázně
ID
0083-NP04602
Lokalita objektu
Okraj obce
Plocha pozemku
3795 m2
Doprava
Silnice

Kontaktovat makléře

Máte zájem o tento pozemek?

Tímto, v souladu s nařízením Evropského parlamentu a Rady (EU) 2016/679, v platném znění, prohlašuji, že mi je alespoň 16 let a uděluji tak svůj souhlas se zpracováním zadaných údajů (jméno, telefon, e-mail, ip adresa) společnosti B3 Technology, s.r.o., IČ: 07330600, se sídlem Novostavby 126/23, 435 11 Lom (správce dat), za účelem předání dotazu z tohoto formuláře Vámi vybranému inzerentovi a zpětného kontaktování mé osoby. Osobní údaje bude správce zpracovávat manuálně i automaticky přímo prostřednictvím svých zaměstnanců. Informace předané tímto formulářem budou uloženy v databázi správce maximálně po dobu 10 let. Odvolání souhlasu s uložením a zpracováním poskytnutých dat lze e-mailem na info@realitypro.eu. V případě podezření na neoprávněné použití Vámi poskytnutých údajů máte právo předat podnět k šetření Úřadu pro ochranu osobních údajů. Více informací
Chystáte se prodat nemovitost?
Pomůžeme Vám!

Inzerát si prohlédlo 4 lidí

Prodejce

Ing. Vladimír Tovaryš

Ing. Vladimír Tovaryš

Hlídací pes

Chcete dostávat emailem podobné nabídky prodeje pozemků pro bydlení v Lipové-lázních?

Podobné nemovitosti