Prodej pozemku pro bydlení, Radomyšl, 850 m2 (ID: 2827474)

Radomyšl

1 900 000 Kč /za nemovitost HYPOTÉKA od 8 492 Kč /za měsíc

(cena v RK)

Prověřené firmy v Radomyšli

Výkup a prodej starého nábytku

Informace k pozemku

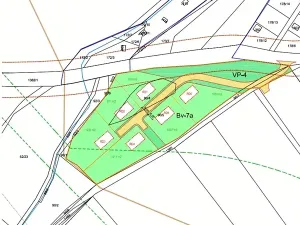
Středisková obec nedaleko Strakonic v klidné krajině pošumaví,známé a s veškerou vybaveností,moderní zástavbou a vybaveností. Lukrativní a levné stavební pozemky o velikosti od 850-3100 m2 na okraji obce jihozápadně orientován.Pozemek leží na okraji nové zástavby ,navazuje na komunikaci ,má v dosahu přípojky vody,elektřiny,plynu a kanalizace.Navazuje na klidnou zástavbu a blízko má volnou přírodu.Pozemek je vhodný na výstavbu rodinného domu dle svých možností a požadavků,je zařazen v aktuálním územním plánu obce k výstavbě pro RD.Výhodná investice.Nyní se připravuje infrastruktura.Ve městě veškerá vybavenost,školy,školky,obchodní centrun,vlak,bus,lékaři.Ke krajové parcele je možné levně přikoupit navazující pozemek s potokem 2800-7000 m2.

Parametry pozemku

Cena
1 900 000 Kč /za nemovitost Spočítat hypotéku
Poznámka k ceně
cena v RK
Aktualizováno
10. 3. 2026
Adresa
Radomyšl
ID
SP140722
Lokalita objektu
Okraj obce
Plocha pozemku
850 m2
Elektřina
400V
Plyn
Plynovod
Odpad
Veřejná kanalizace
Komunikace
Asfaltová
Voda
Vodovod

Kontaktovat makléře

Máte zájem o tento pozemek?

Tímto, v souladu s nařízením Evropského parlamentu a Rady (EU) 2016/679, v platném znění, prohlašuji, že mi je alespoň 16 let a uděluji tak svůj souhlas se zpracováním zadaných údajů (jméno, telefon, e-mail, ip adresa) společnosti B3 Technology, s.r.o., IČ: 07330600, se sídlem Novostavby 126/23, 435 11 Lom (správce dat), za účelem předání dotazu z tohoto formuláře Vámi vybranému inzerentovi a zpětného kontaktování mé osoby. Osobní údaje bude správce zpracovávat manuálně i automaticky přímo prostřednictvím svých zaměstnanců. Informace předané tímto formulářem budou uloženy v databázi správce maximálně po dobu 10 let. Odvolání souhlasu s uložením a zpracováním poskytnutých dat lze e-mailem na info@realitypro.eu. V případě podezření na neoprávněné použití Vámi poskytnutých údajů máte právo předat podnět k šetření Úřadu pro ochranu osobních údajů. Více informací
Chystáte se prodat nemovitost?
Pomůžeme Vám!

Inzerát si prohlédlo 4 lidí

Prodejce

Paterna Jan

Paterna Jan

Hlídací pes

Chcete dostávat emailem podobné nabídky prodeje pozemků pro bydlení v Radomyšli?

Podobné nemovitosti