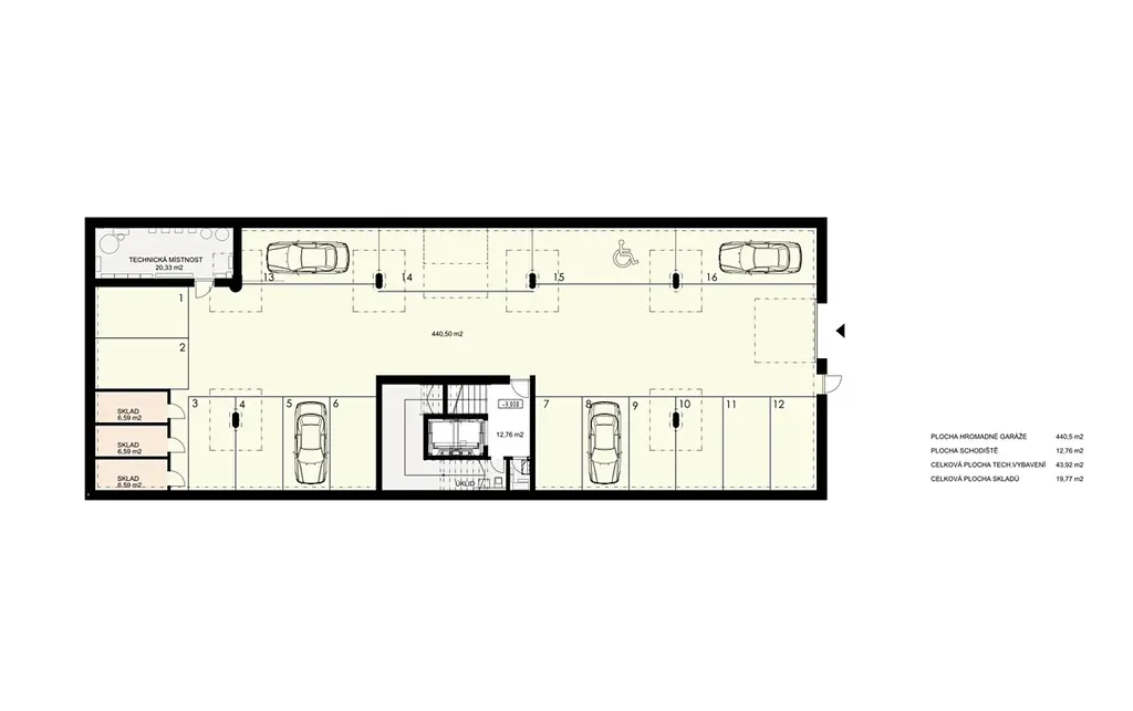
Pronájem ordinace, Plzeň, Krašovská, 2092 m2

Krašovská, Plzeň, Bolevec

Cena na vyžádání /za měsíc Získejte výhodnou HYPOTÉKU
Prověřené firmy v Plzni

Stěhovací služby

Informace k nemovitosti

Centrum zdravotní péče Krašovská nabízí reprezentativní prostory pro ordinace, kliniky, laboratoře, fyzioterapii, lékárnu, diagnostiku i administrativu. Budova bude dostavěna v roce 2028 a představuje moderní, světlé a flexibilní prostředí s vysokým standardem služeb.
✨ Hlavní výhody
- Flexibilní dispozice – možnost úprav na míru typu provozu
- Bezbariérový přístup, výtah
- kvalitní zázemí pro pacienty i klienty
- Parkování přímo u budovy, dobrá dopravní dostupnost MHD
- Silná spádová oblast sídliště Lochotín a Severní Předměstí
- Ideální pro lékaře, specialisty, fyzioterapii, dentální služby, laboratoře, administrativu či služby
Dostupné jednotky
- Prostory od 50 do 410 m²
- Možnost propojení více jednotek
- Vhodné pro zdravotnické provozy i kanceláře
Lokalita
Budova se nachází v dynamicky se rozvíjející části Plzně – Krašovská / Lochotín, v místě s vysokou koncentrací obyvatel a výbornou občanskou vybaveností. Snadná dostupnost autem i MHD.
Pro koho je objekt ideální
- Praktický lékař, pediatr, gynekologie
- Fyzioterapie, rehabilitace, psychologie
- Dentální služby
- Odběrové místo, laboratoř
- Administrativa, pojišťovny, služby pro veřejnost

V případě zájmu mne neváhejte kontaktovat a projekt Vám blíže představím.

Parametry nemovitosti

Cena
Cena na vyžádání
Aktualizováno
26. 4. 2026
Adresa
Krašovská, Plzeň, Bolevec
Stavba
Skeletová
Stav objektu
Projekt
Vybaveno
Ne
Lokalita objektu
Centrum obce
Užitná plocha
2092 m2
Třída energetické náročnosti
B - Velmi úsporná
Odpad
Veřejná kanalizace
Komunikace
Asfaltová
Telekomunikace
Internet
Doprava
Silnice, MHD, Autobus
Voda
Vodovod, Retenční nádrž na dešt’ovou vodu
Zdroj topení
Elektrokotel, Tepelné čerpadlo
Garáž
Výtah
Bezbarierový přístup
Parkování

Kontaktovat makléře

Realitní kancelář

BC Real, a.s.

Papírnická 2809/10, Plzeň

Chystáte se prodat nemovitost?
Pomůžeme Vám!

Máte zájem o tuto nemovistost?

Tímto, v souladu s nařízením Evropského parlamentu a Rady (EU) 2016/679, v platném znění, prohlašuji, že mi je alespoň 16 let a uděluji tak svůj souhlas se zpracováním zadaných údajů (jméno, telefon, e-mail, ip adresa) společnosti B3 Technology, s.r.o., IČ: 07330600, se sídlem Novostavby 126/23, 435 11 Lom (správce dat), za účelem předání dotazu z tohoto formuláře Vámi vybranému inzerentovi a zpětného kontaktování mé osoby. Osobní údaje bude správce zpracovávat manuálně i automaticky přímo prostřednictvím svých zaměstnanců. Informace předané tímto formulářem budou uloženy v databázi správce maximálně po dobu 10 let. Odvolání souhlasu s uložením a zpracováním poskytnutých dat lze e-mailem na info@realitypro.eu. V případě podezření na neoprávněné použití Vámi poskytnutých údajů máte právo předat podnět k šetření Úřadu pro ochranu osobních údajů. Více informací
Chystáte se prodat nemovitost?
Pomůžeme Vám!

Inzerát si prohlédlo 5 lidí

Prodejce

Lenka Nová1

Lenka Nová1

Hlídací pes

Chcete dostávat emailem podobné nabídky pronájmu ordinací v Plzni?

Podobné nemovitosti