Prodej rodinného domu, Havířov, Farská, 106 m2 (ID: 2826960)

Farská, Havířov

8 290 000 Kč /za nemovitost HYPOTÉKA od 37 051 Kč /za měsíc
Prověřené firmy v Havířově

Informace k domu

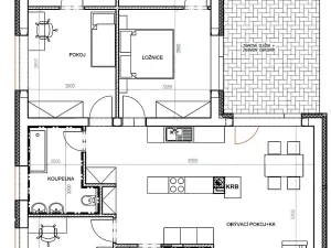
Představujeme vám Grandis (5+kk)
Velkorysý rodinný dům s čistými liniemi a moderní pultovou střechou, který nabízí nadstandardní prostor pro celou rodinu. Tento dům realizujeme kompletně „na klíč“ a ačkoliv je v této nabídce spojen s konkrétní parcelou, lze jej po dohodě postavit na jakémkoliv jiném pozemku z naší nabídky, nebo na vašem vlastním pozemku.

Hlavní focus: Dům Grandis (5 990 000 Kč)

Dispozice 5+kk (106 m²): Ideální řešení pro početnou rodinu se čtyřmi ložnicemi a velkým obývacím pokojem.

Vybavení v ceně: Neřešíte jen hrubou stavbu. Cena zahrnuje projekt, stavební povolení, finální podlahy, obklady, kompletní sanitu, interiérové dveře i napojení na sítě v rámci pozemku.

Moderní technologie: Součástí standardu je klimatizace a třísložkový komín připravený pro krbová kamna.

Technické parametry: Kvalitní zdicí systém z pórobetonu, moderní pultová střecha (sklon 5°) a variabilní orientace vstupu.

Servis bez starostí: Přebíráme kompletní odpovědnost od projektové dokumentace až po finální kolaudaci.

Realizace na nabízeném pozemku 1 037 m²
Pro účely této nabídky jsme dům Grandis (zastavěná plocha 134 m²) umístili na prostorný pozemek parc. č. 1064/93 o výměře 1 037 m². Tato kombinace nabízí luxusní prostor pro dům i rozlehlou zahradu.

Celková investice (Dům Grandis + Pozemek): 8 271 400 Kč
(Rozklad ceny: dům 5 990 000 Kč + pozemek 2 281 400 Kč při ceně 2 200 Kč/m²).

Máte zájem o jinou parcelu z naší nabídky? Ozvěte se nám, rádi vám připravíme kalkulaci na vámi vybraný pozemek.

Parametry domu

Cena
8 290 000 Kč /za nemovitost Spočítat hypotéku
Aktualizováno
10. 3. 2026
Adresa
Farská, Havířov
Stavba
Cihlová
Stav objektu
Projekt
Užitná plocha
106 m2
Plocha pozemku
1037 m2

Kontaktovat makléře

Máte zájem o tento dům?

Tímto, v souladu s nařízením Evropského parlamentu a Rady (EU) 2016/679, v platném znění, prohlašuji, že mi je alespoň 16 let a uděluji tak svůj souhlas se zpracováním zadaných údajů (jméno, telefon, e-mail, ip adresa) společnosti B3 Technology, s.r.o., IČ: 07330600, se sídlem Novostavby 126/23, 435 11 Lom (správce dat), za účelem předání dotazu z tohoto formuláře Vámi vybranému inzerentovi a zpětného kontaktování mé osoby. Osobní údaje bude správce zpracovávat manuálně i automaticky přímo prostřednictvím svých zaměstnanců. Informace předané tímto formulářem budou uloženy v databázi správce maximálně po dobu 10 let. Odvolání souhlasu s uložením a zpracováním poskytnutých dat lze e-mailem na info@realitypro.eu. V případě podezření na neoprávněné použití Vámi poskytnutých údajů máte právo předat podnět k šetření Úřadu pro ochranu osobních údajů. Více informací
Chystáte se prodat nemovitost?
Pomůžeme Vám!

Inzerát si prohlédlo 12 lidí

Prodejce

Daniel Lang

Daniel Lang

Hlídací pes

Chcete dostávat emailem podobné nabídky prodeje rodinných domů v Havířově?

Podobné nemovitosti