Prodej bytu 3+1, Mžany, 73 m2

Mžany

Rezervováno
4 999 000 Kč /za nemovitost HYPOTÉKA od 22 343 Kč /za měsíc
Prověřené firmy v Mžanech

Informace k bytu

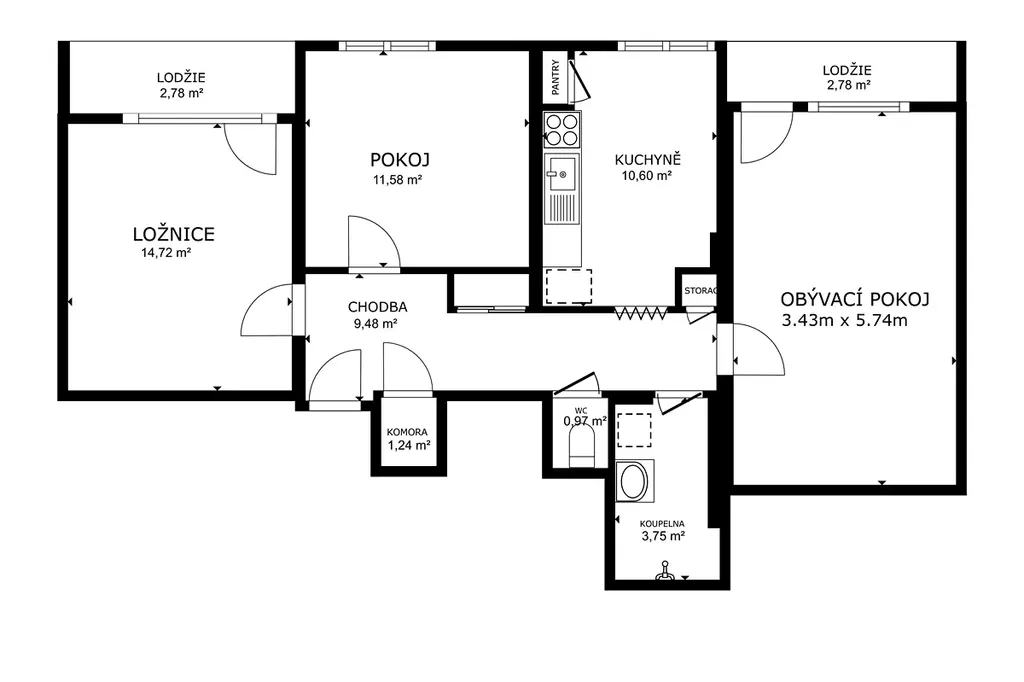
Byt o dispozici 3+1 o velikosti 72,85 m², ke kterému náleží dvě lodžie 5,56 m² (2x 2,78m² + 2,78 m²), sklep 5,4 m² (do kterého je přivedená elektřina z bytu) a kotelna 4,1 m² s vlastním plynovým kotlem. Celková plocha bytu tak činí 87,91 m².

Byt se nachází ve zvýšeném přízemí zděného domu, který před pár měsíci prošel kompletním zateplením, a to včetně střechy i sklepů.

Samotný byt prošel před 10 lety rekonstrukcí, při které byly vyměněné rozvody elektřiny v kuchyni a v koupelně, vody, odpadů i topení.

Velkým benefitem je oplocená zahrada o výměře 651 m², která je jen 30 m od bytu. Nachází se zde zděný a podsklepený domek, skleník a ovocné stromy a keře (jabloně, švestky, rybízy, angrešty atd.). Zahrada nabízí dostatek prostoru nejen pro odpočinek, ale i pěstování nebo chov drobných zvířat.

Součástí prodeje je také garáž, která se nachází vedle domu a je o velikosti 19 m².

Zálohy celkem: 3.529 Kč (fond oprav: 2.500 Kč, pojištění domu: 25 Kč, elektřina společných prostor: 229 Kč, studená voda: 631 Kč, komíny: 30 Kč, správa: 114 Kč) + elektřina a plyn v závislosti na spotřebě a poskytovateli.

Parkování je možné přímo u domu.

V obci najdete základní občanskou vybavenost – školku, školu prvního stupně, autobusové spojení a nedaleko také vlakovou stanici. Výhodou je i dobrá dostupnost na dálnici mezi Hradcem Králové a Jičínem.

Parametry bytu

Stav
Rezervováno
Cena
4 999 000 Kč /za nemovitost Spočítat hypotéku
Aktualizováno
22. 4. 2026
Adresa
Mžany
Stavba
Cihlová
Stav objektu
Velmi dobrý
Patro
1.
Lokalita objektu
Klidná část obce
Vlastnictví
Osobní
Užitná plocha
73 m2
Podlahová plocha
88 m2
Třída energetické náročnosti
C - Úsporná
Elektřina
230V
Plyn
Individuální
Odpad
Veřejná kanalizace
Komunikace
Betonová
Doprava
Silnice, Autobus
Voda
Vodovod
Zdroj topení
Plynový kondenzační kotel
Garáž
Sklep
Lodžie
Parkování

Kontaktovat makléře

Máte zájem o tento byt?

Tímto, v souladu s nařízením Evropského parlamentu a Rady (EU) 2016/679, v platném znění, prohlašuji, že mi je alespoň 16 let a uděluji tak svůj souhlas se zpracováním zadaných údajů (jméno, telefon, e-mail, ip adresa) společnosti B3 Technology, s.r.o., IČ: 07330600, se sídlem Novostavby 126/23, 435 11 Lom (správce dat), za účelem předání dotazu z tohoto formuláře Vámi vybranému inzerentovi a zpětného kontaktování mé osoby. Osobní údaje bude správce zpracovávat manuálně i automaticky přímo prostřednictvím svých zaměstnanců. Informace předané tímto formulářem budou uloženy v databázi správce maximálně po dobu 10 let. Odvolání souhlasu s uložením a zpracováním poskytnutých dat lze e-mailem na info@realitypro.eu. V případě podezření na neoprávněné použití Vámi poskytnutých údajů máte právo předat podnět k šetření Úřadu pro ochranu osobních údajů. Více informací
Chystáte se prodat nemovitost?
Pomůžeme Vám!

Inzerát si prohlédlo 22 lidí

Prodejce

Václav Kolář

Václav Kolář

Hlídací pes

Chcete dostávat emailem podobné nabídky prodeje bytů 3+1 v Mžanech?

Podobné nemovitosti