Remax Power 2

Prodej rodinného domu, Čím, 283 m2 (ID: 2819903)

Čím

5 400 000 Kč /za nemovitost HYPOTÉKA od 24 135 Kč /za měsíc
Prověřené firmy v Čími

Revize elektrických zařízení

Informace k domu

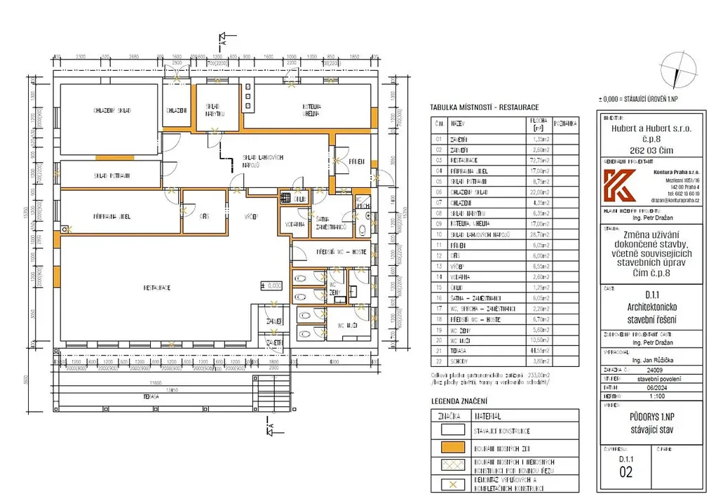
Nabízíme exkluzivně k prodeji dům s projektem na přestavbu na 3 bytové jednotky.
Nabízíme exkluzivně k prodeji Společnost s ručením omezeným, v jejímž výlučném vlastnictví je dům s pozemke, na katastru vedený jako občanská vybavenost. Tento projekt je součástí prodeje. Prodávají předloží účetnictví a zajistí audit.
Doposud byl objekt využíván jako restaurace. K domu patří terasa. Vlastní studna + kanalizace. Elektřina 230/400 W. Jistič 32 A.
Topení - elektrokotel a kotel na tuhá paliva s podavačem. Bojler.
Projekt na přestavbu na 3 bytové jednotky je v ceně.
Byty: A) 75,65 m2 + terasa 15,12 m2 + schody 3,69 m2
B) 73,40 m2 + schody 3,3 m2
C) byt správce 83,94 m2 + terasa 24,9 m2 + schody 2,4 m2
Pozemek celkem 718 m2.
Kompletní dokumentaci na přestavbu zašleme na vyžádání.

Parametry domu

Cena
5 400 000 Kč /za nemovitost Spočítat hypotéku
Aktualizováno
2. 3. 2026
Adresa
Čím
ID
N00138
Stavba
Cihlová
Stav objektu
Dobrý
Druh objektu
Samostatný
Lokalita objektu
Klidná část obce
Užitná plocha
283 m2
Zastavěná plocha
542 m2
Plocha pozemku
718 m2

Kontaktovat makléře

Realitní kancelář

Šolc REALITY, s.r.o.

Patočkova 1953/45, Praha 6

Chystáte se prodat nemovitost?
Pomůžeme Vám!

Máte zájem o tento dům?

Tímto, v souladu s nařízením Evropského parlamentu a Rady (EU) 2016/679, v platném znění, prohlašuji, že mi je alespoň 16 let a uděluji tak svůj souhlas se zpracováním zadaných údajů (jméno, telefon, e-mail, ip adresa) společnosti B3 Technology, s.r.o., IČ: 07330600, se sídlem Novostavby 126/23, 435 11 Lom (správce dat), za účelem předání dotazu z tohoto formuláře Vámi vybranému inzerentovi a zpětného kontaktování mé osoby. Osobní údaje bude správce zpracovávat manuálně i automaticky přímo prostřednictvím svých zaměstnanců. Informace předané tímto formulářem budou uloženy v databázi správce maximálně po dobu 10 let. Odvolání souhlasu s uložením a zpracováním poskytnutých dat lze e-mailem na info@realitypro.eu. V případě podezření na neoprávněné použití Vámi poskytnutých údajů máte právo předat podnět k šetření Úřadu pro ochranu osobních údajů. Více informací
Chystáte se prodat nemovitost?
Pomůžeme Vám!

Inzerát si prohlédlo 0 lidí

Prodejce

Jan Šolc

Jan Šolc

Hlídací pes

Chcete dostávat emailem podobné nabídky prodeje rodinných domů v Čími?

Podobné nemovitosti