Remax Power 2

Pronájem skladu, Příbram - Příbram I, Plynárenská, 1159 m2

Plynárenská, Příbram I

127 490 Kč /za měsíc Získejte výhodnou HYPOTÉKU

(+ DPH, + energie (cca 10tis Kč), + vratná kauce 1 nájem, neplatíte provizi RK)

Prověřené firmy v Příbrami

Revize elektrických zařízení

Informace k nemovitosti

Nabízíme moderní skladové a kancelářské prostory (1. NP a 2. NP) po rekonstrukci z roku 2014
vhodné pro výrobní, logistické či obchodní společnosti.

K nastěhování od 1. 4. 2026

Preferujeme pronájem celku (skladové i kancelářské prostory).

Základní údaje:

• Nájemné sklad: 110kč/m2
• Parkování: velký počet míst - dle dohody.
• Dopravní dostupnost: 4 minuty pěšky od zastávky Příbram, Plynárenská
• Minimální doba nájmu: 1rok s možností prodloužení
• Možnost úprav prostor dle potřeb nájemce: Ano

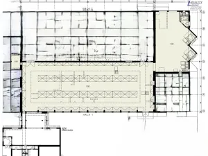
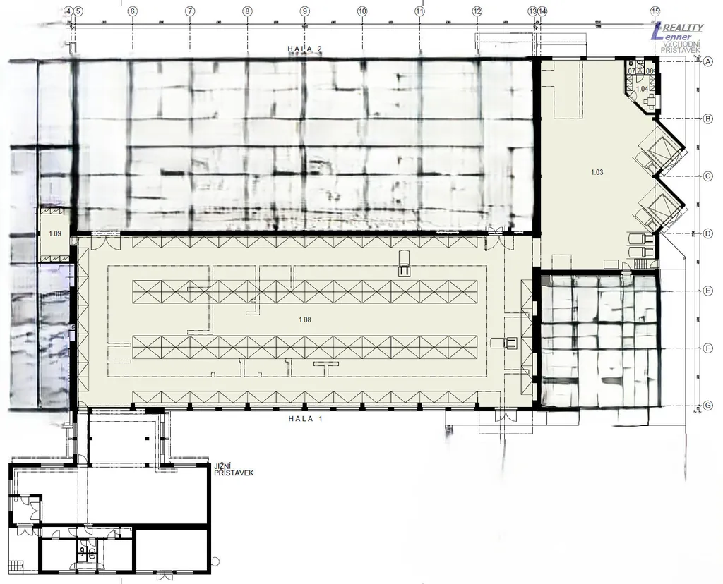
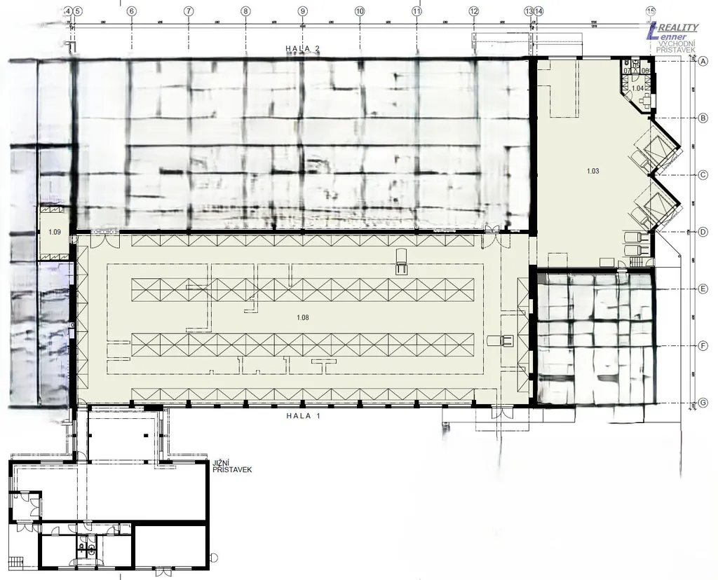
SKLADOVÉ PROSTORY - 1 159,45 m²

Parametry:

• Světla výška: 5m
• Typ podlahy skladu: házený a leštěný drákobeton
• Nosnost podlahy: 2000kg/ m2
• Vybavení: včetně regálového systému
• Zateplení: NE
• Nákladové vjezdy:
2x nakládací rampy SPEDOS vhodné pro vykládku přímo z auta
1x venkovní betovoná rampa s vraty

Volitelná možnost:
Jižní přístavek – 371,6 m²
Multifunkční prostor s infrastrukturou
Užitná plocha: 371,6 m²
Světlá výška: 3,0 m
Sociální zázemí: ano (kuchyňka, WC)
Vytápění: přípojka k dispozici
Voda: přípojka k dispozici

V případě zájmu volejte výhradně zprostředkovatele spravujícího tutu nemovitost.

Parametry nemovitosti

Cena
127 490 Kč /za měsíc
Poznámka k ceně
+ DPH, + energie (cca 10tis Kč), + vratná kauce 1 nájem, neplatíte provizi RK
Aktualizováno
1. 4. 2026
Adresa
Plynárenská, Příbram I
ID
N04105
Stavba
Cihlová
Stav objektu
Po rekonstrukci
Vybaveno
Ano
Typ objektu
Patrový
Lokalita objektu
Okraj obce
Vlastnictví
Osobní
Užitná plocha
1159 m2
Podlahová plocha
1159 m2
Třída energetické náročnosti
G - Mimořádně nehospodárná
Elektřina
230V
Plyn
Plynovod
Odpad
Veřejná kanalizace
Topení
Lokální elektrické, Jiné
Komunikace
Asfaltová
Telekomunikace
Telefon, Internet
Doprava
Vlak, Dálnice, Silnice, MHD, Autobus

Kontaktovat makléře

Realitní kancelář

Logo Reality Lenner

Reality Lenner

Gen. R. Tesaříka 256, Příbram

Chystáte se prodat nemovitost?
Pomůžeme Vám!

Máte zájem o tuto nemovistost?

Tímto, v souladu s nařízením Evropského parlamentu a Rady (EU) 2016/679, v platném znění, prohlašuji, že mi je alespoň 16 let a uděluji tak svůj souhlas se zpracováním zadaných údajů (jméno, telefon, e-mail, ip adresa) společnosti B3 Technology, s.r.o., IČ: 07330600, se sídlem Novostavby 126/23, 435 11 Lom (správce dat), za účelem předání dotazu z tohoto formuláře Vámi vybranému inzerentovi a zpětného kontaktování mé osoby. Osobní údaje bude správce zpracovávat manuálně i automaticky přímo prostřednictvím svých zaměstnanců. Informace předané tímto formulářem budou uloženy v databázi správce maximálně po dobu 10 let. Odvolání souhlasu s uložením a zpracováním poskytnutých dat lze e-mailem na info@realitypro.eu. V případě podezření na neoprávněné použití Vámi poskytnutých údajů máte právo předat podnět k šetření Úřadu pro ochranu osobních údajů. Více informací
Chystáte se prodat nemovitost?
Pomůžeme Vám!

Inzerát si prohlédlo 3 lidí

Prodejce

Tomáš Lenner

Tomáš Lenner

Hlídací pes

Chcete dostávat emailem podobné nabídky pronájmu skladů v Příbrami?

Podobné nemovitosti