Prodej rodinného domu, Jaroměř - Jakubské Předměstí, Palackého, 91 m2

Palackého, Jaroměř, Jakubské Předměstí

3 290 000 Kč /za nemovitost HYPOTÉKA od 14 704 Kč /za měsíc
Prověřené firmy v Jaroměři

Informace k domu

Dobrý den,
v Jaroměři máte možnost koupit rodinný dům, který nabízí dvě možná využití. První si můžete vyřešit vlastní bydlení nebo druhá možnost jako investice do dvou bytových jednotek se samostatnými vstupy.

Dům se nachází v ulici Palackého, nedaleko centra Jaroměře. I když se to na první pohled nezdá, interiér domu je předurčen ke kompletní rekonstrukci, oproti tomu fasáda, střecha a většina oken jsou po revitalizaci 10 let. Zastavěná plocha domu (64 m2) včetně ostatní plochy před domem činí 284 m2.
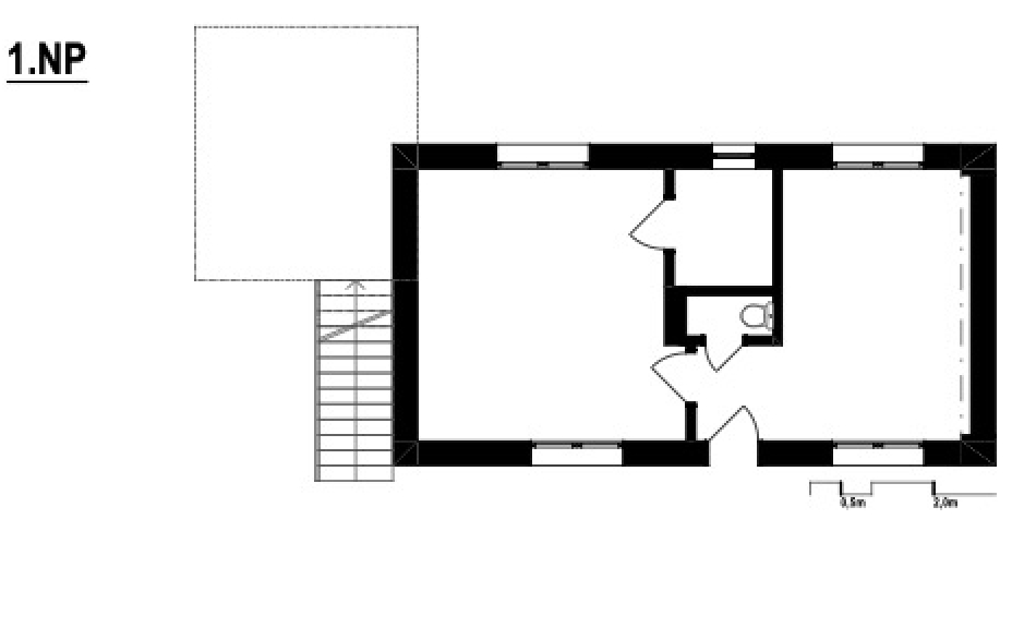
V domě jsou aktuálně připravené prostory pro dva samostatné byty s teoretickou dispozicí 1+1 nebo 2+kk. Spodní byt [37 m2] má klenuté stropy, je orientován na východ i západ, a má zastřešený vstup, který je vhodný k venkovnímu posezení. Zavedena voda, odpad i elektřina.

Přístup do horního bytu [54 m2] vede zastřešeným bočním schodištěm. Tento byt má okna orientovaná na západ a sever, není zde natažena voda a odpady. Lze zrekonstruovat a využít také půdní prostory, do kterých vede otevřený průlez.
Vnitřním schodištěm by bylo možné byty propojit v jeden funkční celek. Dům je částečně podsklepený.
Jaroměř kombinuje praktickou polohu s příjemným městským zázemím. Díky napojení na dálnici D11 se do Hradce Králové dostanete pohodlně během 15 minut, a díky obchvatu také pohodlně do Náchoda. Město nabízí široké spektrum služeb – školství, zdravotnictví, sport i kulturu – a jako bonus přidává atmosféru historické pevnosti Josefov, která je unikátní v celém regionu.

Stavební pozemek o rozloze 1 080 m2 který je za domem a je součástí listu vlastnictví, není součástí prodeje. V případě zájmu a slušné nabídky se prodeji této parcely majitel nebrání.

Pro sjednání prohlídky a zaslání více informací mě kontaktujte, budu se těšit.

Parametry domu

Cena
3 290 000 Kč /za nemovitost Spočítat hypotéku
Aktualizováno
26. 2. 2026
Adresa
Palackého, Jaroměř, Jakubské Předměstí
ID
18475
Stavba
Smíšená
Stav objektu
Před rekonstrukcí
Vybaveno
Ne
Typ objektu
Přízemní
Druh objektu
Řadový
Lokalita objektu
Centrum obce
Užitná plocha
91 m2
Zastavěná plocha
63 m2
Podlahová plocha
103 m2
Plocha pozemku
238 m2
Třída energetické náročnosti
G - Mimořádně nehospodárná
Elektřina
230V
Plyn
Plynovod
Odpad
Veřejná kanalizace
Komunikace
Asfaltová, Zpevněná
Doprava
Vlak, Dálnice, Silnice, Autobus
Voda
Vodovod
Sklep
Převod do OV

Kontaktovat makléře

Máte zájem o tento dům?

Tímto, v souladu s nařízením Evropského parlamentu a Rady (EU) 2016/679, v platném znění, prohlašuji, že mi je alespoň 16 let a uděluji tak svůj souhlas se zpracováním zadaných údajů (jméno, telefon, e-mail, ip adresa) společnosti B3 Technology, s.r.o., IČ: 07330600, se sídlem Novostavby 126/23, 435 11 Lom (správce dat), za účelem předání dotazu z tohoto formuláře Vámi vybranému inzerentovi a zpětného kontaktování mé osoby. Osobní údaje bude správce zpracovávat manuálně i automaticky přímo prostřednictvím svých zaměstnanců. Informace předané tímto formulářem budou uloženy v databázi správce maximálně po dobu 10 let. Odvolání souhlasu s uložením a zpracováním poskytnutých dat lze e-mailem na info@realitypro.eu. V případě podezření na neoprávněné použití Vámi poskytnutých údajů máte právo předat podnět k šetření Úřadu pro ochranu osobních údajů. Více informací
Chystáte se prodat nemovitost?
Pomůžeme Vám!

Inzerát si prohlédlo 0 lidí

Prodejce

Bc. Dominik Pařízek

Bc. Dominik Pařízek

Hlídací pes

Chcete dostávat emailem podobné nabídky prodeje rodinných domů v Jaroměři?

Podobné nemovitosti