Prodej bytu 3+1, Prostějov, Puškinova, 105 m2 (ID: 2815937)

Puškinova, Prostějov

Cena na vyžádání /za nemovitost Získejte výhodnou HYPOTÉKU

(uvedená cena je za id. 1/2 inzerované nemovitosti vč. příslušenství a je včetně odměny RK i právního servisu)

Prověřené firmy v Prostějově

Informace k bytu

Vážení klienti,

rádi Vám představujeme příležitost ke koupi 1/2 rodinného domu na ulici Puškinova v Prostějově.

Oproti běžné nabídce bytů v Prostějově nabízí tato nemovitost výrazně více – kromě samotného bytu je součástí prodeje také zahrada, garáž, podíl na prostorném sklepě i půdním prostoru. Dohromady tak získáte komfortní zázemí nejen pro velkou rodinu, ale i široké možnosti dalšího využití.

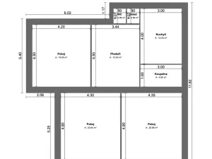
Hlavní částí nabídky je bytová jednotka o výměře cca 105 m² umístěná ve 2. NP zděného domu z 40. let 20. století. Dispozice zahrnuje obývací pokoj, ložnici, kuchyni, koupelnu, samostatné WC a komoru. Byt má původní, avšak udržovaný stav: dřevěné parkety, masivní dveře s obložkami a kastlová okna.

Celková plocha pozemku včetně zastavěné části a garáže činí 867 m². Nový vlastník tak získá nejen byt, ale také polovinu zahrady, která je aktuálně zatravněná a osázena několika ovocnými stromy. Součástí prodeje je rovněž zděná garáž, díky které se vyhnete hledání parkovacího místa na ulici.

V 1. podzemním podlaží se nachází velký sklep, ideální pro uskladnění všeho, co nechcete mít v bytě. Další velkou výhodou je půdní prostor v 3. NP, který kopíruje půdorys bytu a disponuje dostatečnou světlou výškou. Můžete jej využít jako sklad, případně upravit na další bytovou jednotku či rozšíření současného bytu.

Pokud hledáte nemovitost, která nabízí víc než jen byt, pak je tato nabídka určena právě Vám. Byt, sklep, půda s potenciálem, vlastní garáž a zahrada – to vše v klidné ulici s dobrou dostupností služeb, obchodů i možností k odpočinku.

S radostí Vás provedeme osobní prohlídkou a zodpovíme veškeré dotazy.

Parametry bytu

Cena
Cena na vyžádání Spočítat hypotéku
Poznámka k ceně
uvedená cena je za id. 1/2 inzerované nemovitosti vč. příslušenství a je včetně odměny RK i právního servisu
Aktualizováno
25. 2. 2026
Adresa
Puškinova, Prostějov
ID
2512PUS.B
Stavba
Cihlová
Stav objektu
Dobrý
Patro
2.
Vlastnictví
Osobní
Užitná plocha
105 m2
Balkon
Garáž
Sklep

Kontaktovat makléře

Máte zájem o tento byt?

Tímto, v souladu s nařízením Evropského parlamentu a Rady (EU) 2016/679, v platném znění, prohlašuji, že mi je alespoň 16 let a uděluji tak svůj souhlas se zpracováním zadaných údajů (jméno, telefon, e-mail, ip adresa) společnosti B3 Technology, s.r.o., IČ: 07330600, se sídlem Novostavby 126/23, 435 11 Lom (správce dat), za účelem předání dotazu z tohoto formuláře Vámi vybranému inzerentovi a zpětného kontaktování mé osoby. Osobní údaje bude správce zpracovávat manuálně i automaticky přímo prostřednictvím svých zaměstnanců. Informace předané tímto formulářem budou uloženy v databázi správce maximálně po dobu 10 let. Odvolání souhlasu s uložením a zpracováním poskytnutých dat lze e-mailem na info@realitypro.eu. V případě podezření na neoprávněné použití Vámi poskytnutých údajů máte právo předat podnět k šetření Úřadu pro ochranu osobních údajů. Více informací
Chystáte se prodat nemovitost?
Pomůžeme Vám!

Inzerát si prohlédlo 0 lidí

Prodejce

Ing. Lukáš Tomášek

Ing. Lukáš Tomášek

Hlídací pes

Chcete dostávat emailem podobné nabídky prodeje bytů 3+1 v Prostějově?

Podobné nemovitosti