Pronájem ubytování, Praha - Uhříněves, Přátelství, 626 m2

Přátelství, Praha 10, Uhříněves

175 280 Kč /za měsíc Získejte výhodnou HYPOTÉKU
Prověřené firmy v Praze 10

Stěhovací služby

Výkup a prodej starého nábytku

Informace k nemovitosti

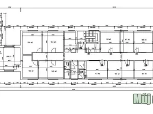
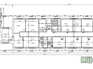
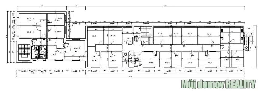
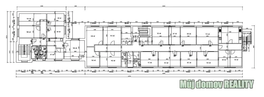
Pronájem ubytovacího zařízení 626 m, ul. Přátelství, Praha 22 Uhříněves.

Nabízíme k pronájmu samostatnou dvoupatrovou budovu o celkové užitné ploše 626 m v Praze 22 Uhříněves, ulice Přátelství. Objekt je vhodný zejména jako ubytovna pro zaměstnance, sídlo společnosti, administrativní budova, coworkingové centrum nebo kombinace kancelářských prostor a ubytování. Díky své dispozici umožňuje ubytování a poskytuje dostatek prostoru pro provoz firmy i zázemí zaměstnanců.

Budova disponuje celkem 26 pokoji a praktickým dispozičním řešením.

V přízemí se nachází 5 pokojů, kuchyň, 4 sprchy a 4 toalety. Součástí objektu je také sklepní část se 3 místnostmi, které lze využít jako skladové prostory, technické zázemí nebo další provozní místnosti. U objektu jsou k dispozici 3 venkovní parkovací místa.

V prvním patře se nachází další část budovy s 6 pokoji, kuchyní a sociálním zázemím, které tvoří 2 toalety se sprchou.

Z druhé strany budovy je samostatná část s vlastní dispozicí kuchyň, 15 pokojů, 4 toalety a 3 sprchy. Tato část umožňuje oddělený provoz, například pro jinou skupinu zaměstnanců, kanceláře nebo další ubytovací kapacitu.

Celková dispozice budovy umožňuje velmi flexibilní využití. Objekt lze rozdělit na několik provozních celků, kombinovat kanceláře s ubytováním zaměstnanců nebo vytvořit administrativní centrum společnosti s vlastním zázemím.

Nemovitost je ve smíšené konstrukci, v dobrém technickém stavu a připravena k okamžitému užívání. Objekt je pronajímán bez vybavení, nábytek a zařízení si nájemce zajišťuje dle vlastních potřeb. Energetická náročnost budovy je třídy G mimořádně nehospodárná.

Velkou výhodou je výborná dopravní dostupnost. Zastávka MHD se nachází přibližně 2 minuty chůze od budovy a zajišťuje rychlé spojení do centra Prahy i dalších městských částí. Lokalita nabízí kompletní občanskou vybavenost. V docházkové vzdálenosti se nachází supermarket Lidl, další obchody, restaurace, kavárny, služby i další komerční provozovny. V blízkosti jsou také zdravotnická zařízení, sportoviště, školy, pošta a další služby pro každodenní potřeby zaměstnanců či klientů.

Užitná plocha objektu činí 626 m. Budova je patrová a k dispozici ihned.

Měsíční nájemné: 175 280 Kč (cca 280 Kč/m)
Zálohy na služby: přibližně 20 000 Kč měsíčně
Vratná kauce: 175 000 Kč
Provize realitní kanceláři: 175 000 Kč + DPH

Kontakt
Realitní kancelář: Můj domov REALITY
Makléř: Lidiya Savynets
Viber / WhatsApp / Telegram: @LidiyaSyvynets


Pro více informací nebo sjednání osobní prohlídky mě neváhejte kontaktovat. Ráda vám tuto nemovitost osobně představím. Tento objekt může být stabilním a praktickým zázemím pro vaše podnikání v Praze.

Parametry nemovitosti

Cena
175 280 Kč /za měsíc
Aktualizováno
15. 4. 2026
Adresa
Přátelství, Praha 10, Uhříněves
ID
2152
Stavba
Smíšená
Stav objektu
Dobrý
Typ objektu
Patrový
Užitná plocha
626 m2
Plocha pozemku
626 m2
Bezbarierový přístup
Nízkoenergetický

Kontaktovat makléře

Máte zájem o tuto nemovistost?

Tímto, v souladu s nařízením Evropského parlamentu a Rady (EU) 2016/679, v platném znění, prohlašuji, že mi je alespoň 16 let a uděluji tak svůj souhlas se zpracováním zadaných údajů (jméno, telefon, e-mail, ip adresa) společnosti B3 Technology, s.r.o., IČ: 07330600, se sídlem Novostavby 126/23, 435 11 Lom (správce dat), za účelem předání dotazu z tohoto formuláře Vámi vybranému inzerentovi a zpětného kontaktování mé osoby. Osobní údaje bude správce zpracovávat manuálně i automaticky přímo prostřednictvím svých zaměstnanců. Informace předané tímto formulářem budou uloženy v databázi správce maximálně po dobu 10 let. Odvolání souhlasu s uložením a zpracováním poskytnutých dat lze e-mailem na info@realitypro.eu. V případě podezření na neoprávněné použití Vámi poskytnutých údajů máte právo předat podnět k šetření Úřadu pro ochranu osobních údajů. Více informací
Chystáte se prodat nemovitost?
Pomůžeme Vám!

Inzerát si prohlédlo 3 lidí

Prodejce

Lidiya Savynets

Lidiya Savynets

Hlídací pes

Chcete dostávat emailem podobné nabídky pronájmu ubytování v Praze 10?

Podobné nemovitosti