Prodej bytu 3+1, Slaný, Okružní, 67 m2

Okružní, Slaný

Prověřené firmy v Slaném

Informace k bytu

Světlý byt 3+1 s velkou lodžií a výhledem | možnost úpravy na 4kk

Jsou byty, které splní základní parametry.
A pak jsou byty, které vám dají pocit prostoru, světla a klidu hned po vstupu.

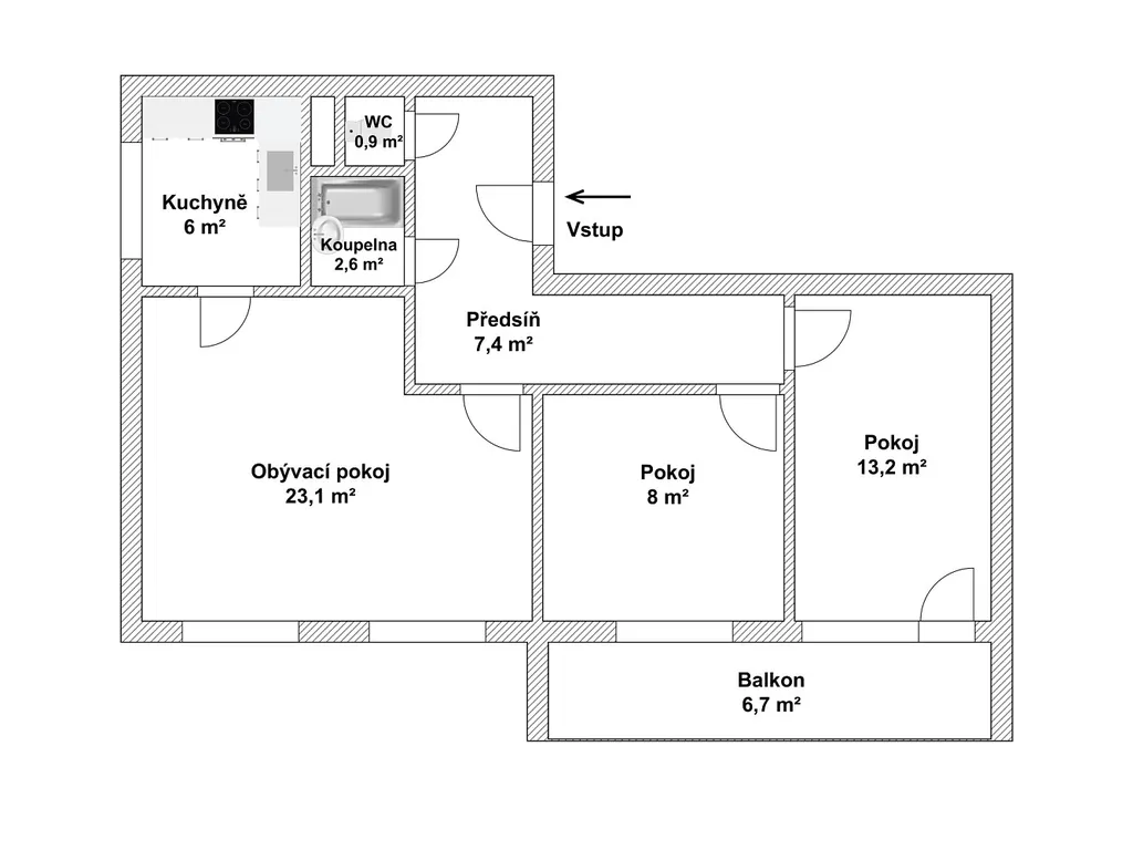
Tento byt o celkové užitkové ploše 75,7 m² (67 m² byt + 6,7 m² lodžie + sklep) se nachází v posledním patře skvěle udržovaného domu pod Slánskou horou – a právě kombinace výhledu, světla a praktické dispozice z něj dělá mimořádně příjemné místo pro život.

Co si zamilujete

-poslední patro – žádní sousedé nad vámi, více klidu
-velký obývací pokoj (23,1 m²) plný denního světla
-prostorná lodžie (6,7 m²) s otevřeným výhledem na město i zeleň
-tři samostatné pokoje přístupné z centrální předsíně
-komora přímo naproti bytu + sklep v suterénu
-velmi nízké měsíční náklady (cca 2.000 Kč + energie)

Lodžie je skutečným bonusem – dostatek prostoru pro posezení, ranní kávu i klidné večery s výhledem, který vám nikdo nevezme.

Dispozice, která dává smysl – dnes i do budoucna

Byt je v udržovaném původním stavu. Můžete se ihned nastěhovat a postupně jej přizpůsobit svému stylu, nebo jej rovnou proměnit v moderní bydlení podle vlastních představ.

Velkou výhodou jsou nenosné příčky a poloha kuchyně s velkým oknem. Dispozice umožňuje poměrně snadnou úpravu na plnohodnotné 4kk – například přesunutím kuchyňské linky do obývací části ke stěně sousedící s koupelnou.

Získáte tak:

-vzdušný obývací prostor s kuchyní
-tři samostatné ložnice / dětské pokoje / pracovnu

Možnost úpravy na 4kk a rekonstrukce podle vlastního návrhu představuje výrazný potenciál růstu budoucí hodnoty.

Stav bytu

Byt je v původním, pečlivě udržovaném stavu – koupelna i kuchyň jsou funkční, ale ponechávají prostor pro modernizaci dle vlastních představ.

Pro někoho to znamená možnost okamžitého bydlení, pro jiného příležitost vytvořit si nový interiér přesně podle svého vkusu bez kompromisů.

Dům bez starostí

Dům je udržovaný a prošel důležitými rekonstrukcemi - zateplení a nová fasáda, plastové stoupačky, renovovaný výtah, opravená střecha. Bydlení je zde klidné a příjemné.

Lokalita, která spojuje přírodu a dostupnost

Bydlení přímo pod Slánskou horou nabízí kombinaci zeleně a plné občanské vybavenosti. Obchod, autobus i vlak jsou v docházkové vzdálenosti. Rychlé napojení na směr Praha je samozřejmostí.

Je to místo, kde můžete ráno vyrazit do přírody a odpoledne být během chvilky na cestě do hlavního města.

Pro koho je byt ideální?

-mladý pár plánující rodinu
-rodinu, která ocení prostor i možnost budoucí úpravy na 4kk
-investora hledajícího stabilní byt s potenciálem

Parametry bytu

Cena
5 290 000 Kč Spočítat hypotéku
Aktualizováno
17. 2. 2026
Adresa
Okružní, Slaný
ID
23
Vlastnictví
Osobní
Užitná plocha
67 m2
Třída energetické náročnosti
D - Méně úsporná
Ukazatel energetické náročnosti
200 kWh/m2 za rok

Kontaktovat makléře

Máte zájem o tento byt?

Tímto, v souladu s nařízením Evropského parlamentu a Rady (EU) 2016/679, v platném znění, prohlašuji, že mi je alespoň 16 let a uděluji tak svůj souhlas se zpracováním zadaných údajů (jméno, telefon, e-mail, ip adresa) společnosti B3 Technology, s.r.o., IČ: 07330600, se sídlem Novostavby 126/23, 435 11 Lom (správce dat), za účelem předání dotazu z tohoto formuláře Vámi vybranému inzerentovi a zpětného kontaktování mé osoby. Osobní údaje bude správce zpracovávat manuálně i automaticky přímo prostřednictvím svých zaměstnanců. Informace předané tímto formulářem budou uloženy v databázi správce maximálně po dobu 10 let. Odvolání souhlasu s uložením a zpracováním poskytnutých dat lze e-mailem na info@realitypro.eu. V případě podezření na neoprávněné použití Vámi poskytnutých údajů máte právo předat podnět k šetření Úřadu pro ochranu osobních údajů. Více informací
Chystáte se prodat nemovitost?
Pomůžeme Vám!

Inzerát si prohlédlo 0 lidí

Prodejce

NELČA REALITY s.r.o.

NELČA REALITY s.r.o.

Hlídací pes

Chcete dostávat emailem podobné nabídky prodeje bytů 3+1 v Slaném?

Podobné nemovitosti