Prodej bytu 2+1, Suchdol nad Lužnicí, sídl. 9. května, 57 m2

sídl. 9. května, Suchdol nad Lužnicí

Prověřené firmy v Suchdole nad Lužnicí

Výkup a prodej starého nábytku

Informace k bytu

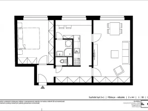
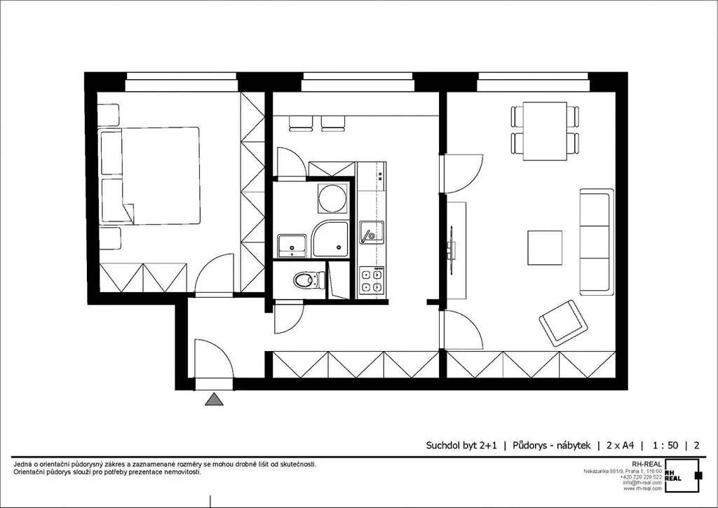
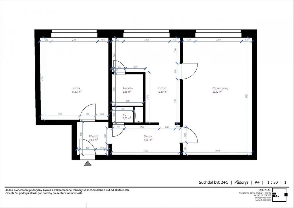
Prodej bytu 2+1 v Suchdole nad Lužnicí

V zastoupení majitele Vám představujeme pohodlné a klidné bydlení, kde máte vše, co potřebujete, na dosah ruky. Tento prostorný byt 2+1 (57 m²) v Suchdole nad Lužnicí splňuje všechny požadavky na komfortní rodinné bydlení i výbornou investici do budoucnosti.

Byt se nachází ve 2. patře čtyřpatrového domu a nabízí dobré rozložení místností, které zajistí pohodlí všem členům domácnosti.

Hlavní obytný prostor je tvořen světlým a vzdušným obývacím pokojem, který se stane ideálním místem pro rodinná setkání nebo večery u filmu. Díky velkému oknu do něj proudí dostatek denního světla, což vytváří příjemnou a útulnou atmosféru. Ložnice je též dostatečně prostorná a výborně prosvětlená.
Koupelna včetně odděleného WC přispívá k vyššímu komfortu bydlení.

Celý dům prošel revitalizací, díky čemuž nabízí nejen příjemné prostředí, ale i nižší náklady na energie.

Plastová okna a dveře

Nový, prostorný výtah

Parkování přímo před domem

Byt se nachází v klidné části Suchdola nad Lužnicí, kde máte vše důležité jen pár kroků od domu.

Některé fotografie jsou pouze vizualizací.

Tento byt je perfektní volbou pro rodinu, pár, ale i jednotlivce. Pokud hledáte místo, kde se budete cítit opravdu jako doma, pak je tato nabídka přesně pro vás.

Domluvte si prohlídku a přijďte se sami přesvědčit.

Parametry bytu

Cena
3 690 000 Kč Spočítat hypotéku
Aktualizováno
15. 2. 2026
Adresa
sídl. 9. května, Suchdol nad Lužnicí
ID
35
Stavba
Panelová
Vybaveno
Ne
Vlastnictví
Osobní
Užitná plocha
57 m2
Třída energetické náročnosti
G - Mimořádně nehospodárná

Kontaktovat makléře

Máte zájem o tento byt?

Tímto, v souladu s nařízením Evropského parlamentu a Rady (EU) 2016/679, v platném znění, prohlašuji, že mi je alespoň 16 let a uděluji tak svůj souhlas se zpracováním zadaných údajů (jméno, telefon, e-mail, ip adresa) společnosti B3 Technology, s.r.o., IČ: 07330600, se sídlem Novostavby 126/23, 435 11 Lom (správce dat), za účelem předání dotazu z tohoto formuláře Vámi vybranému inzerentovi a zpětného kontaktování mé osoby. Osobní údaje bude správce zpracovávat manuálně i automaticky přímo prostřednictvím svých zaměstnanců. Informace předané tímto formulářem budou uloženy v databázi správce maximálně po dobu 10 let. Odvolání souhlasu s uložením a zpracováním poskytnutých dat lze e-mailem na info@realitypro.eu. V případě podezření na neoprávněné použití Vámi poskytnutých údajů máte právo předat podnět k šetření Úřadu pro ochranu osobních údajů. Více informací
Chystáte se prodat nemovitost?
Pomůžeme Vám!

Inzerát si prohlédlo 9 lidí

Prodejce

Petr Mašek

Petr Mašek

Hlídací pes

Chcete dostávat emailem podobné nabídky prodeje bytů 2+1 v Suchdole nad Lužnicí?

Podobné nemovitosti