Prodej pozemku pro bydlení, Police nad Metují, 244 m2

Police nad Metují

970 000 Kč /za nemovitost HYPOTÉKA od 4 335 Kč /za měsíc
Prověřené firmy v Polici nad Metují

Pojištění a finance

Informace k pozemku

Hledáš projekt, který dává ekonomický smysl a zároveň ti umožní vytvořit vlastní bydlení? V Polici nad Metují ti nabízím stavební parcelu o velikosti 244 m² s hotovou architektonickou studií domu, který kombinuje soukromí, funkčnost a výnosový potenciál.
Nejde jen o pozemek. Kupuješ připravený koncept.
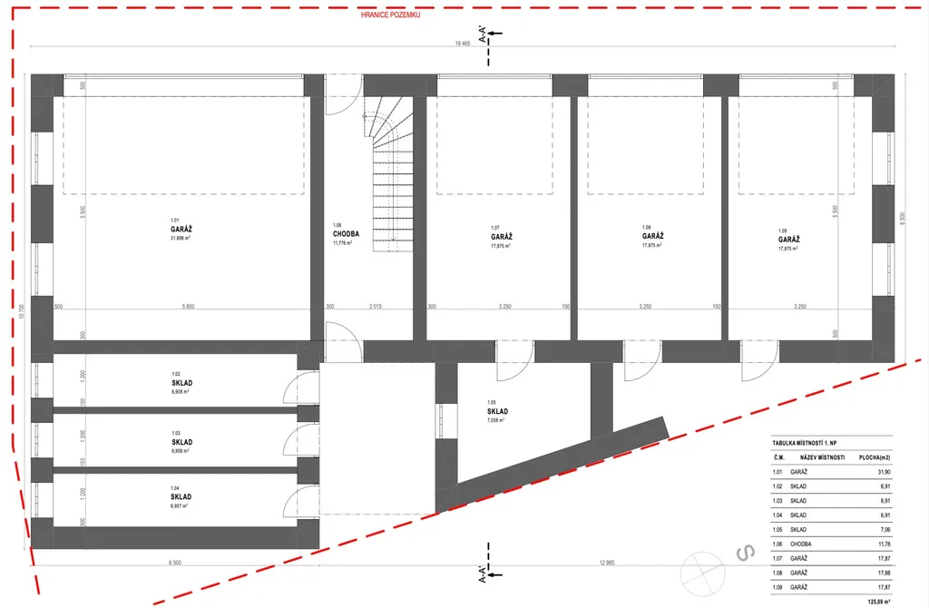
Parcela má lichoběžníkový tvar (20,7 m × 14,5 m × 22,9 m × 7,9 m) a elektřinu i vodu přímo na pozemku. To hlavní je ale promyšlená studie dvoupodlažního domu se zastavěnou plochou 125 m².
V přízemí jsou navrženy čtyři garáže a čtyři skladové prostory. Můžeš je pronajímat, využít pro podnikání, nebo si vytvořit zázemí, které ti bude dlouhodobě generovat pravidelný příjem.
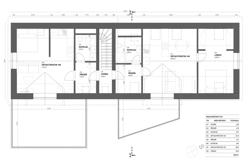
Horní patro je řešeno jako dvě samostatné bytové jednotky se společnou chodbou:
Apartmán 1: 36,01 m² + terasa cca 26,5 m²
Apartmán 2: 52,59 m² + terasa cca 12 m²
Každý byt má vlastní terasu. A právě venkovní prostor dnes rozhoduje – při pronájmu i při budoucím prodeji.
Máš několik možností, jak projekt využít:
- bydlet v jednom bytě a druhý pronajímat,
- pronajímat celý dům,
- kombinovat dlouhodobý a krátkodobý pronájem,
- realizovat menší developerský záměr s rozumným vstupním kapitálem.
Tohle je projekt, který ti umožní spojit vlastní bydlení s investicí. Dává smysl ekonomicky i prakticky.
Pokud chceš znát detaily studie a probrat konkrétní možnosti využití, rád ti je osobně představím.

Parametry pozemku

Cena
970 000 Kč /za nemovitost Spočítat hypotéku
Aktualizováno
9. 2. 2026
Adresa
Police nad Metují
ID
060325
Stav objektu
Velmi dobrý
Vybaveno
Ne
Lokalita objektu
Centrum obce
Plocha pozemku
244 m2
Elektřina
230V
Komunikace
Asfaltová
Doprava
Vlak, Silnice, Autobus
Voda
Vodovod
Bezbarierový přístup

Kontaktovat makléře

Realitní kancelář

Reality TU

Havlíčkova 117, Trutnov

Chystáte se prodat nemovitost?
Pomůžeme Vám!

Máte zájem o tento pozemek?

Tímto, v souladu s nařízením Evropského parlamentu a Rady (EU) 2016/679, v platném znění, prohlašuji, že mi je alespoň 16 let a uděluji tak svůj souhlas se zpracováním zadaných údajů (jméno, telefon, e-mail, ip adresa) společnosti B3 Technology, s.r.o., IČ: 07330600, se sídlem Novostavby 126/23, 435 11 Lom (správce dat), za účelem předání dotazu z tohoto formuláře Vámi vybranému inzerentovi a zpětného kontaktování mé osoby. Osobní údaje bude správce zpracovávat manuálně i automaticky přímo prostřednictvím svých zaměstnanců. Informace předané tímto formulářem budou uloženy v databázi správce maximálně po dobu 10 let. Odvolání souhlasu s uložením a zpracováním poskytnutých dat lze e-mailem na info@realitypro.eu. V případě podezření na neoprávněné použití Vámi poskytnutých údajů máte právo předat podnět k šetření Úřadu pro ochranu osobních údajů. Více informací
Chystáte se prodat nemovitost?
Pomůžeme Vám!
Theleadway banner

Inzerát si prohlédlo 5 lidí

Prodejce

Bc. Jan Špetla

Bc. Jan Špetla

Hlídací pes

Chcete dostávat emailem podobné nabídky prodeje pozemků pro bydlení v Polici nad Metují?

Podobné nemovitosti