Prodej bytu 1+kk, Praha - Dolní Měcholupy, Honzíkova, 25 m2 (ID: 2796190)

Honzíkova, Praha, Dolní Měcholupy

1 890 000 Kč /za nemovitost HYPOTÉKA od 8 447 Kč /za měsíc
Prověřené firmy v Praze 10

Stěhovací služby

Výkup a prodej starého nábytku

Informace k bytu

Nabízíme postoupení nového družstevního bytu 1+kk v projektu Malý háj XIII (dům G6), ulice Honzíkova úspěšného developera FINEP.

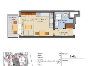
Byt 1+kk o velikosti 25,3 m2 + balkón 4,7 m2 se nachází v 1. nadzemním podlaží (z celkových šesti pater) s orientací na západ.

Dispozice bytu: obývací pokoj s kuchyňským koutem, koupelna s WC, chodba, balkon.

Cena za postoupení bytu: 1 890 000 Kč (z vlastních zdrojů)
Doplatek za byt, který budete splácet formou anuity: 3 842 510 Kč (splácí se až po kolaudaci) - neprokazujete příjmy, nepotřebujete hypotéku.

Anuita se splácí až po převzetí dokončeného bytu (předpoklad kolaudace 03/2028).
Aktuálně měsíční splátka anuity za byt činí 21 771 Kč.

V době výstavby nelze převést do osobního vlastnictví.

Garážové stání příslušící k bytu za příplatek.

Skvělá občanská vybavenost: Retail park Štěrboholy (drogerie, Penny market, pekárna, restaurace),
Lidl, lékárna, OC Europark (Globus restaurace, hypermarket, DM drogerie, knihkupectví).
Pohybové studio a kavárna, několik dětských hřišť, venkovní posilovna.
Park Hrušov, rybník Slatina, cyklostezka.

Parametry bytu

Cena
1 890 000 Kč /za nemovitost Spočítat hypotéku
Aktualizováno
3. 2. 2026
Adresa
Honzíkova, Praha, Dolní Měcholupy
ID
1200
Stavba
Cihlová
Stav objektu
Projekt
Patro
1. z 6
Vybaveno
Ne
Vlastnictví
Družstevní
Užitná plocha
25 m2
Podlahová plocha
25 m2
Topení
Ústřední dálkové
Komunikace
Asfaltová
Doprava
MHD
Voda
Vodovod
Balkon
Garáž
Sklep
Výtah
Bezbarierový přístup
Převod do OV

Kontaktovat makléře

Máte zájem o tento byt?

Tímto, v souladu s nařízením Evropského parlamentu a Rady (EU) 2016/679, v platném znění, prohlašuji, že mi je alespoň 16 let a uděluji tak svůj souhlas se zpracováním zadaných údajů (jméno, telefon, e-mail, ip adresa) společnosti B3 Technology, s.r.o., IČ: 07330600, se sídlem Novostavby 126/23, 435 11 Lom (správce dat), za účelem předání dotazu z tohoto formuláře Vámi vybranému inzerentovi a zpětného kontaktování mé osoby. Osobní údaje bude správce zpracovávat manuálně i automaticky přímo prostřednictvím svých zaměstnanců. Informace předané tímto formulářem budou uloženy v databázi správce maximálně po dobu 10 let. Odvolání souhlasu s uložením a zpracováním poskytnutých dat lze e-mailem na info@realitypro.eu. V případě podezření na neoprávněné použití Vámi poskytnutých údajů máte právo předat podnět k šetření Úřadu pro ochranu osobních údajů. Více informací
Chystáte se prodat nemovitost?
Pomůžeme Vám!

Inzerát si prohlédlo 0 lidí

Prodejce

Tomáš Kučera

Tomáš Kučera

Hlídací pes

Chcete dostávat emailem podobné nabídky prodeje bytů 1+kk v Praze 10?

Podobné nemovitosti