Prodej rodinného domu, Kunštát, Sadová, 95 m2 (ID: 2783544)

Sadová, Kunštát

6 507 000 Kč /za nemovitost HYPOTÉKA od 29 082 Kč /za měsíc

(včetně DPH, včetně provize, včetně právního servisu)

Prověřené firmy v Kunštátu

Informace k domu

Rezidence Sadová - Kunštát

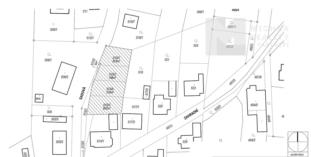
Prodej rodinného domu o dispozici 4+kk v Kunštátu, v atraktivní lokalitě, na ulici Sadová, s pozemkem o rozloze 218 m².

Hledáte klidné bydlení v srdci přírody, ale zároveň s dobrou dostupností? Nabízíme Vám jedinečný rodinný dům v krásném městečku Kunštát, na ulici Sadová. Tento moderní dům bude tvořit spojení pohodlí, funkčnosti a nabídne vlastní pozemek o velikosti 218 m², který je ideální pro rodinný život i relaxaci.

Co vás čeká?

Zahájení výstavby 12/2024

Dům bude primárně realizován do fáze rozšířené hrubé stavby s možností dokončení na klíč, dle rozhodnutí zájemce.

Specifikaci rozšířené hrubé stavby či standardů ve variantě kompletního dokončení rádi na žádost upřesníme.

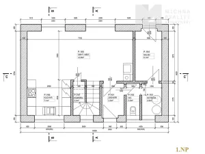
Dispozice 4+kk - viz. foto - půdorys.
Projektovou dokumentaci poskytneme na vyžádání.
Dům má vlastní zahradu s terasou, která je skvělá pro grilování, dětské hry, zahradničení nebo relaxaci a její výhodou je snadná údržba.
Moderní provedení: Dům bude postaven v moderním stylu s důrazem na kvalitu a nízké provozní náklady díky energeticky úsporným technologiím.

Lokalita Kunštát:

Příroda na dosah: Obklopeno krásnou krajinou, městečko Kunštát nabízí bohaté možnosti pro turistiku, cyklistiku nebo procházky v přírodě.
Kompletní občanská vybavenost: Ve městě naleznete školu, školku, lékaře, obchody, restaurace i sportovní zázemí – vše, co potřebujete pro pohodlný život.
Výborná dopravní dostupnost: Kunštát má dobré spojení do větších měst, jako je Brno, Blansko nebo Boskovice.

Proč si vybrat tento dům?

Dům v tomto projektu kombinuje moderní bydlení s klidným prostředím. Ideální pro rodiny, páry i jednotlivce hledající pohodlný domov v atraktivní lokalitě.

Neváhejte a přijďte si vybrat svůj vysněný dům!

Pro více informací neváhejte kontaktovat realitního makléře - Lukáš Michna
MICHNA REALITY & PARTNEŘI, s.r.o.
Koordinaci financování klientů v tomto projektu zajišťujeme prostřednictvím našeho obchodního partnera - Gepard Finance a.s., pobočka Brno - Květná.

Parametry domu

Cena
6 507 000 Kč /za nemovitost Spočítat hypotéku
Poznámka k ceně
včetně DPH, včetně provize, včetně právního servisu
Aktualizováno
21. 1. 2026
Adresa
Sadová, Kunštát
ID
130033
Stavba
Cihlová
Stav objektu
Ve výstavbě
Druh objektu
Řadový
Lokalita objektu
Klidná část obce
Užitná plocha
95 m2
Podlahová plocha
107 m2
Plocha pozemku
218 m2
Třída energetické náročnosti
B - Velmi úsporná
Ukazatel energetické náročnosti
72 kWh/m2 za rok
Elektřina
230V, 400V
Odpad
Veřejná kanalizace
Doprava
Silnice, Autobus
Voda
Vodovod
Topné těleso
Podlahové vytápění, Krb
Zdroj topení
Tepelné čerpadlo, Krb
Zdroj teplé vody
Tepelné čerpadlo
Parkování

Kontaktovat makléře

Máte zájem o tento dům?

Tímto, v souladu s nařízením Evropského parlamentu a Rady (EU) 2016/679, v platném znění, prohlašuji, že mi je alespoň 16 let a uděluji tak svůj souhlas se zpracováním zadaných údajů (jméno, telefon, e-mail, ip adresa) společnosti B3 Technology, s.r.o., IČ: 07330600, se sídlem Novostavby 126/23, 435 11 Lom (správce dat), za účelem předání dotazu z tohoto formuláře Vámi vybranému inzerentovi a zpětného kontaktování mé osoby. Osobní údaje bude správce zpracovávat manuálně i automaticky přímo prostřednictvím svých zaměstnanců. Informace předané tímto formulářem budou uloženy v databázi správce maximálně po dobu 10 let. Odvolání souhlasu s uložením a zpracováním poskytnutých dat lze e-mailem na info@realitypro.eu. V případě podezření na neoprávněné použití Vámi poskytnutých údajů máte právo předat podnět k šetření Úřadu pro ochranu osobních údajů. Více informací
Chystáte se prodat nemovitost?
Pomůžeme Vám!

Inzerát si prohlédlo 0 lidí

Prodejce

Lukáš Michna

Lukáš Michna

Hlídací pes

Chcete dostávat emailem podobné nabídky prodeje rodinných domů v Kunštátu?

Podobné nemovitosti