Prodej rodinného domu, Unhošť, Dědkův mlýn, 72 m2

Dědkův Mlýn, Unhošť

6 950 000 Kč /za nemovitost HYPOTÉKA od 31 062 Kč /za měsíc

(Akce Zvýhodněná koupě)

Prověřené firmy v Unhošti

Informace k domu

Na tuto nemovitost se vztahuje akce Realitní a investiční skupiny STING se zvýhodněnou koupí. Podrobnosti akce jsou zveřejněny v podmínkách [na webu skupiny STING]. Pro bližší informace o možné slevě volejte makléři.

SLEVA: Rozestavěný dům s velkým pozemkem (1 151 m²), 20 min od Prahy v lukrativní oblasti

Hledáte místo v přírodě, kde si vytvoříte domov přesně podle sebe a přitom budete za 20 minut v Praze? Nabízíme rozestavěný dům na pozemku o velikosti 1 151 m² v klidné a vyhledávané lokalitě u Dědkova Mlýna v Unhošti.
Nemovitost nabízí nejen soukromí, výhledy do zeleně a velkorysý prostor, ale také možnost dokončení přesně podle vašich představ.

Tato nemovitost představuje ideální kombinaci soukromí, přírody a výborné dostupnosti do Prahy, která je vzdálena pouhých 20 km. Tady nekupujete jen stavbu. Kupujete si místo, kde můžete zpomalit, nadechnout se a vytvořit si domov přesně podle svých představ.

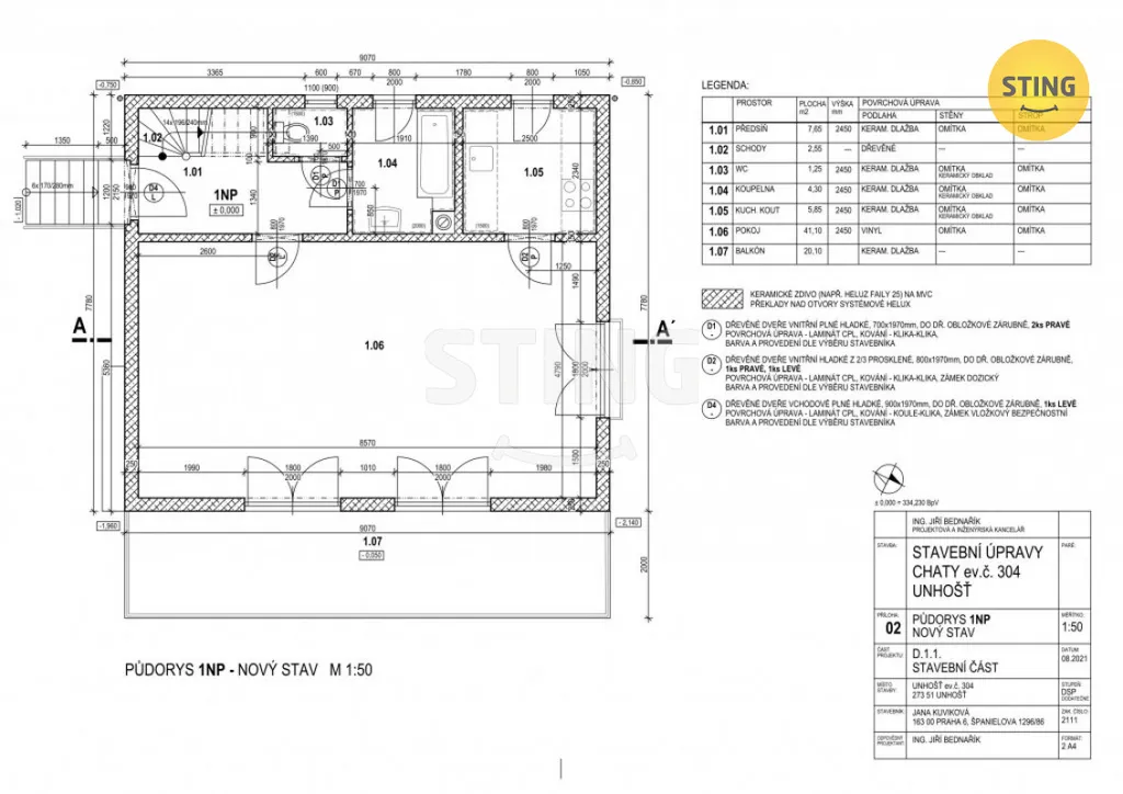
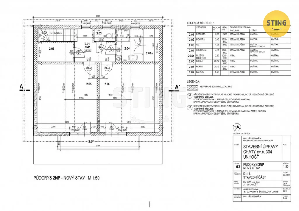
Dům s č. ev. o zastavěné ploše 72 m² je ve fázi hrubé stavby z roku 2022 a disponuje platným stavebním povolením. Nabízí promyšlenou dispozici s důrazem na světlo, výhledy a funkční uspořádání prostoru.

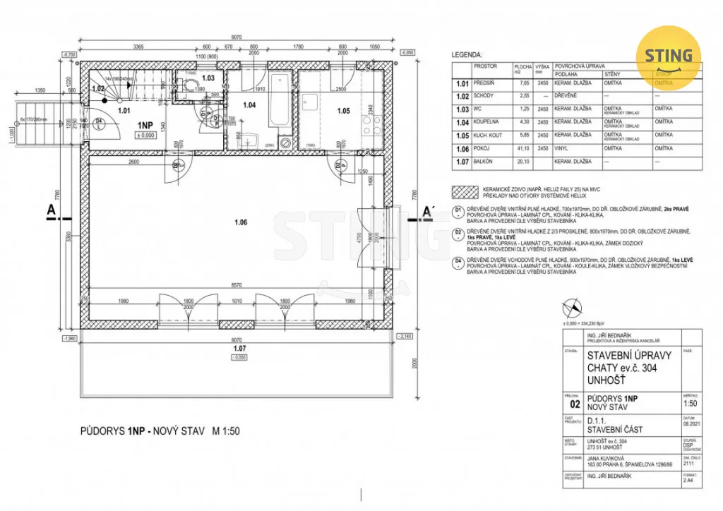
Přízemí je navrženo jako otevřený obytný prostor s přirozeným světlem a výhledem do okolní krajiny, s místem pro kuchyňský kout a koupelnu s toaletou.
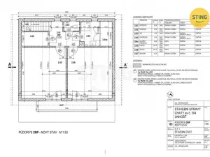
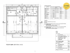
V podkroví je připravena dispozice pro dvě ložnice, šatnu a druhou koupelnu.

Nemovitost se nachází na dvou navazujících parcelách:
Hlavní pozemek (467 m²) s rozestavěným domem a dvěma dřevníky a druhý pozemek sloužící jako zahrada a příjezdová cesta.
Součástí je také garáž situovaná ve svahu s přístupem z obecní komunikace.
Inženýrské sítě: studna, dotažené odpady, příprava na ČOV, přívod elektřiny
Pozemky jsou v osobním vlastnictví a přístup zajištěn z obecní komunikace.

Oblast Dědkova Mlýna je dlouhodobě vyhledávaná pro své přírodní okolí, lesy a možnosti aktivního odpočinku. Nabízí klidné prostředí s minimem ruchu a dostatkem soukromí.

Zároveň zde dochází k postupné proměně rekreační oblasti na lokalitu vhodnou pro celoroční bydlení, což zvyšuje dlouhodobý investiční potenciál nemovitosti.

Kontaktujte mě a domluvíme prohlídku. Do konce dubna 2026 nabízíme prostřednictvím našeho partnera úrokové sazby od 4,69 % p.a. Více informací Vám sdělí náš specialista na prohlídce.

Parametry domu

Cena
6 950 000 Kč /za nemovitost Spočítat hypotéku
Poznámka k ceně
Akce Zvýhodněná koupě
Aktualizováno
17. 4. 2026
Adresa
Dědkův Mlýn, Unhošť
ID
134156
Stavba
Cihlová
Stav objektu
Ve výstavbě
Typ objektu
Patrový
Druh objektu
Samostatný
Lokalita objektu
Klidná část obce
Užitná plocha
72 m2
Zastavěná plocha
72 m2
Podlahová plocha
72 m2
Plocha pozemku
1151 m2
Komunikace
Neupravená
Garáž

Kontaktovat makléře

Máte zájem o tento dům?

Tímto, v souladu s nařízením Evropského parlamentu a Rady (EU) 2016/679, v platném znění, prohlašuji, že mi je alespoň 16 let a uděluji tak svůj souhlas se zpracováním zadaných údajů (jméno, telefon, e-mail, ip adresa) společnosti B3 Technology, s.r.o., IČ: 07330600, se sídlem Novostavby 126/23, 435 11 Lom (správce dat), za účelem předání dotazu z tohoto formuláře Vámi vybranému inzerentovi a zpětného kontaktování mé osoby. Osobní údaje bude správce zpracovávat manuálně i automaticky přímo prostřednictvím svých zaměstnanců. Informace předané tímto formulářem budou uloženy v databázi správce maximálně po dobu 10 let. Odvolání souhlasu s uložením a zpracováním poskytnutých dat lze e-mailem na info@realitypro.eu. V případě podezření na neoprávněné použití Vámi poskytnutých údajů máte právo předat podnět k šetření Úřadu pro ochranu osobních údajů. Více informací
Chystáte se prodat nemovitost?
Pomůžeme Vám!

Inzerát si prohlédlo 18 lidí

Prodejce

Miroslava Tichá

Miroslava Tichá

Hlídací pes

Chcete dostávat emailem podobné nabídky prodeje rodinných domů v Unhošti?

Podobné nemovitosti