Prodej pozemku pro bydlení, Praha - Ruzyně, Unhošťská, 1119 m2

Unhošťská, Praha, Ruzyně

23 000 Kč /za metr čtvereční HYPOTÉKA od 103 Kč /za měsíc
Prověřené firmy v Praze 6

Stěhovací služby

Výkup a prodej starého nábytku

Informace k pozemku

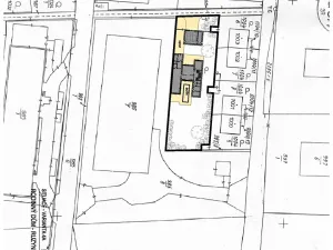
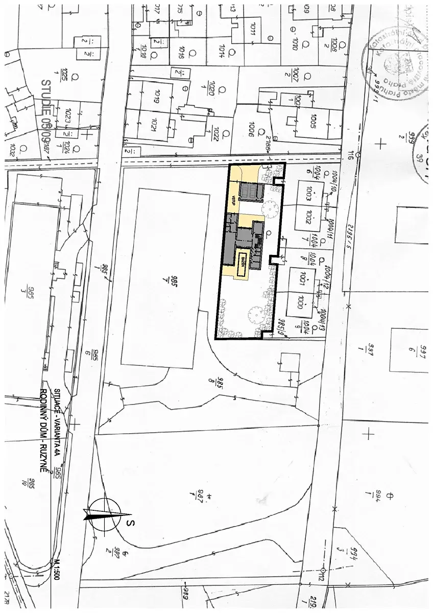
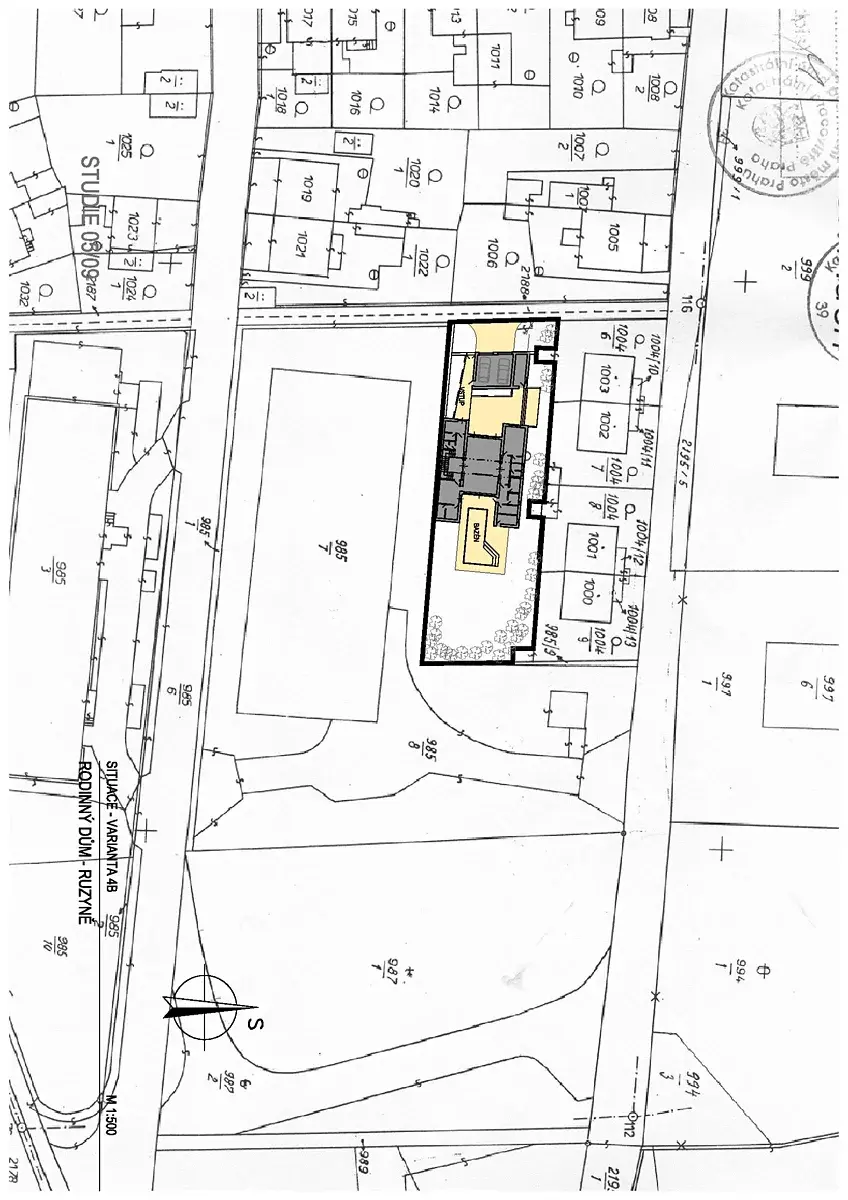
Nabízíme k prodeji stavební pozemek v atraktivní části Prahy 6 – Ruzyně, v lokalitě u ulice Unhoštská. Pozemek parc. č. 1004/5 (k. ú. Ruzyně) má celkovou výměru 1 119 m² a je vhodný pro výstavbu nadstandardního rodinného domu nebo více menších obytných objektů (dle možností a regulativů území).

Lokalita se vyznačuje klidným prostředím, přirozeným charakterem a velmi příjemnou sousedskou atmosférou – okolní sousedé jsou vstřícní a ohleduplní, což výrazně přispívá ke komfortu budoucího bydlení. V blízkosti se nachází vodní nádrž Jiviny a zároveň je zajištěna výborná dopravní dostupnost.

Hlavní výhody

výměra 1 119 m²

Praha 6 – Ruzyně, ulice Unhoštská

klidná rezidenční lokalita s perspektivou dalšího rozvoje (luxusní bydlení)

vstřícní a příjemní sousedé

v dosahu inženýrské sítě: elektřina, voda, plyn, odpad (v blízkosti pozemku)

Prodej a cena

Prodej bude realizován formou aukce.
Vyvolávací cena: od 23 000 Kč/m².

Důvod prodeje: probíhá dořešení majetkových vztahů mezi spoluvlastníky (v řešení), prodej bude uskutečněn po jejich vyřešení.

Parametry pozemku

Cena
23 000 Kč /za metr čtvereční Spočítat hypotéku
Aktualizováno
9. 1. 2026
Adresa
Unhošťská, Praha, Ruzyně
Plocha pozemku
1119 m2

Kontaktovat makléře

Máte zájem o tento pozemek?

Tímto, v souladu s nařízením Evropského parlamentu a Rady (EU) 2016/679, v platném znění, prohlašuji, že mi je alespoň 16 let a uděluji tak svůj souhlas se zpracováním zadaných údajů (jméno, telefon, e-mail, ip adresa) společnosti B3 Technology, s.r.o., IČ: 07330600, se sídlem Novostavby 126/23, 435 11 Lom (správce dat), za účelem předání dotazu z tohoto formuláře Vámi vybranému inzerentovi a zpětného kontaktování mé osoby. Osobní údaje bude správce zpracovávat manuálně i automaticky přímo prostřednictvím svých zaměstnanců. Informace předané tímto formulářem budou uloženy v databázi správce maximálně po dobu 10 let. Odvolání souhlasu s uložením a zpracováním poskytnutých dat lze e-mailem na info@realitypro.eu. V případě podezření na neoprávněné použití Vámi poskytnutých údajů máte právo předat podnět k šetření Úřadu pro ochranu osobních údajů. Více informací
Chystáte se prodat nemovitost?
Pomůžeme Vám!

Inzerát si prohlédlo 1 lidí

Prodejce

Tomas Lichtenberg

Tomas Lichtenberg

Hlídací pes

Chcete dostávat emailem podobné nabídky prodeje pozemků pro bydlení v Praze 6?